家在深圳,真实业主生活圈_房网论坛

0

|

560

想着要装修就头大

蓝色大脸猫
蓝色大脸猫

积分:-

注册时间:-

主楼
2022-02-07 13:28:44 来自iPhone客户端
标签: 点击标签查看相关内容

想着要装修就头大

娃儿要上学,流落在外的一家人不得不回
2000年的老房子,楼梯
一想到要装修就头大
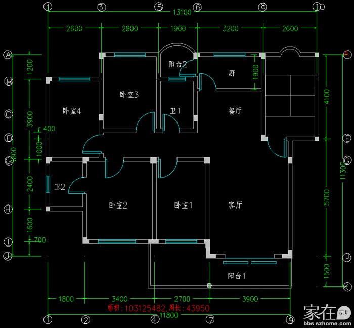
惯例,先上户型图
邻居帮拍的不够清楚,手绘了一张




分享
0
蓝色大脸猫
蓝色大脸猫

积分:-

注册时间:-

沙发
2022-02-07 13:31:35 来自iPhone客户端
第一套房还是未婚时装的,新房毛坯
单身,有时间,有一群志同道合一起购房一起装修的小伙伴
居然也小有所成
这么多年过去,世道变更,装修市场也翻天覆地
我这老司机也忐忑起来
上个老房子图





蓝色大脸猫
蓝色大脸猫

积分:-

注册时间:-

板凳
2022-02-07 13:36:02 来自iPhone客户端
娃儿要上学,要住十几年
所以肯定是要扒了全部重搞
扒光墙壁重新腻子批灰油漆
地板全屋复合木
主要重点是厨房卫生间,人到中年,稍微要注意点生活品质
所以真的头大,主要是囊中羞涩,碎银几两,在自己能力范围内肯定是想用好的
对各种风格没追求
蓝色大脸猫
蓝色大脸猫

积分:-

注册时间:-

地板
2022-02-07 13:46:59 来自iPhone客户端
装修全包,绝对是否了的,性价比太低
10多年前我都能清包
这么多年下来年龄长了,智慧应该也没废
只是,时间真的不够
现在的娃儿都是各种需求,太多了
所以目前清包明显不现实
暂定 半包
自住环保安全是第一,所以主材肯定必须自己过手
所以选择靠谱的设计师和施工方至关重要
时间也紧,现在疫情又反复,9月开学前要入住
唉,天天夜不能寐
蓝色大脸猫
蓝色大脸猫

积分:-

注册时间:-

4楼
2022-02-07 13:49:12 来自iPhone客户端
这几天也泡了房网装修坛子,人气不旺啊
估计大家都跟我一样,有需求了才回归房网
集思广益,求大家推荐靠谱装修经理,工头,师傅
感激不尽
老抹布
老抹布

积分:-

注册时间:-

5楼
2022-02-07 14:00:15
福田的房子?
蓝色大脸猫
蓝色大脸猫

积分:-

注册时间:-

6楼
2022-02-07 14:00:33 来自iPhone客户端
喜欢这种家具,但是觉得家里放不下,也撑不起
本来光线不大好,家具太暗沉
但是质感真好呀



蓝色大脸猫
蓝色大脸猫

积分:-

注册时间:-

7楼
2022-02-07 14:00:52 来自iPhone客户端
是的
引用5楼老抹布的发言:
福田的房子?
蓝色大脸猫
蓝色大脸猫

积分:-

注册时间:-

8楼
2022-02-07 14:01:22 来自iPhone客户端
厨房这种蓝色很清爽

蓝色大脸猫
蓝色大脸猫

积分:-

注册时间:-

9楼
2022-02-07 14:03:29 来自iPhone客户端
阳台不能封,但是装个柜子和洗衣机应该OK



蓝色大脸猫
蓝色大脸猫

积分:-

注册时间:-

10楼
2022-02-07 14:06:30 来自iPhone客户端
这是一个吐槽和记录贴
碎碎念加我存放我喜欢的各种叽叽喳喳
请大家多包容
过道超过一米,小孩可以骑自行车,有点浪费,但是两边都有3个房间门加一个公卫门
所以不知道能不能做过道柜或者有没有必要,本来光线就暗沉了





蓝色大脸猫
蓝色大脸猫

积分:-

注册时间:-

11楼
2022-02-07 14:16:18 来自iPhone客户端
正常3.4月份是不装修的
深圳太湿了
但是,没办法
呜呜呜
蓝色大脸猫
蓝色大脸猫

积分:-

注册时间:-

12楼
2022-02-07 14:51:07 来自iPhone客户端
这两种颜色都不是我中意
但是结构可以参考
图三客厅,想不要沙发,被领导否,他是葛优躺实践者
所以理想的客厅只能存图













蓝色大脸猫
蓝色大脸猫

积分:-

注册时间:-

13楼
2022-02-07 15:01:26 来自iPhone客户端
喜欢的一套餐桌椅子
好喜欢

闻着花香来2
闻着花香来2

积分:-

注册时间:-

14楼
2022-02-07 15:21:59





蓝色大脸猫
蓝色大脸猫

积分:-

注册时间:-

15楼
2022-02-07 15:51:41 来自iPhone客户端
高手
引用14楼闻着花香来2的发言:

老抹布
老抹布

积分:-

注册时间:-

16楼
2022-02-07 15:57:30
林海山庄?
蓝色大脸猫
蓝色大脸猫

积分:-

注册时间:-

17楼
2022-02-07 16:56:10 来自iPhone客户端
把厨房和餐厅门扒了做和u形?
会影响餐厅光线不?
靠入户的那个墙打柜子行不?
厨房天天用,千万不能马虎。

门窗、水电、防水、地面、墙面、全屋定制全套来过,二卫一厨,啊啊啊啊啊,再次崩溃

闻着花香来2
闻着花香来2

积分:-

注册时间:-

18楼
2022-02-07 17:46:04

做成U型,挤占餐厅的位置。
间墙可以不要,做成餐边柜。部分做玻璃隔断,采光量更大。
不影响餐厅采光,光线部分来自客厅阳台。
蓝色大脸猫
蓝色大脸猫

积分:-

注册时间:-

19楼
2022-02-07 18:57:50 来自iPhone客户端
那里真的很暗
引用18楼闻着花香来2的发言:

做成U型,挤占餐厅的位置。
间墙可以不要,做成餐边柜。部分做玻璃隔断,采光量更大。
不影响餐厅采光,光线部分来自客厅阳台。
蓝色大脸猫
蓝色大脸猫

积分:-

注册时间:-

20楼
2022-02-07 19:38:39 来自iPhone客户端
喜欢西西弗书店的书架

  • 插入图片

    支持一次选择9张图片上传(使用Ctrl、Shift选中);

    支持jpg、png、gif,单张图片不超过10M,png不超过1M,gif不超过300K。

    • 继续添加

  • 提到好友

3(16px)

楼主最近发表

相关帖子

    大家都在看

    下载家在深圳APP

    关注家在公众号