家在深圳,真实业主生活圈_房网论坛

0

|

11

难道要成为第二个沙井海岸城?

在深圳卖大葱的张大爷
在深圳卖大葱的张大爷

积分:-

注册时间:-

主楼
2023-08-03 10:35:42
标签: 点击标签查看相关内容

难道要成为第二个沙井海岸城?

谴责益田,作为深圳城市更新的重点项目,就这样立标杆
  
  1. 资金链靠国企续,权益如何划分不得而知,项目质量是否可以保证仍然是未知数!
  
  2. 虚假诱导消费者,原销售中心的沙盘的公共绿化景观与现实完全不符,当时销售吹嘘的所谓无边框泳池以及大面积绿化,恐怕只剩小水池和几块草坪了吧。
  
  3. 商业的采光井,将会严重影响居民的生活质量以及人生安全

  建议买了项目的业主和即将入手的准业主,
  向益田提出我们诉求以及疑问,保护好业主们的权力!


          原沙盘展示  



    新沙盘展示


    业主实地考察



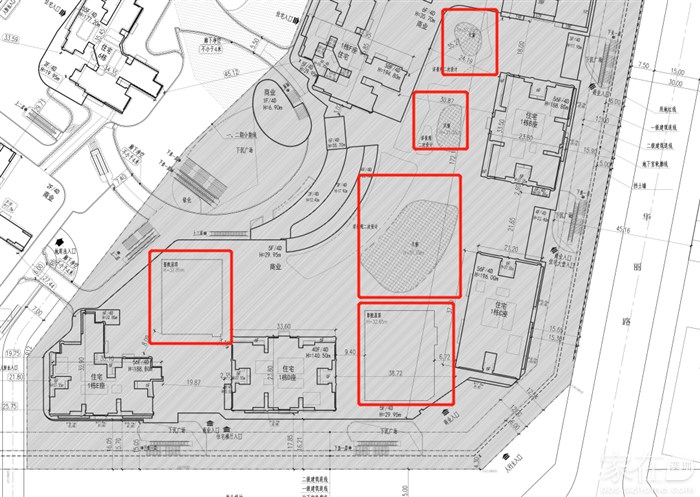
      屋顶平面图


     
   平台采光井案例





分享
0
YWiny
YWiny

积分:-

注册时间:-

沙发
2023-08-03 11:36:11

surechen
surechen

积分:-

注册时间:-

板凳
2023-08-03 11:42:30 来自m.szhome.com
这也太不要脸了吧
初學者
初學者

积分:-

注册时间:-

地板
2023-08-03 11:48:49 来自Android手机客户端
没底线了
langdahui
langdahui

积分:-

注册时间:-

4楼
2023-08-03 12:22:05 来自m.szhome.com
一旦有适当的利润,资本
家就将大胆起来。
骑猪追火箭咻
骑猪追火箭咻

积分:-

注册时间:-

5楼
2023-08-03 14:35:51 来自iPhone客户端
太坑了,原来甚至忽悠有无边泳池,销售时忽悠给个漂亮的空中花园展示,现在快卖完了不通知业主直接改沙盘直接想怎么建怎么建,还在空中花园设置几个超大的商场透光井,这样空中花园根本没有空间了,挂羊头卖狗肉,购买了的业主必须重视起来维权,不然按开发商想怎么建就怎么建的话,说不定比沙井海岸城还离谱
肥啤
肥啤

积分:-

注册时间:-

6楼
2023-08-03 14:58:07 来自Android手机客户端
太坑了,泳池变水池,挂羊头卖狗肉,谁来维护买房人的利益,建议不允许卖楼花,买房人都得不到该有的保障,太过分了,希望有关部门管管
swis
swis

积分:-

注册时间:-

7楼
2023-08-03 15:08:58 来自iPhone客户端
这就是买期房的代价。我就想不通为什么还有人买期房。中介说的话也相信?你已经把图纸都发出来了,相信你早就知道楼盘的情况了。这个时候发这些照片。无非就是想闹事找借口。然后再拿点利益而已。还搞一堆马甲做托。可笑至极。
在深圳卖大葱的张大爷
在深圳卖大葱的张大爷

积分:-

注册时间:-

8楼
2023-08-03 15:32:27
如果你能买的起房,能成为其业主之一,或许你也不会说出那么没有格调的话。为了能有助提高你的见识以及认知层次,我姑且回答你的问题吧。
  1. 你说的期房,我想请问你在深圳核心地段的房子,哪个楼盘不是期房?福田的海德园、南山的润玺,哪个不是预售。这不是业主们的问题也是不是开发商的问题,懂得都懂,不懂也没办法。
  2. 首先,现在买房一般情况是以沙盘展示的为准,以销售的介绍为辅。其次,你也说的没错,屋顶总平面图。这是我们签了预售合同后,才得知的信息。到现在还有很多业主还没签,贷款却还着呢;
  3. 如果我们是托,既有清晰的逻辑思维,又具备铿锵有力的证据,看来我们准备的工作确实不少;就算我们是托,也是维护了业主的应有权益,有何不对呢?
  4. 关于闹事,
      第一,业主的利益是受到损害而不是眼前蝇头小利;
      第二,业主只是合法合规的利用网络,维护业主自的权益,是应该且正确;
      第三,闹事的定义,如果不懂请参考《中华人民共和国刑法》第二百九十三条 【寻衅滋事罪
引用8楼swis的发言:
这就是买期房的代价。我就想不通为什么还有人买期房。中介说的话也相信?你已经把图纸都发出来了,相信你早就知道楼盘的情况了。这个时候发这些照片。无非就是想闹事找借口。然后再拿点利益而已。还搞一堆马甲做托。可笑至极。
不知道知道O_o
不知道知道O_o

积分:-

注册时间:-

9楼
2023-08-03 15:48:59 来自iPhone客户端
“为什么你要穿短裙?为什么被强奸的人是你而不是别人?”开发商夸大了小区环境就是夸大了,占用了屋顶的公共空间就是占用了,这跟他是不是期房有什么关系?不要混淆视,模糊焦点!
引用8楼swis的发言:
这就是买期房的代价。我就想不通为什么还有人买期房。中介说的话也相信?你已经把图纸都发出来了,相信你早就知道楼盘的情况了。这个时候发这些照片。无非就是想闹事找借口。然后再拿点利益而已。还搞一堆马甲做托。可笑至极。
初學者
初學者

积分:-

注册时间:-

10楼
2023-08-03 23:58:32 来自Android手机客户端
出门多看路
引用swis的发言:
这就是买期房的代价。我就想不通为什么还有人买期房。中介说的话也相信?你已经把图纸都发出来了,相信你早就知道楼盘的情况了。这个时候发这些照片。无非就是想闹事找借口。然后再拿点利益而已。还搞一堆马甲做托。可笑至极。
骑猪追火箭咻
骑猪追火箭咻

积分:-

注册时间:-

11楼
2023-08-06 00:31:45 来自iPhone客户端
看来你不是中介就是开发商的走狗,如果两者都不是,那更悲哀,无知且无常识,现在深圳罗湖新房还问为什么要买期房?你到底有没有在深圳买过房?又或者是问父母亲戚借钱在老家18线县城买到老家的现房在这里装杯,不懂就不要瞎逼逼,没文化并不可怕,最可怕就是你这种又没文化还要装杯的,人可以没有知识,不能没有常识,自己发表的荒谬观点还说别人可笑至极,你这种人也就是在网络上过过嘴瘾,在现实生活中肯定也是卑微懦弱,看看自己多讨人厌,多少人骂你就知道自己有多可笑了,呵呵…
引用8楼swis的发言:
这就是买期房的代价。我就想不通为什么还有人买期房。中介说的话也相信?你已经把图纸都发出来了,相信你早就知道楼盘的情况了。这个时候发这些照片。无非就是想闹事找借口。然后再拿点利益而已。还搞一堆马甲做托。可笑至极。
  • 插入图片

    支持一次选择9张图片上传(使用Ctrl、Shift选中);

    支持jpg、png、gif,单张图片不超过10M,png不超过1M,gif不超过300K。

    • 继续添加

  • 提到好友

3(16px)

楼主最近发表

相关帖子

    大家都在看

    下载家在深圳APP

    关注家在公众号