龙华鹭湖独栋别墅,400平大花园带名校地铁
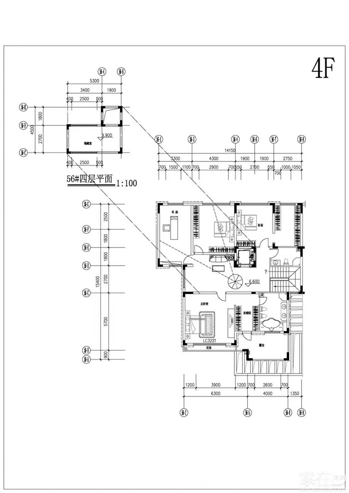
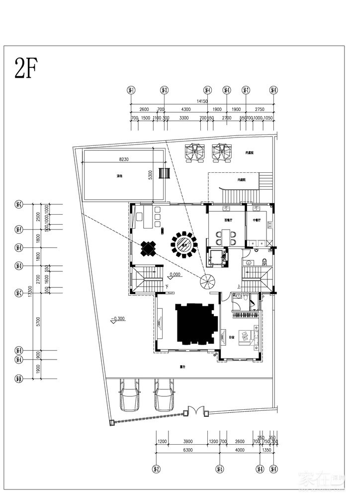
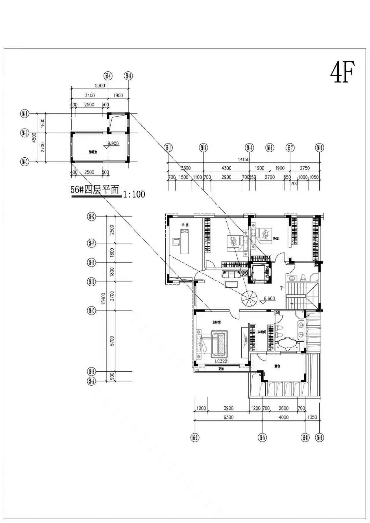
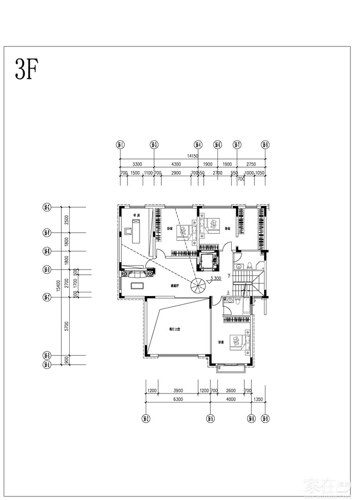
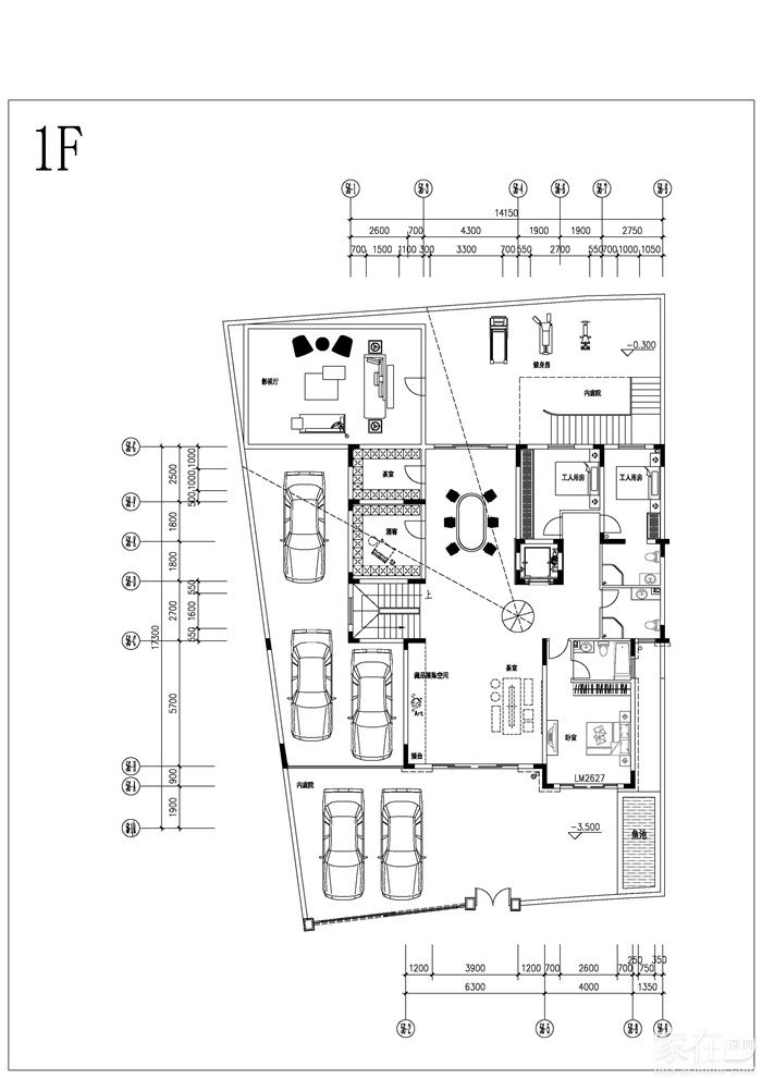
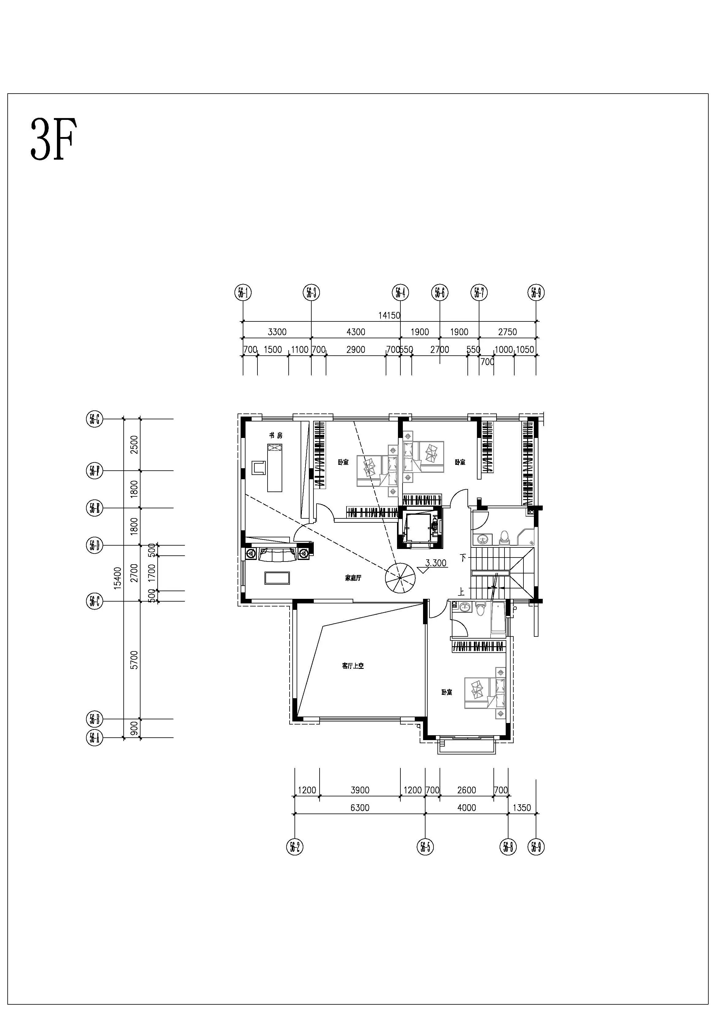
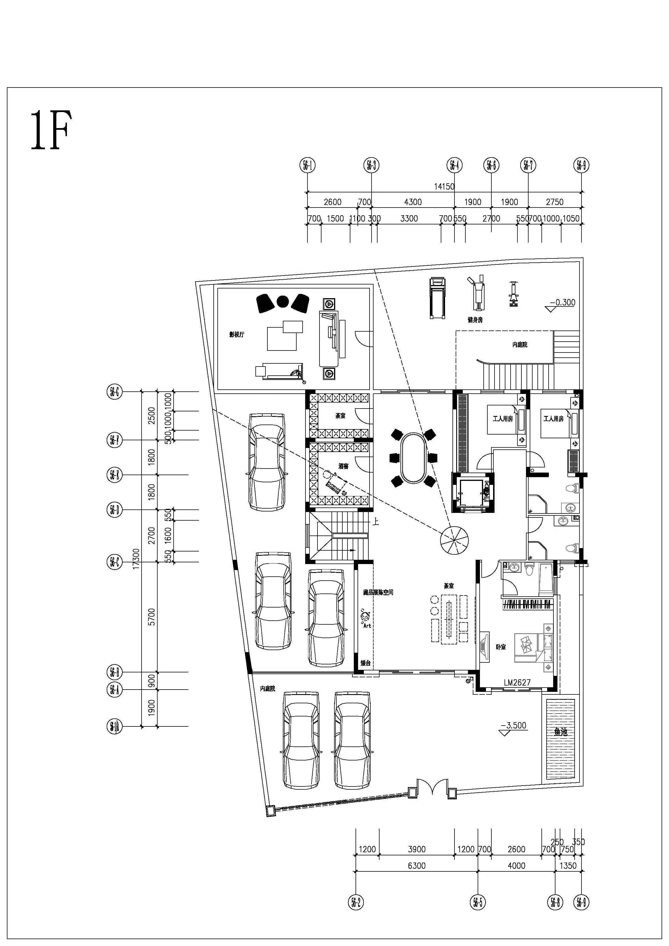
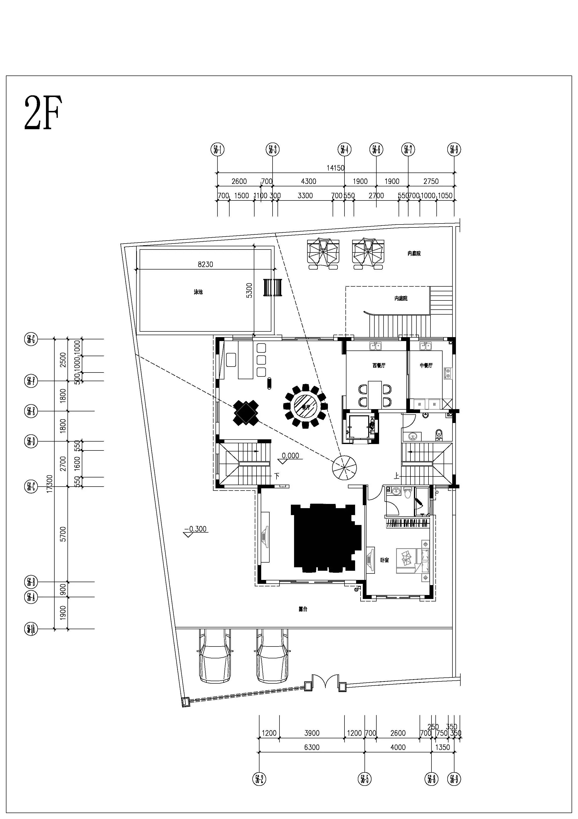
2014年,老夫以最高价购入观园的拥有最大花园400平的楼王位置的独栋别墅,装修又耗时4年耗资千万终于入住,总使用面积有1000平,8房8卫四厅还带400平大花园,可停8台车,实现了停车自由上卫生间自由,闲来没事,呼来三五好友,一起开趴T搞烧烤看电影唱歌弄家庭舞会,当然也可以在自家码头一起钓鱼。
但老夫年事已高,身体状态开始在走下坡路了,儿女早年留学北美藤校,现正在曼哈顿华尔街工作,也在纽约富人区拥有大别野,人老追随儿女吧,鹅这个观园的大独栋别墅正在寻找优质的有缘人,平价2800两银子,少则不卖!







粤公网安备 44030402000760号
