标签:
点击标签查看相关内容
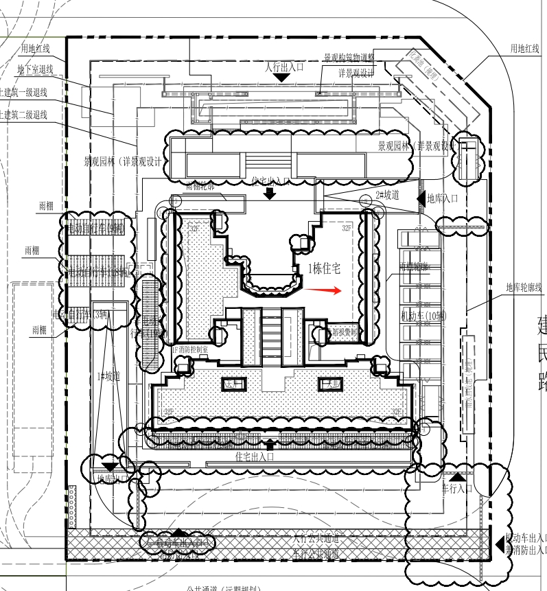
珑熙公馆248套小面积产品,平面图修改
深圳市珠光实业股份有限公司、深圳市北头实业股份有限公司、深圳市同乐盛达置业有限公司开发建设的珑熙公馆项目,位于南山区铁二路南侧,宗地号T503-0068,于2024年3月取得《建设工程规划许可证》(建字第4403052024GG0029490号)。修改如下
(一)总平面图主要变更内容
1.建设单位、用地单位新增深圳市同乐盛达置业有限公司;2.建筑轮廓调整;3.人行通道和无障碍通道调整;4.车行道、车行出入口形式调整;5.机动车、非机动车位位置调整;6.消防登高场地范围调整。
(二)主要技术经济指标表变更
地上核增建筑面积435.04平方米变更为515.80平方米(其中架空绿化休闲435.04平方米变更为439.00平方米,新增屋面楼电梯间及机房76.80平方米),地下核增建筑面积8555.4平方米变更为8563.74平方米(其中共用停车库7103.63平方米变更为7087.86平方米,人防设备用房201.28平方米变更为 172.07平方米、公用设备用房1250.49平方米变更为1303.81平方米)总建筑面积、计容积率建筑面积、不计容积率建筑面积、容积率相应变更
。
(一)总平面图主要变更内容
1.建设单位、用地单位新增深圳市同乐盛达置业有限公司;2.建筑轮廓调整;3.人行通道和无障碍通道调整;4.车行道、车行出入口形式调整;5.机动车、非机动车位位置调整;6.消防登高场地范围调整。
(二)主要技术经济指标表变更
地上核增建筑面积435.04平方米变更为515.80平方米(其中架空绿化休闲435.04平方米变更为439.00平方米,新增屋面楼电梯间及机房76.80平方米),地下核增建筑面积8555.4平方米变更为8563.74平方米(其中共用停车库7103.63平方米变更为7087.86平方米,人防设备用房201.28平方米变更为 172.07平方米、公用设备用房1250.49平方米变更为1303.81平方米)总建筑面积、计容积率建筑面积、不计容积率建筑面积、容积率相应变更




粤公网安备 44030402000760号
