家在深圳,真实业主生活圈_房网论坛

0

|

1

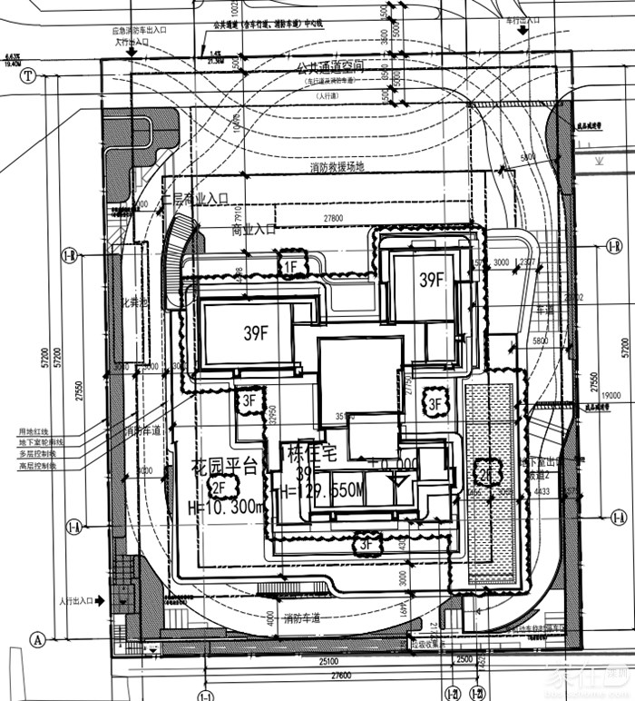
同乐公馆131套住宅平面图修改

左看南山
左看南山

积分:-

注册时间:-

主楼
2024-08-16 11:55:31
标签: 点击标签查看相关内容

同乐公馆131套住宅平面图修改

  深圳市龙井实业股份有限公司、深圳市龙锦源投资有限公司开发建设的同乐公馆项目,宗地号T503-0065,位于南头街道同乐片区中山园路以东


(一)指标调整:地上核增建筑面积由2364.94平方米变更为2781.99平方米,地下核增建筑面积由7630.16平方米变更为7675.70平方米,建筑覆盖率由43.73%/14.70%变更为39.56%/16.98%,建筑高度由129.8米变更为129.55米,机动车停车位由130个变更为132个,补充非机车停车位57个。修改后指标仍符合用地规划许可证的规定。

分享
0
左看南山
左看南山

积分:-

注册时间:-

沙发
2024-08-16 11:55:56
就一栋39层


  • 插入图片

    支持一次选择9张图片上传(使用Ctrl、Shift选中);

    支持jpg、png、gif,单张图片不超过10M,png不超过1M,gif不超过300K。

    • 继续添加

  • 提到好友

3(16px)

楼主最近发表

相关帖子

    大家都在看

    下载家在深圳APP

    关注家在公众号