家在深圳,真实业主生活圈_房网论坛

0

|

51

前海新增一块住宅、T101-0012地块(工改人才保障、4995户)

传信息
传信息

积分:-

注册时间:-

主楼
2021-04-27 09:05:29
标签: 点击标签查看相关内容

前海新增一块住宅、T101-0012地块(工改人才保障、4995户)

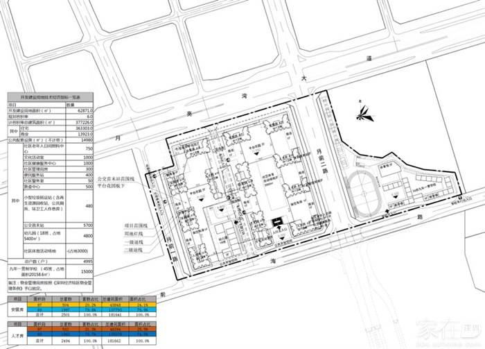
项目名称:T101-0012地块
工改保:10.3万平
用地面积:62871平
容积率:6.0
建设面积:377226平
住宅面积:363303平
商业面积:13921平
学校:九年制学校45班,幼儿园18班!
项目位置:月亮湾大道以北,前海路以南,月前二路两旁



分享
0
魁哥_Christian
魁哥_Christian

积分:-

注册时间:-

沙发
2021-04-27 09:12:30 来自Android手机客户端
人才房。。。
传信息
传信息

积分:-

注册时间:-

板凳
2021-04-27 09:41:48
安居房:87平504套,69平1997套、总2501套

人才房:87平532套,69平1962套、总2494套

总户数:4995户


传信息
传信息

积分:-

注册时间:-

地板
2021-04-27 09:47:04
工改保:10.3万平

zengwenjie
zengwenjie

积分:-

注册时间:-

4楼
2021-04-27 09:47:40
真的吗


引用2楼楼主的发言:
安居房:87平504套,69平1997套、总2501套

人才房:87平532套,69平1962套、总2494套

传信息
传信息

积分:-

注册时间:-

5楼
2021-04-27 09:48:54 来自Android手机客户端
可以看一下划分!

传信息
传信息

积分:-

注册时间:-

6楼
2021-04-27 09:55:22
目前里面是空地,只等开工建设了!



传信息
传信息

积分:-

注册时间:-

7楼
2021-04-27 10:00:07 来自Android手机客户端
这旁边还有一个小面积的创意四纪公馆,目前在建设中,关注小面积的,可以留意这盘

jssqtang
jssqtang

积分:-

注册时间:-

8楼
2021-04-27 10:16:03
关内的安居房就算了,给你你也买不起
shenhenanren
shenhenanren

积分:-

注册时间:-

9楼
2021-04-27 12:29:46
排名靠前靠后没什么关系,都是“人才安居房”,给人才的
韭菜收割机
韭菜收割机

积分:-

注册时间:-

10楼
2021-04-27 15:13:06 来自Android手机客户端
本不想泼冷水,但还是要提醒一下那些执着的PM,原关内不可能有安居房,早上车早安心。
asnto
asnto

积分:-

注册时间:-

11楼
2021-04-27 15:38:08
这块地不是给汉京的吗?
南山南32
南山南32

积分:-

注册时间:-

12楼
2021-04-27 16:13:15
开发商汉京同意这个方案了吧!要不然怎么入围
引用12楼asnto的发言:
这块地不是给汉京的吗?
xinxin2018
xinxin2018

积分:-

注册时间:-

13楼
2021-04-27 16:44:43

有轮候库的安居房吗
引用2楼楼主的发言:
安居房:87平504套,69平1997套、总2501套

人才房:87平532套,69平1962套、总2494套

总户数:4995户

百创装饰集团
百创装饰集团

积分:-

注册时间:-

14楼
2021-04-27 17:14:04
大项目,大项目,大项目

橙sun
橙sun

积分:-

注册时间:-

15楼
2021-04-27 19:06:46 来自iPhone客户端
真会想,真敢想。也不知道现在是一年2000-3000套偏僻地段的实情吗?
赵军军
赵军军

积分:-

注册时间:-

16楼
2021-04-27 19:27:01
这个位置如果有安居房估计也得6W左右了。大概率还是人才房

乌龟的密
乌龟的密

积分:-

注册时间:-

17楼
2021-04-27 22:46:47 来自iPhone客户端
平民安居没希望是吗
leo11111111
leo11111111

积分:-

注册时间:-

18楼
2021-04-28 10:19:15
卖是不可能的,租也要高级人才或者重点企业人才才可以,安拖山那里之前也是标明安居型商品房,最后连租的人都要博士后和总部企业的在职人才才能租;平民只能呵呵了。
回流的蛇口人
回流的蛇口人

积分:-

注册时间:-

19楼
2021-04-28 12:13:59 来自iPhone客户端
这个是区级,南山区的户籍才可以申请安居房
escription666
escription666

积分:-

注册时间:-

20楼
2021-04-28 12:40:54
安居房没有区户籍的要求,只有公租房才要求区籍,前海这块地十有八九是“人才安居房”
引用21楼回流的蛇口人的发言:
这个是区级,南山区的户籍才可以申请安居房
  • 插入图片

    支持一次选择9张图片上传(使用Ctrl、Shift选中);

    支持jpg、png、gif,单张图片不超过10M,png不超过1M,gif不超过300K。

    • 继续添加

  • 提到好友

3(16px)

楼主最近发表

相关帖子

    大家都在看

    下载家在深圳APP

    关注家在公众号