标签:
点击标签查看相关内容
珑承翰庭——龙田路口旧改新名子
深圳市承硕投资发展有限公司申请办理珑承翰庭项目(宗地号G14108-8065)施工图修改。项目位于坪山区龙田街道,已于2021年12月份取得《建设工程规划许可证》(深规划资源建许字SG-2021-0003号)。
一、项目概况及规划修改事项
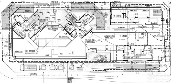
本次修改涉及已批总平面图调整(见附图云线所示),现根据《中华人民共和国城乡规划法》和《深圳市城市规划条例》等相关规定予以公示,涉及总平面图设计调整的主要内容为:
(一)更新建筑轮廓等信息;
(二)建筑楼栋单元号修改。
调整后各项规划指标仍能符合其《深圳市建设用地规划许可证》(地字第440310202100030号)、《土地使用权出让合同书》(深地合字(2021)S002号)规定要求。
从平面图数据来看,一共698户,保障房29户,商品房669户,容积率4.9,停车位825个
商业面积15000平带一个菜市场。
三栋高层住宅(43-44层)一栋幼儿园
![]()
![]()
![]()
一、项目概况及规划修改事项
本次修改涉及已批总平面图调整(见附图云线所示),现根据《中华人民共和国城乡规划法》和《深圳市城市规划条例》等相关规定予以公示,涉及总平面图设计调整的主要内容为:
(一)更新建筑轮廓等信息;
(二)建筑楼栋单元号修改。
调整后各项规划指标仍能符合其《深圳市建设用地规划许可证》(地字第440310202100030号)、《土地使用权出让合同书》(深地合字(2021)S002号)规定要求。
从平面图数据来看,一共698户,保障房29户,商品房669户,容积率4.9,停车位825个
商业面积15000平带一个菜市场。
三栋高层住宅(43-44层)一栋幼儿园






粤公网安备 44030402000760号
