标签:
点击标签查看相关内容
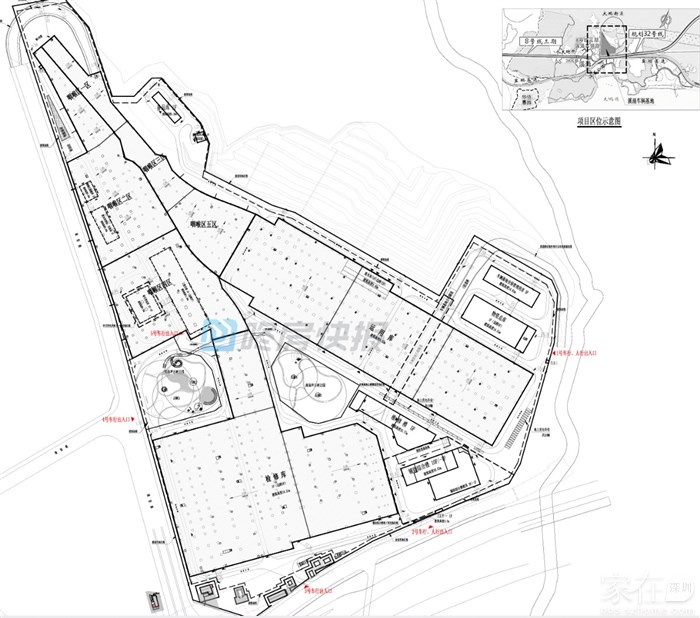
地铁8号线三期工程—溪涌车辆基地总平面图公示
深圳市地铁集团有限公司的深圳市城市轨道交通8号线三期工程—溪涌车辆基地工程项目,位于深圳市大鹏新区葵涌办事处溪涌路北侧,用地面积173942.95平方米,该项目于2024年7月取得《深圳市建设工程规划许可证》(建字第440072024GG0156468号)。现用地单位申请变更建设工程规划许可证,同时申请对该项目原已批总平面图进行修改,主要修改内容如下:
一、根据项目用地批准情况,对用地红线范围进行调整,相应调整总平面图相应设计。
二、根据项目综合楼、检修库、运用库等建筑设计调整情况,相应调整所报经济技术指标表,包括本期建筑面积及分配表、图纸内容、说明及图例、绿化面积指标等内容。
以上修改内容详见修改后总平面图,修改后的经济技术指标符合项目规划设计要点及相关文件中的规定要求。
![]()
![]()
![]()
一、根据项目用地批准情况,对用地红线范围进行调整,相应调整总平面图相应设计。
二、根据项目综合楼、检修库、运用库等建筑设计调整情况,相应调整所报经济技术指标表,包括本期建筑面积及分配表、图纸内容、说明及图例、绿化面积指标等内容。
以上修改内容详见修改后总平面图,修改后的经济技术指标符合项目规划设计要点及相关文件中的规定要求。




粤公网安备 44030402000760号
