家在深圳,真实业主生活圈_房网论坛

0

|

34

17号线罗岗站和百鸽笼站的进站口位置在哪里?

bing5868
bing5868

积分:-

注册时间:-

主楼
2023-04-17 08:22:50 来自Android手机客户端
标签: 点击标签查看相关内容

17号线罗岗站和百鸽笼站的进站口位置在哪里?

如题
大家在哪里可以找到规划图
分享
0
Duoyuwang
Duoyuwang

积分:-

注册时间:-

沙发
2023-04-17 18:18:30
现在还看不到吧,不知道有没有高人

喝酸奶不舔盖
喝酸奶不舔盖

积分:-

注册时间:-

板凳
2023-04-18 00:07:04 来自Android手机客户端
市规划和自然资源局已经回复站点主体在百外和春蕾南边
长啸当歌
长啸当歌

积分:-

注册时间:-

地板
2023-04-18 09:41:02
传说会有一个出口会靠近新建医院这块 
Kinhkong008
Kinhkong008

积分:-

注册时间:-

4楼
2023-04-18 17:53:50 来自iPhone客户端


引用3楼长啸当歌的发言:
传说会有一个出口会靠近新建医院这块 
Kinhkong008
Kinhkong008

积分:-

注册时间:-

5楼
2023-04-18 17:59:07 来自iPhone客户端
传说中的地铁出口

esfhbnxy
esfhbnxy

积分:-

注册时间:-

6楼
2023-04-18 18:12:46
白鸽笼肯定是5号线原来的出入口旁边的   
彪哥9320381_微信
彪哥9320381_微信

积分:-

注册时间:-

7楼
2023-04-20 12:06:26 来自m.szhome.com
大芬工业区南片区城市更新,应该设一个站呀?
引用1楼Duoyuwang的发言:
现在还看不到吧,不知道有没有高人

luke110097
luke110097

积分:-

注册时间:-

8楼
2023-04-20 15:34:07 来自m.szhome.com
这是线路详勘
引用5楼Kinhkong008的发言:
传说中的地铁出口
80877193
80877193

积分:-

注册时间:-

9楼
2023-04-21 10:41:18
今天从南岭村里面走,在玩具厂位置也看到这样的情况
引用5楼Kinhkong008的发言:
传说中的地铁出口
ALWAYS三丁目夕日
ALWAYS三丁目夕日

积分:-

注册时间:-

10楼
2023-12-26 14:30:41 来自Android手机客户端
罗岗站在春蕾小学门口

xuxu2022
xuxu2022

积分:-

注册时间:-

11楼
2023-12-28 10:09:41 来自Android手机客户端
百鸽笼站呢?设在哪里
13266735520
13266735520

积分:-

注册时间:-

12楼
2023-12-28 12:36:38
咨询下德兴出口是在哪里
流花浮影
流花浮影

积分:-

注册时间:-

13楼
2023-12-28 15:13:11 来自iPhone客户端
在练车场路口

引用12楼13266735520的发言:
咨询下德兴出口是在哪里
深圳之云2
深圳之云2

积分:-

注册时间:-

14楼
2024-01-03 08:16:29
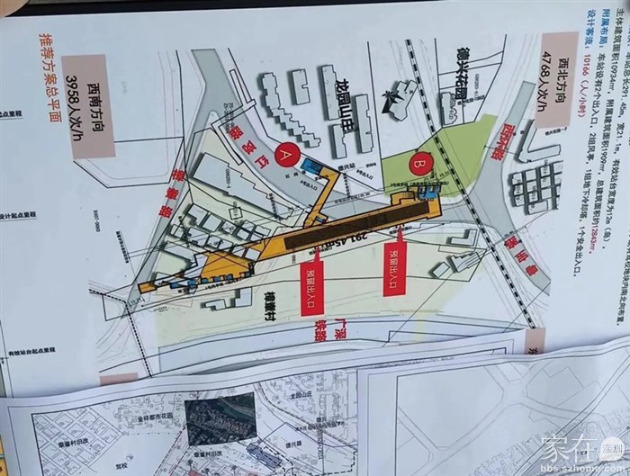
谁发个罗岗站的图啊(像上面德兴站一样的)
深圳之云2
深圳之云2

积分:-

注册时间:-

15楼
2024-01-03 08:29:02
发个罗岗站的图啊(像上面德兴站一样的)
引用13楼流花浮影的发言:
在练车场路口
引用12楼13266735520的发言:
咨询下德兴出口是在哪里
Sigwan
Sigwan

积分:-

注册时间:-

16楼
2024-01-04 09:12:19 来自Android手机客户端
地图都有了



身体健康日进斗金
身体健康日进斗金

积分:-

注册时间:-

17楼
2024-01-04 10:48:23 来自Android手机客户端
,这个具体位置是地铁停靠车站的位置吧?地铁出入口的布局图还没看到。
引用Sigwan的发言:
地图都有了
16893
16893

积分:-

注册时间:-

18楼
2024-01-05 15:50:54
有没有南岭站的图?发上来看看
引用13楼流花浮影的发言:
在练车场路口
引用12楼13266735520的发言:
咨询下德兴出口是在哪里
流花浮影
流花浮影

积分:-

注册时间:-

19楼
2024-01-05 19:26:49 来自iPhone客户端
没有哦,只有德兴的。
引用18楼16893的发言:
有没有南岭站的图?发上来看看
引用13楼流花浮影的发言:
在练车场路口
引用12楼13266735520的发言:
咨询下德兴出口是在哪里
13266735520
13266735520

积分:-

注册时间:-

20楼
2024-01-12 15:36:31
谢谢
引用19楼流花浮影的发言:
没有哦,只有德兴的。
引用18楼16893的发言:
有没有南岭站的图?发上来看看
引用13楼流花浮影的发言:
在练车场路口
引用12楼13266735520的发言:
咨询下德兴出口是在哪里
  • 插入图片

    支持一次选择9张图片上传(使用Ctrl、Shift选中);

    支持jpg、png、gif,单张图片不超过10M,png不超过1M,gif不超过300K。

    • 继续添加

  • 提到好友

3(16px)

楼主最近发表

相关帖子

    大家都在看

    下载家在深圳APP

    关注家在公众号