家在深圳,真实业主生活圈_房网论坛

0

|

1

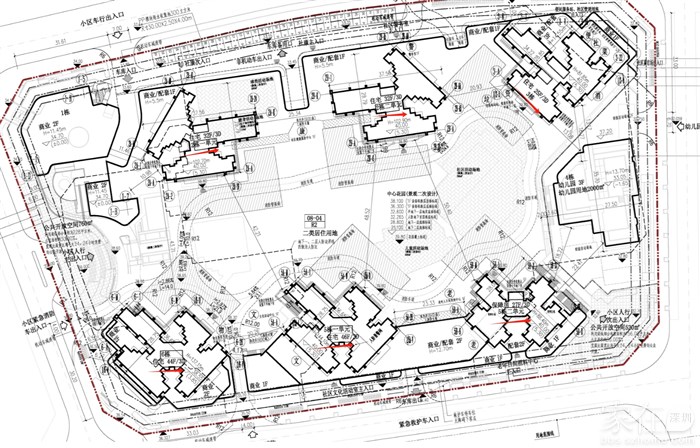
源著里9成平住宅,约一千套

坪山小光
坪山小光

积分:-

注册时间:-

主楼
2025-02-10 14:43:33
标签: 点击标签查看相关内容

源著里9成平住宅,约一千套

源著里,车位1235辆,一比一算住宅过千套,保障房146套。


分享
0
坪山小光
坪山小光

积分:-

注册时间:-

沙发
2025-02-10 14:44:09
深铁源著里


  • 插入图片

    支持一次选择9张图片上传(使用Ctrl、Shift选中);

    支持jpg、png、gif,单张图片不超过10M,png不超过1M,gif不超过300K。

    • 继续添加

  • 提到好友

3(16px)

楼主最近发表

相关帖子

    大家都在看

    下载家在深圳APP

    关注家在公众号