家在深圳,真实业主生活圈_房网论坛

0

|

18

深铁阅云境98~142平户型图

lgoooppp
lgoooppp

积分:-

注册时间:-

主楼
2024-09-12 10:55:26 来自Android手机客户端
标签: 点击标签查看相关内容

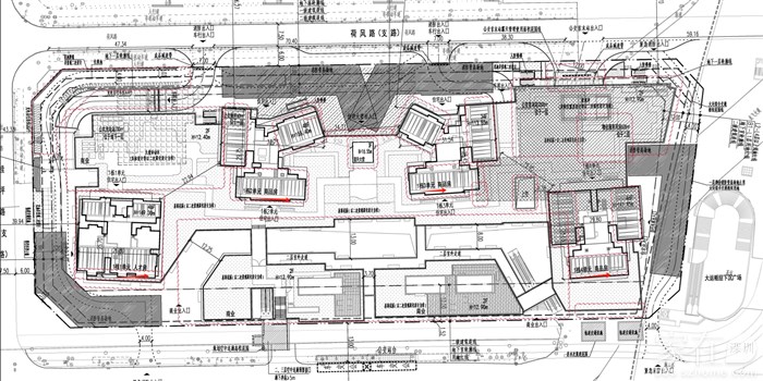
深铁阅云境98~142平户型图

目前展厅已经开放了,预计10月份开盘,推出591套,面积98~142平,5万的价格心不心动?

分享
0
lgoooppp
lgoooppp

积分:-

注册时间:-

沙发
2024-09-12 10:55:56 来自Android手机客户端
98平3房2厅2卫

lgoooppp
lgoooppp

积分:-

注册时间:-

板凳
2024-09-12 10:56:31 来自Android手机客户端
102~107平,3房2厅2卫





lgoooppp
lgoooppp

积分:-

注册时间:-

地板
2024-09-12 10:56:58 来自Android手机客户端
115~118平4的房2厅2卫





星世纪
星世纪

积分:-

注册时间:-

4楼
2024-09-12 11:17:20
看有606套呀!




烤紅薯
烤紅薯

积分:-

注册时间:-

5楼
2024-09-12 12:23:16 来自Android手机客户端
两年前5W,现在还是5W?
taomujian
taomujian

积分:-

注册时间:-

6楼
2024-09-12 16:39:32
这价格铁定凉凉
grantl
grantl

积分:-

注册时间:-

7楼
2024-09-12 21:01:08 来自Android手机客户端
3字头估计能卖出去一半
坂田2013
坂田2013

积分:-

注册时间:-

8楼
2024-09-13 16:38:53 来自Android手机客户端
深圳北站都5字头了,这个5字头能卖出去?3字头估计有人买。
psolar
psolar

积分:-

注册时间:-

9楼
2024-09-14 00:47:38 来自Android手机客户端
现在这行情,估计要2字头才会有人出手,5字头为啥不买北站的房子?北站5万的房子都剩一大片,北站过去2个站的龙胜周边4字头已经无人问津,大运3字头一样卖不动。
么么哒就是欠揍
么么哒就是欠揍

积分:-

注册时间:-

10楼
2024-09-18 09:38:29
这户型。。。真心·动不起来
110平+尺度并不阔绰,还得睡飘窗~ε=(´ο`*)))唉
专业设计与施工
专业设计与施工

积分:-

注册时间:-

11楼
2024-09-19 13:23:04
用户被禁言
robert123456789
robert123456789

积分:-

注册时间:-

12楼
2024-09-21 23:09:15 来自m.szhome.com
这楼盘估计啥时候能建好?
壹辰
壹辰

积分:-

注册时间:-

13楼
2024-09-23 20:45:25 来自Android手机客户端
只有107以上的户型才有朝南的,弃了
娜乌西卡233
娜乌西卡233

积分:-

注册时间:-

14楼
2024-09-29 18:49:32 来自Android手机客户端
估计四万一平能卖出去
forualways
forualways

积分:-

注册时间:-

15楼
2024-09-30 16:46:36
用户被禁言
神堂坡
神堂坡

积分:-

注册时间:-

16楼
2024-10-23 15:27:12
还有人关注吗?
guoguo2011
guoguo2011

积分:-

注册时间:-

17楼
2024-10-23 15:56:27 来自Android手机客户端
枢纽边上就有用吗?
Nnnjtl
Nnnjtl

积分:-

注册时间:-

18楼
2024-10-23 16:38:42 来自iPhone客户端
现在新规下使用率都90以上,这个盘户型一般般,隔壁二手也才4w出头
  • 插入图片

    支持一次选择9张图片上传(使用Ctrl、Shift选中);

    支持jpg、png、gif,单张图片不超过10M,png不超过1M,gif不超过300K。

    • 继续添加

  • 提到好友

3(16px)

楼主最近发表

相关帖子

    大家都在看

    下载家在深圳APP

    关注家在公众号