家在深圳,真实业主生活圈_房网论坛

0

|

10

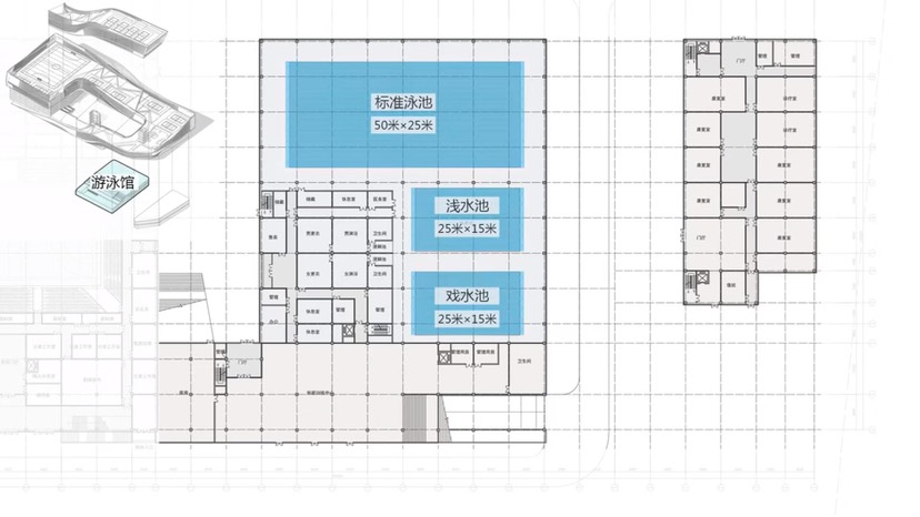
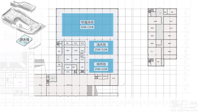
龙岗国际大学园综合训练中心中标方案

8674876
8674876

积分:-

注册时间:-

主楼
2023-11-22 12:43:50 来自iPhone客户端
标签: 点击标签查看相关内容

龙岗国际大学园综合训练中心中标方案









分享
0
Bin3
Bin3

积分:-

注册时间:-

沙发
2023-11-22 13:56:09 来自iPhone客户端
建在那个地方
huangh8
huangh8

积分:-

注册时间:-

板凳
2023-11-22 14:02:34 来自Android手机客户端
几年过去了,什么时候建?
8674876
8674876

积分:-

注册时间:-

地板
2023-11-22 14:03:38
这个应该是老设计了。 现在又开始重新选址了。不知道选在什么地方,估计设计方案也会变化。
引用2楼huangh8的发言:
几年过去了,什么时候建?
留得青山666
留得青山666

积分:-

注册时间:-

4楼
2023-11-22 17:59:33
用户被禁言
Leoyang27
Leoyang27

积分:-

注册时间:-

5楼
2023-11-22 18:36:22 来自Android手机客户端
不可能建在水库脚下,基本常识
引用留得青山666的发言:
目测是这里

luke110097
luke110097

积分:-

注册时间:-

6楼
2023-11-23 10:36:53 来自m.szhome.com
本来就是这里建设,现在让给深港科技产业园了。
引用5楼Leoyang27的发言:
不可能建在水库脚下,基本常识
引用留得青山666的发言:
目测是这里

龙岗少年
龙岗少年

积分:-

注册时间:-

7楼
2023-11-23 11:39:17
这个产业园什么时候动工
引用6楼luke110097的发言:
本来就是这里建设,现在让给深港科技产业园了。
引用5楼Leoyang27的发言:
不可能建在水库脚下,基本常识
引用留得青山666的发言:
目测是这里

luke110097
luke110097

积分:-

注册时间:-

8楼
2023-11-23 11:48:29 来自m.szhome.com
没钱,暂时搞不动
引用7楼龙岗少年的发言:
这个产业园什么时候动工
引用6楼luke110097的发言:
本来就是这里建设,现在让给深港科技产业园了。
引用5楼Leoyang27的发言:
不可能建在水库脚下,基本常识
引用留得青山666的发言:
目测是这里

sod0003
sod0003

积分:-

注册时间:-

9楼
2023-11-27 18:04:39 来自iPhone客户端
龙岗国际大学园综合训练中心是干什么的
  • 插入图片

    支持一次选择9张图片上传(使用Ctrl、Shift选中);

    支持jpg、png、gif,单张图片不超过10M,png不超过1M,gif不超过300K。

    • 继续添加

  • 提到好友

3(16px)

楼主最近发表

相关帖子

    大家都在看

    下载家在深圳APP

    关注家在公众号