0
|17
引用8楼jonine的发言:这梯户比容积率居然只有2.46?引用7楼luke110097的发言:商品房两栋一层五户,一栋一层6户。
引用11楼1111小笼包1111的发言:请问最小户型是多大呢?引用9楼luke110097的发言:是呀,4万多平米的地块才建4栋楼,地面上计容面积就11万平米吖,容积率就是2.34吖,所以小户型为主。引用8楼jonine的发言:这梯户比容积率居然只有2.46?引用7楼luke110097的发言:商品房两栋一层五户,一栋一层6户。
引用luke110097的发言:是呀,4万多平米的地块才建4栋楼,地面上计容面积就11万平米吖,容积率就是2.34吖,所以小户型为主。引用8楼jonine的发言:这梯户比容积率居然只有2.46?引用7楼luke110097的发言:商品房两栋一层五户,一栋一层6户。
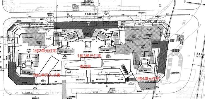
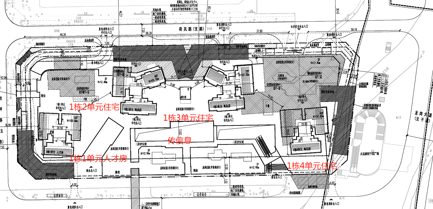
自己看图
引用13楼zhuiyang的发言:容积率怎么可能只有2点多?这块地块那么小,怎么可能有4万多平?引用luke110097的发言:是呀,4万多平米的地块才建4栋楼,地面上计容面积就11万平米吖,容积率就是2.34吖,所以小户型为主。引用8楼jonine的发言:这梯户比容积率居然只有2.46?引用7楼luke110097的发言:商品房两栋一层五户,一栋一层6户。