家在深圳,真实业主生活圈_房网论坛

0

|

2

京基宸悦府己开展市,5月份开盘

井田故事
井田故事

积分:-

注册时间:-

主楼
2024-04-03 11:56:41 来自Android手机客户端
标签: 点击标签查看相关内容

京基宸悦府己开展市,5月份开盘

看到已经举行了开展,预计下个月就开盘了,推出402套85~143平的3~4房,主要好多人关心价格是不是八字头还是九字头?





分享
0
井田故事
井田故事

积分:-

注册时间:-

沙发
2024-04-03 11:57:23 来自Android手机客户端
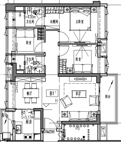
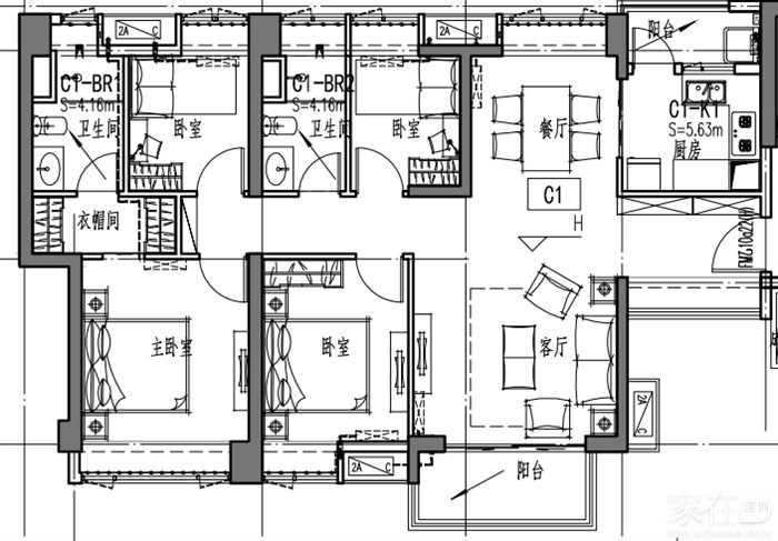
户型图

建面约110㎡3房2厅2卫:



建面约130㎡4房2厅2卫:


wwwwpppp1
wwwwpppp1

积分:-

注册时间:-

板凳
2024-04-04 20:56:01
这么快就开盘,这个楼盘不是还在建设中吗?好像都么有封顶
  • 插入图片

    支持一次选择9张图片上传(使用Ctrl、Shift选中);

    支持jpg、png、gif,单张图片不超过10M,png不超过1M,gif不超过300K。

    • 继续添加

  • 提到好友

3(16px)

楼主最近发表

相关帖子

    大家都在看

    下载家在深圳APP

    关注家在公众号