家在深圳,真实业主生活圈_房网论坛

0

|

2

关于科技中学(原景秀中学)改扩建工程总平面图修改的公示

eiek
eiek

积分:-

注册时间:-

主楼
2023-03-27 15:04:46
标签: 点击标签查看相关内容

关于科技中学(原景秀中学)改扩建工程总平面图修改的公示

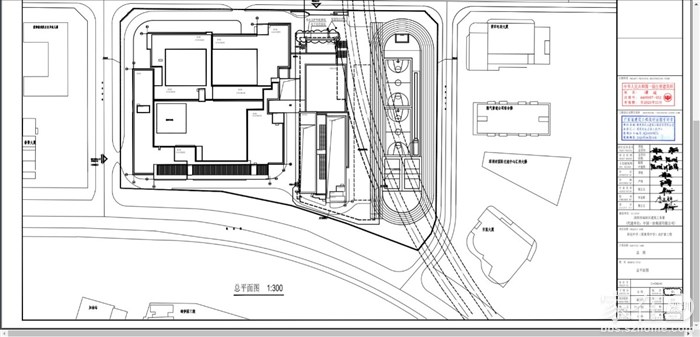
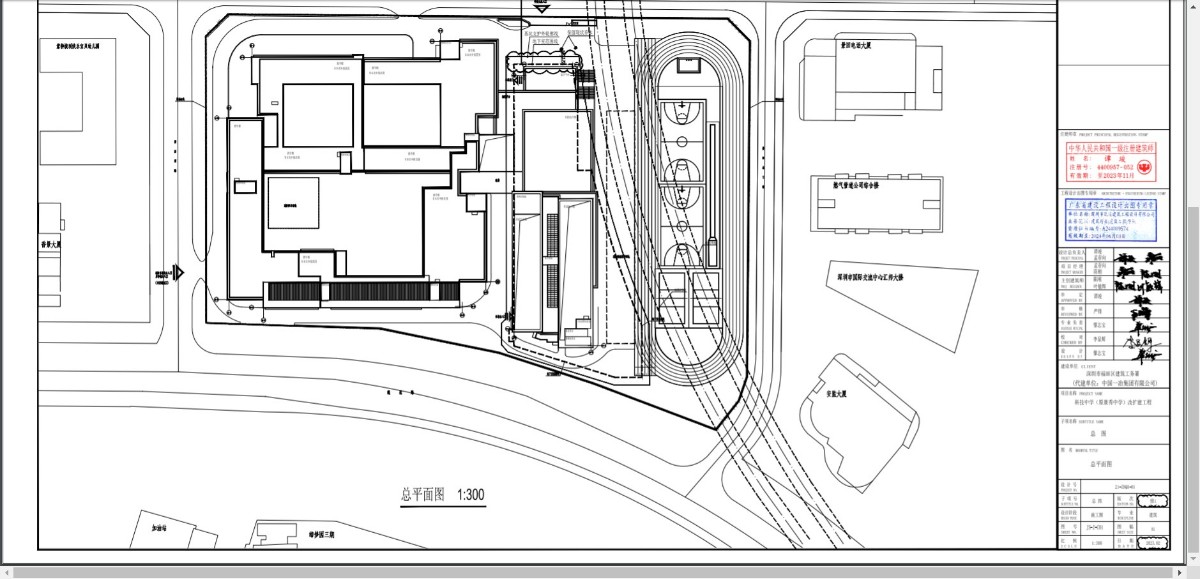
科技中学(原景秀中学)改扩建工程位于福田区莲花街道景田北一街29号,宗地号B304-0038,于2022年6月8日取得《建设工程规划许可证》(深规划资源建许字 FT-2022-0029号)。现该项目申请总平面图修改,将该总平面图进行公示,具体变更内容如下:

总平面图局部修改:(一)地下室轮廓范围线北侧缩减4.5米;(二)经济技术指标相应修改:原《建设工程规划许可证》(深规划资源建许字 FT-2022-0029号)中部分指标修改为:地下核增建筑面积由7407.03㎡调整为7214.94㎡(公用设备用房1593.01㎡、共用停车库5621.93㎡)。(详附图云线圈注范围)



分享
0
福起来
福起来

积分:-

注册时间:-

沙发
2023-05-08 09:41:43
位置不错
凯悦2017
凯悦2017

积分:-

注册时间:-

板凳
2023-05-11 20:48:31
改建后有什么不一样吗?扩招?
  • 插入图片

    支持一次选择9张图片上传(使用Ctrl、Shift选中);

    支持jpg、png、gif,单张图片不超过10M,png不超过1M,gif不超过300K。

    • 继续添加

  • 提到好友

3(16px)

楼主最近发表

相关帖子

    大家都在看

    下载家在深圳APP

    关注家在公众号