家在深圳,真实业主生活圈_房网论坛

0

|

6

珈誉时尚花园许可证平面图

传信息
传信息

积分:-

注册时间:-

主楼
2023-04-07 09:10:39
标签: 点击标签查看相关内容

珈誉时尚花园许可证平面图

  “珈誉时尚花园”(宗地号:A308-0127)位于新桥街道,宗地建设用地面积70165.12。该项目于2023年3月核发《建设工程规划许可证》(深规划资源建许字BA-2023-0028号、深规划资源建许字BA-2023-0029号、深规划资源建许字BA-2023-0030号、深规划资源建许字BA-2023-0031号)。 



  
分享
0
传信息
传信息

积分:-

注册时间:-

沙发
2023-04-07 09:13:30
4-12地块对外住宅分四期开发,但传一次对外卖完,客不理想的话可以分几期开(保障房也分一期)

传信息
传信息

积分:-

注册时间:-

板凳
2023-04-07 09:14:32
保障房一期1730套,47/3层

传信息
传信息

积分:-

注册时间:-

地板
2023-04-07 09:15:44
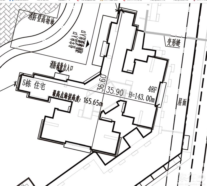
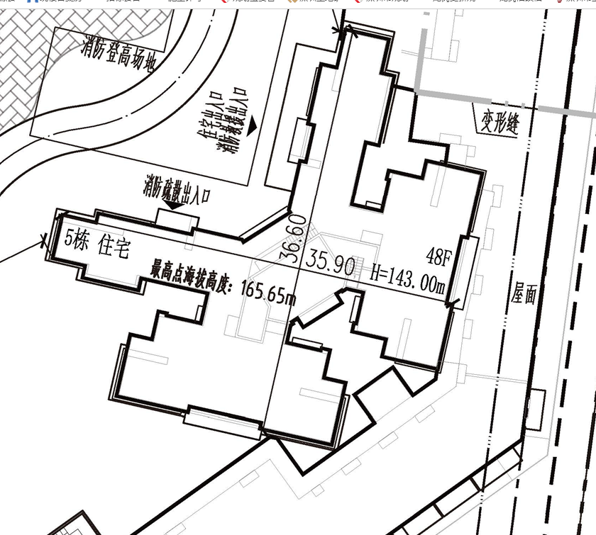
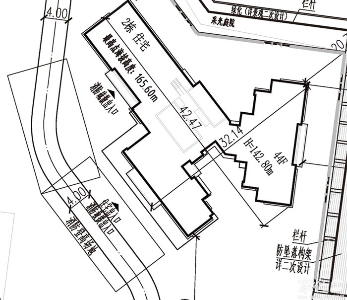
5-6栋,841套住宅,48/3层




5-6一、二单元栋




传信息
传信息

积分:-

注册时间:-

4楼
2023-04-07 09:19:55
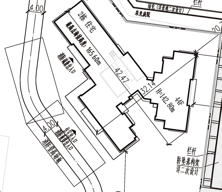
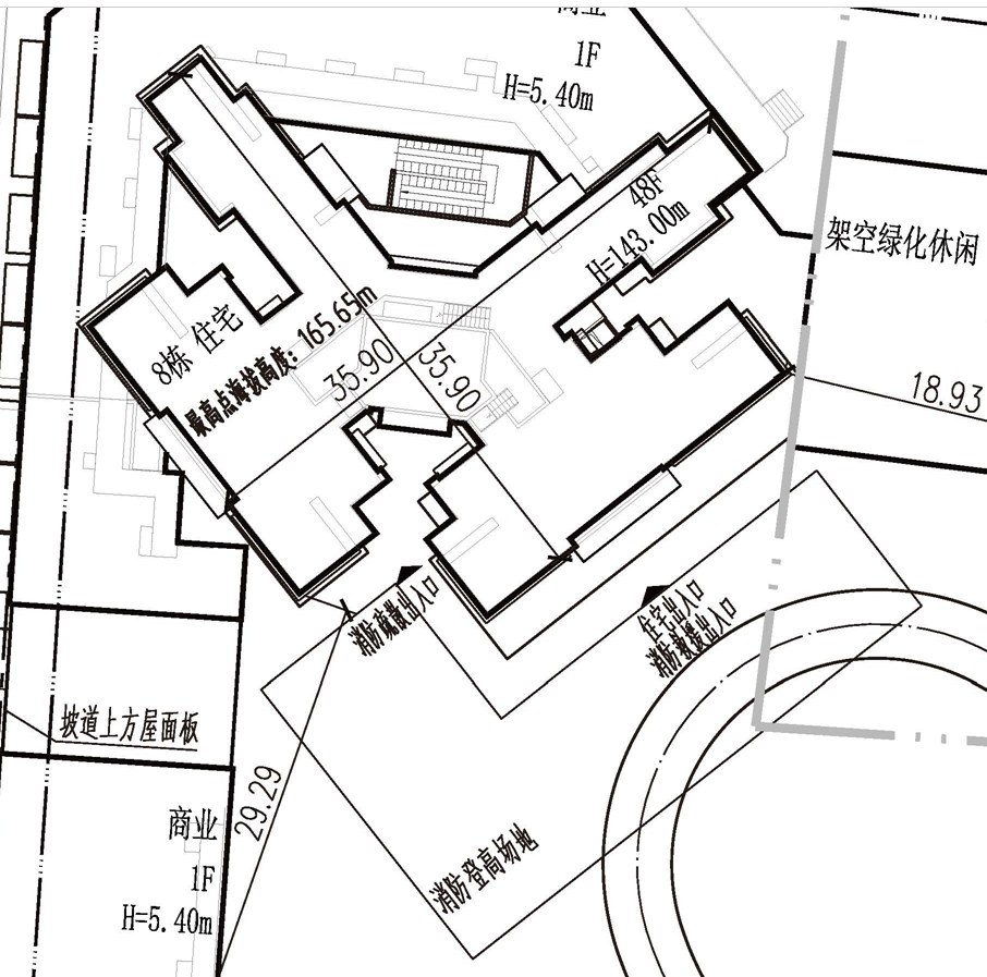
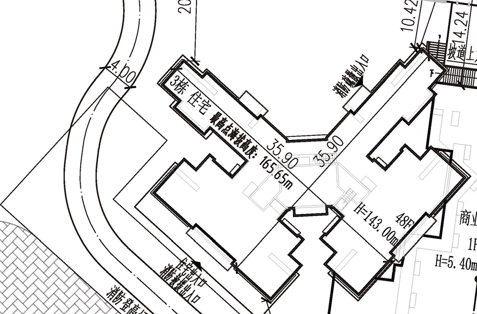
1、2、3栋 598套住宅 48/3层




1、2、3栋





传信息
传信息

积分:-

注册时间:-

5楼
2023-04-07 09:25:11
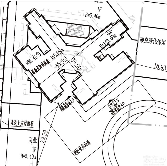
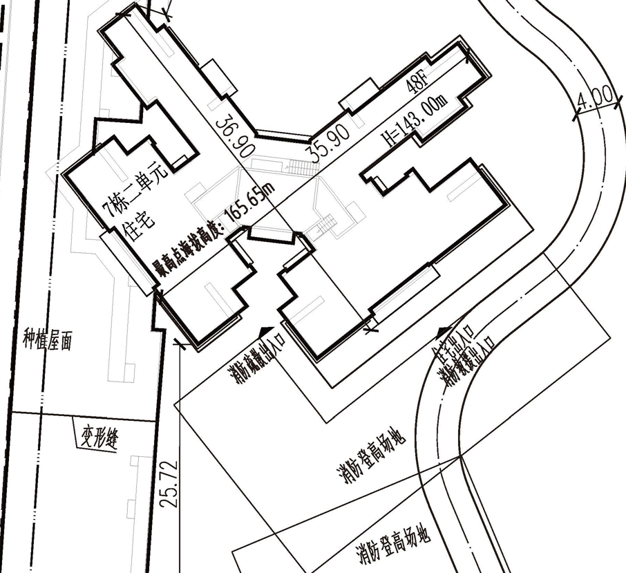
7、8栋 841套住宅,48/3层




7一二单元、8栋





传信息
传信息

积分:-

注册时间:-

6楼
2023-04-07 09:29:38
整体商品房2280套,保障房1730套,车位总4553輌,容积率5.49,限高166米




  • 插入图片

    支持一次选择9张图片上传(使用Ctrl、Shift选中);

    支持jpg、png、gif,单张图片不超过10M,png不超过1M,gif不超过300K。

    • 继续添加

  • 提到好友

3(16px)

楼主最近发表

相关帖子

    大家都在看

    下载家在深圳APP

    关注家在公众号