家在深圳,真实业主生活圈_房网论坛

0

|

6

鸿荣源西山旧改,居住商业类型

传信息
传信息

积分:-

注册时间:-

主楼
2023-02-09 10:12:26
标签: 点击标签查看相关内容

鸿荣源西山旧改,居住商业类型

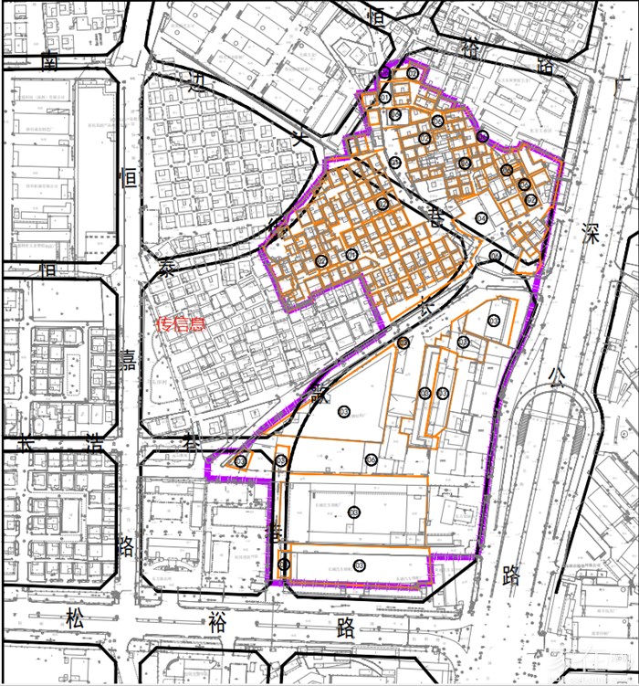
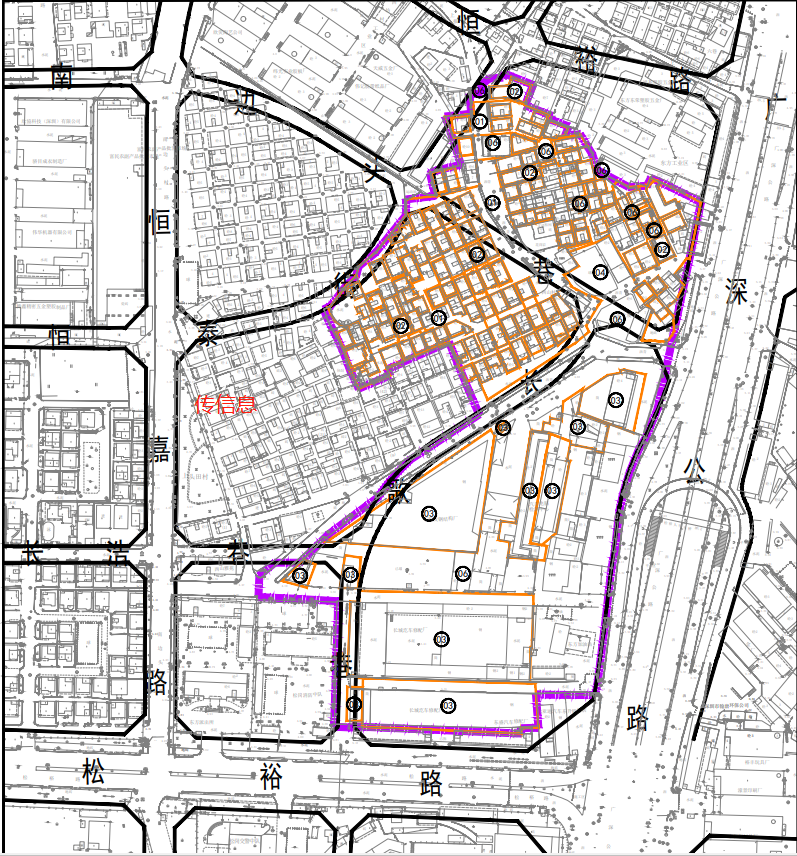
宝安区松岗街道西山城市更新单元位于松岗街道107国道与松裕路交汇处,拟拆除范围用地面积为84074平方米。拟更新方向为居住及商业等功能,深圳市鸿广源投资有限公司来文申请将该更新单元纳入城市更新单元计划。






分享
0
传信息
传信息

积分:-

注册时间:-

沙发
2023-02-09 10:14:31
松岗街道107国道与松裕路交汇处

传信息
传信息

积分:-

注册时间:-

板凳
2023-02-09 10:14:59

拟更新方向为居住及商业等功能



传信息
传信息

积分:-

注册时间:-

地板
2023-02-09 10:15:43
地块现状





传信息
传信息

积分:-

注册时间:-

4楼
2023-02-09 10:16:50
深圳市鸿广源投资有限公司成立于2007年09月11日,该司由鸿荣源持股60%、深圳市广兴源投资发展有限公司持股40%。鸿荣源集团多年来坚持投身粤港澳大湾区建设一线,依托深圳、深耕湾区,已累计综合开发房地产建筑面积逾千万平方米,打造了前海鸿荣源中心、壹方中心、壹成中心、熙龙湾等诸多项目。
传信息
传信息

积分:-

注册时间:-

5楼
2023-02-09 10:18:14
证明材料

专业设计与施工
专业设计与施工

积分:-

注册时间:-

6楼
2024-09-18 11:53:58
用户被禁言
  • 插入图片

    支持一次选择9张图片上传(使用Ctrl、Shift选中);

    支持jpg、png、gif,单张图片不超过10M,png不超过1M,gif不超过300K。

    • 继续添加

  • 提到好友

3(16px)

楼主最近发表

相关帖子

    大家都在看

    下载家在深圳APP

    关注家在公众号