标签:
点击标签查看相关内容
关于光明外国语学校扩建公示
光明区建筑工务署申请变更光明区外国语学校改扩建工程(A503-0109宗地)的《建设工程规划许可证》,因项目用地范围及规模调整,项目涉及原光明新区外国语学校(原A503-0088宗地)《建设工程规划许可证》(深规土建许字GM-2016-0011号)及已批总平面图调整。现根据《中华人民共和国城乡规划法》相关规定,将有关事项公示如下:
一、基本情况
光明区外国语学校改扩建工程位于光明区凤凰街道凤凰社区科泰路与丰成路交汇处西北角。原光明新区外国语学校(原A503-0088宗地)于2015年6月取得《建设用地规划许可证》(深规土许GM-2015-0012号),2016年3月取得《深圳市土地使用权出让合同》[深地合字(2016)7002号],2016年6月取得《建设工程规划许可证》(深规土建许字GM-2016-0011号)。
项目现因改扩建工程,扩大用地范围及建设内容,同步申请《建设用地规划许可证》及《建设工程规划许可证》变更手续。
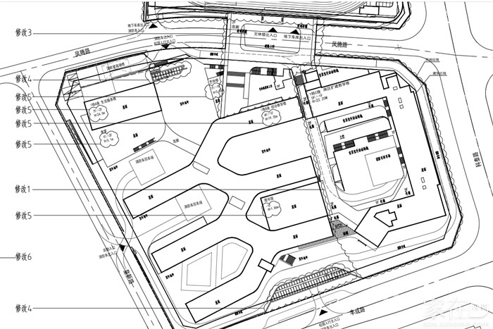
二、调整内容
本次变更的主要内容为(详见附件《屋顶总平面图》):
(一)拆除1栋B座综合教学楼东侧的田径场,并于该处新增1栋建筑,即1栋C座南区扩建教学楼。
(二)新增北侧用地,地块内新增1栋建筑,即2栋北区文体楼。
(三)新增连接南北用地建筑的连廊。
(四)南地块南侧主入口岗亭和北侧次入口岗亭平面及立面修改。
(五)项目整体统一正负零标高,建筑高度和层数表达相应调整。
(六)各项技术经济指标进行相应调整。
本次修改涉及建筑布局及功能调整,修改后各项规划指标符合《深圳市规划和自然资源局光明管理局关于光明区外国语学校改扩建工程用地规划许可变更事宜的公示》的规定要求,若上述公示存在异议,本公示将同步撤销。
![]()
![]()
一、基本情况
光明区外国语学校改扩建工程位于光明区凤凰街道凤凰社区科泰路与丰成路交汇处西北角。原光明新区外国语学校(原A503-0088宗地)于2015年6月取得《建设用地规划许可证》(深规土许GM-2015-0012号),2016年3月取得《深圳市土地使用权出让合同》[深地合字(2016)7002号],2016年6月取得《建设工程规划许可证》(深规土建许字GM-2016-0011号)。
项目现因改扩建工程,扩大用地范围及建设内容,同步申请《建设用地规划许可证》及《建设工程规划许可证》变更手续。
二、调整内容
本次变更的主要内容为(详见附件《屋顶总平面图》):
(一)拆除1栋B座综合教学楼东侧的田径场,并于该处新增1栋建筑,即1栋C座南区扩建教学楼。
(二)新增北侧用地,地块内新增1栋建筑,即2栋北区文体楼。
(三)新增连接南北用地建筑的连廊。
(四)南地块南侧主入口岗亭和北侧次入口岗亭平面及立面修改。
(五)项目整体统一正负零标高,建筑高度和层数表达相应调整。
(六)各项技术经济指标进行相应调整。
本次修改涉及建筑布局及功能调整,修改后各项规划指标符合《深圳市规划和自然资源局光明管理局关于光明区外国语学校改扩建工程用地规划许可变更事宜的公示》的规定要求,若上述公示存在异议,本公示将同步撤销。




粤公网安备 44030402000760号
