家在深圳,真实业主生活圈_房网论坛

0

|

15

鸿荣源博誉府二期户型图出炉,85-126平米

到底买哪
到底买哪

积分:-

注册时间:-

主楼
2022-04-24 10:49:11
标签: 点击标签查看相关内容

鸿荣源博誉府二期户型图出炉,85-126平米

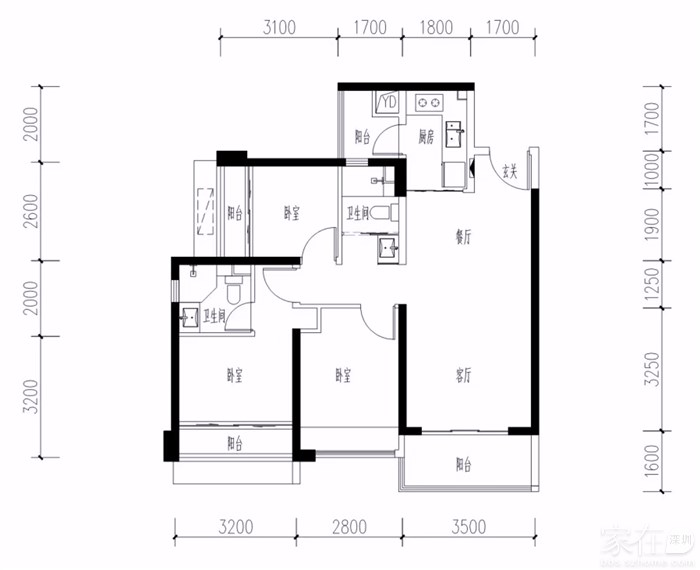
看到鸿荣源博誉府二期全网在推了,今天出了户型图,来晒晒,有人去看样板房了吗?不知道实物怎么样。

先来85平米三房,双阳台是亮点,厨房也有个小阳台。



分享
0
到底买哪
到底买哪

积分:-

注册时间:-

沙发
2022-04-24 10:50:28
96平米大三房,卧室和阳台都挺大




到底买哪
到底买哪

积分:-

注册时间:-

板凳
2022-04-24 10:51:26
123平米四房,三个阳台

五一想去看看了


到底买哪
到底买哪

积分:-

注册时间:-

地板
2022-04-24 10:52:04
发完了,大家觉得博誉府二期户型怎么样?感觉比一期更实用?
大龙儿
大龙儿

积分:-

注册时间:-

4楼
2022-04-24 10:53:52
二期价格多少?会跟一期一样吗

SpiritVivi
SpiritVivi

积分:-

注册时间:-

5楼
2022-04-24 11:57:56
其他没关注,但96的和一期的一模一样。可能我个人不清楚深圳房子的内部空间结构,但博誉府房间总体都很小,还是加了赠送飘窗的情况下,空间依然显得非常局促。然后厨房面积一般也非常小,96的好像连大的双门冰箱都放不了,除非把厨房带的阳台改了,但对于精装修来说,一开始就改很蛋疼。说到底还是公摊比较大,房子使用率只有75%左右。此外就是用心设计房子内部结构的房企太少了,这些年房子太好卖,都是套用模板。

在路上835
在路上835

积分:-

注册时间:-

6楼
2022-04-24 12:12:30 来自Android手机客户端
厨房阳台都成亮点了,这真是。。。
ericchan16
ericchan16

积分:-

注册时间:-

7楼
2022-04-24 12:37:38 来自iPhone客户端
没尺寸是怎么看出它大的
引用1楼楼主的发言:
96平米大三房,卧室和阳台都挺大


longhua1234
longhua1234

积分:-

注册时间:-

8楼
2022-04-24 13:24:19
限价以来75%的得房率算良心了。
引用5楼SpiritVivi的发言:
其他没关注,但96的和一期的一模一样。可能我个人不清楚深圳房子的内部空间结构,但博誉府房间总体都很小,还是加了赠送飘窗的情况下,空间依然显得非常局促。然后厨房面积一般也非常小,96的好像连大的双门冰箱都放不了,除非把厨房带的阳台改了,但对于精装修来说,一开始就改很蛋疼。说到底还是公摊比较大,房子使用率只有75%左右。此外就是用心设计房子内部结构的房企太少了,这些年房子太好卖,都是套用模板。

xihuxiaoyu
xihuxiaoyu

积分:-

注册时间:-

9楼
2022-04-24 13:40:58
用户被禁言
SpiritVivi
SpiritVivi

积分:-

注册时间:-

10楼
2022-04-24 14:40:53
这样的想法以后会被打破的。房地产市场以前是卖方市场,买家没什么话语权,以后买家话语权会慢慢增加,逼着买方优化。我自己是一期业主,当时看中的是开发商的口碑和位置,但对于房子内部结构设计并不是那么满意。交房日期晚点也勉强接受,但个人是非常不理解为什么要在厨房那搞个阳台,洗衣机我放客厅的阳台不是一样。
引用8楼longhua1234的发言:
限价以来75%的得房率算良心了。
引用5楼SpiritVivi的发言:
其他没关注,但96的和一期的一模一样。可能我个人不清楚深圳房子的内部空间结构,但博誉府房间总体都很小,还是加了赠送飘窗的情况下,空间依然显得非常局促。然后厨房面积一般也非常小,96的好像连大的双门冰箱都放不了,除非把厨房带的阳台改了,但对于精装修来说,一开始就改很蛋疼。说到底还是公摊比较大,房子使用率只有75%左右。此外就是用心设计房子内部结构的房企太少了,这些年房子太好卖,都是套用模板。

SpiritVivi
SpiritVivi

积分:-

注册时间:-

11楼
2022-04-24 14:46:00
这是一期96的尺寸,主卧带WC总共15平左右,两个次卧都大概在9平。

引用7楼ericchan16的发言:
没尺寸是怎么看出它大的
引用1楼楼主的发言:
96平米大三房,卧室和阳台都挺大


longhua1234
longhua1234

积分:-

注册时间:-

12楼
2022-04-24 14:51:20
以前的得房率高不是开发商良心,是偷面积

引用10楼SpiritVivi的发言:
这样的想法以后会被打破的。房地产市场以前是卖方市场,买家没什么话语权,以后买家话语权会慢慢增加,逼着买方优化。我自己是一期业主,当时看中的是开发商的口碑和位置,但对于房子内部结构设计并不是那么满意。交房日期晚点也勉强接受,但个人是非常不理解为什么要在厨房那搞个阳台,洗衣机我放客厅的阳台不是一样。
引用8楼longhua1234的发言:
限价以来75%的得房率算良心了。
引用5楼SpiritVivi的发言:
其他没关注,但96的和一期的一模一样。可能我个人不清楚深圳房子的内部空间结构,但博誉府房间总体都很小,还是加了赠送飘窗的情况下,空间依然显得非常局促。然后厨房面积一般也非常小,96的好像连大的双门冰箱都放不了,除非把厨房带的阳台改了,但对于精装修来说,一开始就改很蛋疼。说到底还是公摊比较大,房子使用率只有75%左右。此外就是用心设计房子内部结构的房企太少了,这些年房子太好卖,都是套用模板。

Kirk666
Kirk666

积分:-

注册时间:-

13楼
2022-05-03 10:47:59 来自Android手机客户端
我就不喜欢内衣内裤袜子晒客厅阳台,放生活阳台晒多好
引用SpiritVivi的发言:
这样的想法以后会被打破的。房地产市场以前是卖方市场,买家没什么话语权,以后买家话语权会慢慢增加,逼着买方优化。我自己是一期业主,当时看中的是开发商的口碑和位置,但对于房子内部结构设计并不是那么满意。交房日期晚点也勉强接受,但个人是非常不理解为什么要在厨房那搞个阳台,洗衣机我放客厅的阳台不是一样。
引用8楼longhua1234的发言:
限价以来75%的得房率算良心了。
引用5楼SpiritVivi的发言:
其他没关注,但96的和一期的一模一样。可能我个人不清楚深圳房子的内部空间结构,但博誉府房间总体都很小,还是加了赠送飘窗的情况下,空间依然显得非常局促。然后厨房面积一般也非常小,96的好像连大的双门冰箱都放不了,除非把厨房带的阳台改了,但对于精装修来说,一开始就改很蛋疼。说到底还是公摊比较大,房子使用率只有75%左右。此外就是用心设计房子内部结构的房企太少了,这些年房子太好卖,都是套用模板。

pony2022
pony2022

积分:-

注册时间:-

14楼
2022-05-12 11:43:04

大家好,我也是稀里糊涂买了一期的业主,博誉府有建微信群吗?大家可以一起加下共同交流。
谢谢!
pony2022
pony2022

积分:-

注册时间:-

15楼
2022-05-12 11:44:54

你好,
,可以加个微信一起交流,我也是江西九江的,可以私发下微信号加下。
引用10楼SpiritVivi的发言:
这样的想法以后会被打破的。房地产市场以前是卖方市场,买家没什么话语权,以后买家话语权会慢慢增加,逼着买方优化。我自己是一期业主,当时看中的是开发商的口碑和位置,但对于房子内部结构设计并不是那么满意。交房日期晚点也勉强接受,但个人是非常不理解为什么要在厨房那搞个阳台,洗衣机我放客厅的阳台不是一样。
引用8楼longhua1234的发言:
限价以来75%的得房率算良心了。
引用5楼SpiritVivi的发言:
其他没关注,但96的和一期的一模一样。可能我个人不清楚深圳房子的内部空间结构,但博誉府房间总体都很小,还是加了赠送飘窗的情况下,空间依然显得非常局促。然后厨房面积一般也非常小,96的好像连大的双门冰箱都放不了,除非把厨房带的阳台改了,但对于精装修来说,一开始就改很蛋疼。说到底还是公摊比较大,房子使用率只有75%左右。此外就是用心设计房子内部结构的房企太少了,这些年房子太好卖,都是套用模板。

  • 插入图片

    支持一次选择9张图片上传(使用Ctrl、Shift选中);

    支持jpg、png、gif,单张图片不超过10M,png不超过1M,gif不超过300K。

    • 继续添加

  • 提到好友

3(16px)

楼主最近发表

相关帖子

    大家都在看

    下载家在深圳APP

    关注家在公众号