家在深圳,真实业主生活圈_房网论坛

0

|

24

看完壹成中心10区和卓越和奕府样板房,说说感受

保持一米距离
保持一米距离

积分:-

注册时间:-

主楼
2022-04-11 16:37:42
标签: 点击标签查看相关内容

看完壹成中心10区和卓越和奕府样板房,说说感受

朋友一家最近在看房子,约着我们两口子一起去看了龙华两个最近准备开盘的壹成中心10区和卓越和奕府。

俗话说货比三家。看完心里确实有底了。

展厅对比:鸿荣源更有实力,展厅做的高大上,样板房也是实体样板房。
这一点卓越租的小门面展厅和只有一间搭的情景样板房确实小家子气。

鸿荣源



卓越






分享
0
保持一米距离
保持一米距离

积分:-

注册时间:-

沙发
2022-04-11 16:44:00
样板房,户型对比

由于看板房SS把我们手机收了,就说说感受吧。

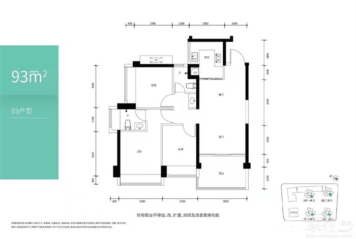
壹成中心10区开了85平米三房两厅两卫、94平米三房两厅两卫样板房。

85平米的三房很实用,相信看房多了就知道一般这种面积只有一个卫生间,但壹成带了两个,对于预算不高的刚需家庭很实用了。不过都是朝西的,如果喜欢的话只能安慰比朝北见不到阳光的强。低楼层总价580万左右。朋友看完这个有点心动。

94平米三房,属于舒适性,朝南看园林。大阳台很吸引人。有预算的可以去看看。





保持一米距离
保持一米距离

积分:-

注册时间:-

板凳
2022-04-11 16:49:14
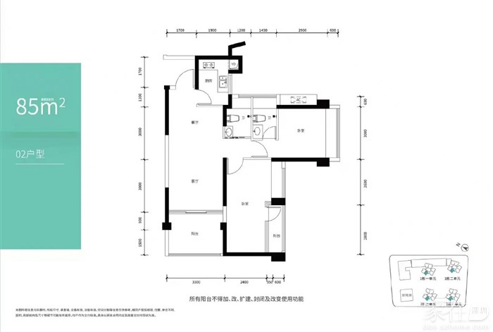
卓越和奕府

只开了一间110平米搭的情景样板房,看不到真实景观朝向

SS全程都在介绍他们的精装修,确实看的出来带的装修和品质比壹成中心高档。
这个很赞。

只不过110平米做成三房对刚需不是很友好,总价高(SS说价格参考壹成中心)压力还是有点大的。如果说110平做成舒适的三房也能接受,但是每个房间都很小,有点失望。
如果喜欢客厅大,房间小的也可以去看看。

总的来说卓越带的精装是亮点,户型确实没壹成中心优秀。





保持一米距离
保持一米距离

积分:-

注册时间:-

地板
2022-04-11 16:54:58
再来说说学校

大家都知道龙华的学位很紧张,尤其对于大社区壹成中心
壹成中心小区带了两所学校:龙华创新实验学校、龙华第二实验学校、目前十区边上在建龙华实验初中部。

卓越和奕府门口就有个龙峰小学,按就近入学原则,和奕府更轻松点。就看教学质量怎么样了。
保持一米距离
保持一米距离

积分:-

注册时间:-

4楼
2022-04-11 16:57:40
交通方向:壹成中心10区距离4号线龙华站500米,未来25号线景福站都比较方便。

卓越离未来22号线油松站近。

交通方便都不差。




保持一米距离
保持一米距离

积分:-

注册时间:-

5楼
2022-04-11 16:58:54
商业方面,壹成中心自带30万平米壹方天地商业中心,家门口就是大商场
卓越反正离的近可以共享配套
这一点壹成中心胜
保持一米距离
保持一米距离

积分:-

注册时间:-

6楼
2022-04-11 17:02:55
好了,说完了,欢迎大家补充。
西奥多
西奥多

积分:-

注册时间:-

7楼
2022-04-11 17:04:39 来自Android手机客户端
我也是两个,感觉壹城十区生活交通会更方便
leonard_shou
leonard_shou

积分:-

注册时间:-

8楼
2022-04-11 19:29:54 来自iPhone客户端
壹成10区的学位够不够用?还有龙华站坐地铁上下班需不需要等很久?交楼好晚,还得等三年。
至真至纯2021
至真至纯2021

积分:-

注册时间:-

9楼
2022-04-12 06:45:48 来自Android手机客户端
作为刚需,根据别人说的也去看了这两个盘,两个都不喜欢,第一居住舒适感很差,第二看了他们二手有一些89的四房现在也不过六百多一点,当然我不考虑,因为学校离得远小孩要接送要上学,周边人很杂,因为商业,我更喜欢学校离得近小孩挨着小区,第二交通拥堵让人烦躁  第三这一期和之前的比以后也竞争不过,另外我考虑的是四房
菲尼克斯太阳
菲尼克斯太阳

积分:-

注册时间:-

10楼
2022-04-12 10:01:04
如果是这俩比,十区怕是要完爆那个
zhu8299
zhu8299

积分:-

注册时间:-

11楼
2022-04-19 22:27:58 来自Android手机客户端
壹城中心有老带新活动,减免物业费。你朋友需要不?
梦美家
梦美家

积分:-

注册时间:-

12楼
2022-05-18 22:05:34 来自Android手机客户端
壹城中心十区挺好的,配套也好
深圳本地自住拆迁房便宜卖
深圳本地自住拆迁房便宜卖

积分:-

注册时间:-

13楼
2022-05-22 22:28:11
用户被禁言
kkking233
kkking233

积分:-

注册时间:-

14楼
2022-05-23 00:50:52 来自Android手机客户端
明天帮你表姐也买一套
引用深圳本地自住拆迁房便宜卖的发言:
卓越和奕府 不错昨天帮我表哥买了一套
rayathome
rayathome

积分:-

注册时间:-

15楼
2022-05-23 09:21:49
85做成三房两卫好厉害

迸击的雨果
迸击的雨果

积分:-

注册时间:-

16楼
2022-06-21 18:23:05 来自iPhone客户端
和奕府的准业主可以加我有群
daipeng9
daipeng9

积分:-

注册时间:-

17楼
2022-07-15 22:13:10
这区位图画得,差点以为在莲花山边上
还给我了米
还给我了米

积分:-

注册时间:-

18楼
2022-07-29 18:46:16 来自Android手机客户端
用户被禁言
湾区老周
湾区老周

积分:-

注册时间:-

19楼
2023-05-12 02:49:03 来自Android手机客户端
请问怎么进和奕府业主微信群?
开心消消乐
开心消消乐

积分:-

注册时间:-

20楼
2023-05-12 23:29:36 来自iPhone客户端
你的销售没有把你加进去吗??

这么不称职的销售吗?
引用19楼湾区老周的发言:
请问怎么进和奕府业主微信群?
  • 插入图片

    支持一次选择9张图片上传(使用Ctrl、Shift选中);

    支持jpg、png、gif,单张图片不超过10M,png不超过1M,gif不超过300K。

    • 继续添加

  • 提到好友

3(16px)

楼主最近发表

相关帖子

    大家都在看

    下载家在深圳APP

    关注家在公众号