家在深圳,真实业主生活圈_房网论坛

0

|

5

780户,关于卓越和奕府一期更多数据

神圣祷言
神圣祷言

积分:-

注册时间:-

主楼
2022-03-22 15:13:02
标签: 点击标签查看相关内容

780户,关于卓越和奕府一期更多数据

卓越和奕府一期估计也快入市了,等预售证中。
今天来818卓越和奕府更多的数据,方便大家了解。
这个壹成中心边上的新盘,有哪些人在关注呢?

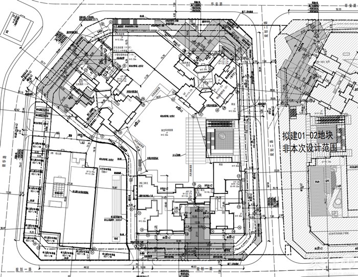
位置:深圳市龙华区龙华大道与工业路交汇处
建筑面积:98446.63平米
用地面积:14388.58平米
商业面积:2000平米
容积率:5.5
绿化率:30.69%
楼层:47层
停车位:537个
12班幼儿园
户数:780户(含保障房144户)
栋数:2栋(4个单元)
来看看卫星图



效果图,看样子分两期开发





分享
0
神圣祷言
神圣祷言

积分:-

注册时间:-

沙发
2022-03-22 15:39:03
分析一下优缺点


优点:距离龙华新地标壹方天地(总体量达到60万㎡,分为 A、B、C、D、E五个区域)400米 左右。门口是龙峰小学、距离龙华第二实验学校300米左右。门口有规划中的22号线油松站。

缺点:周边农民房较多,小区密度高,停车位不足。因为挨着壹成中心交通出行都会受影响(  较挤)。










神圣祷言
神圣祷言

积分:-

注册时间:-

板凳
2022-03-22 15:40:53
目前主体已经出地面几层了,预计4、5月入市。
大家来猜猜价格会是多少?









神圣祷言
神圣祷言

积分:-

注册时间:-

地板
2022-03-22 15:48:50
关于开发商:卓越集团

卓越集团于1996年成立,是经国家工商总局核准成立的跨行业、跨地区的外商投资集团公司,业务涉及房地产开发、商业经营、酒店管理、城市更新、物业管理、不动产担保等诸多领域。



没有最好
没有最好

积分:-

注册时间:-

4楼
2022-03-22 15:56:34
这个盘没壹成中心那么挤,又能共享那边的配套,门口是学校和地铁。
个人感觉比壹成中心住的更舒适?
kobe60
kobe60

积分:-

注册时间:-

5楼
2022-03-23 08:17:59
停车位太少,1: 0.68,卓越也算大开发商了,忽悠小白, ZF没有最低要求吗
  • 插入图片

    支持一次选择9张图片上传(使用Ctrl、Shift选中);

    支持jpg、png、gif,单张图片不超过10M,png不超过1M,gif不超过300K。

    • 继续添加

  • 提到好友

3(16px)

楼主最近发表

相关帖子

    大家都在看

    下载家在深圳APP

    关注家在公众号