家在深圳,真实业主生活圈_房网论坛

0

|

4

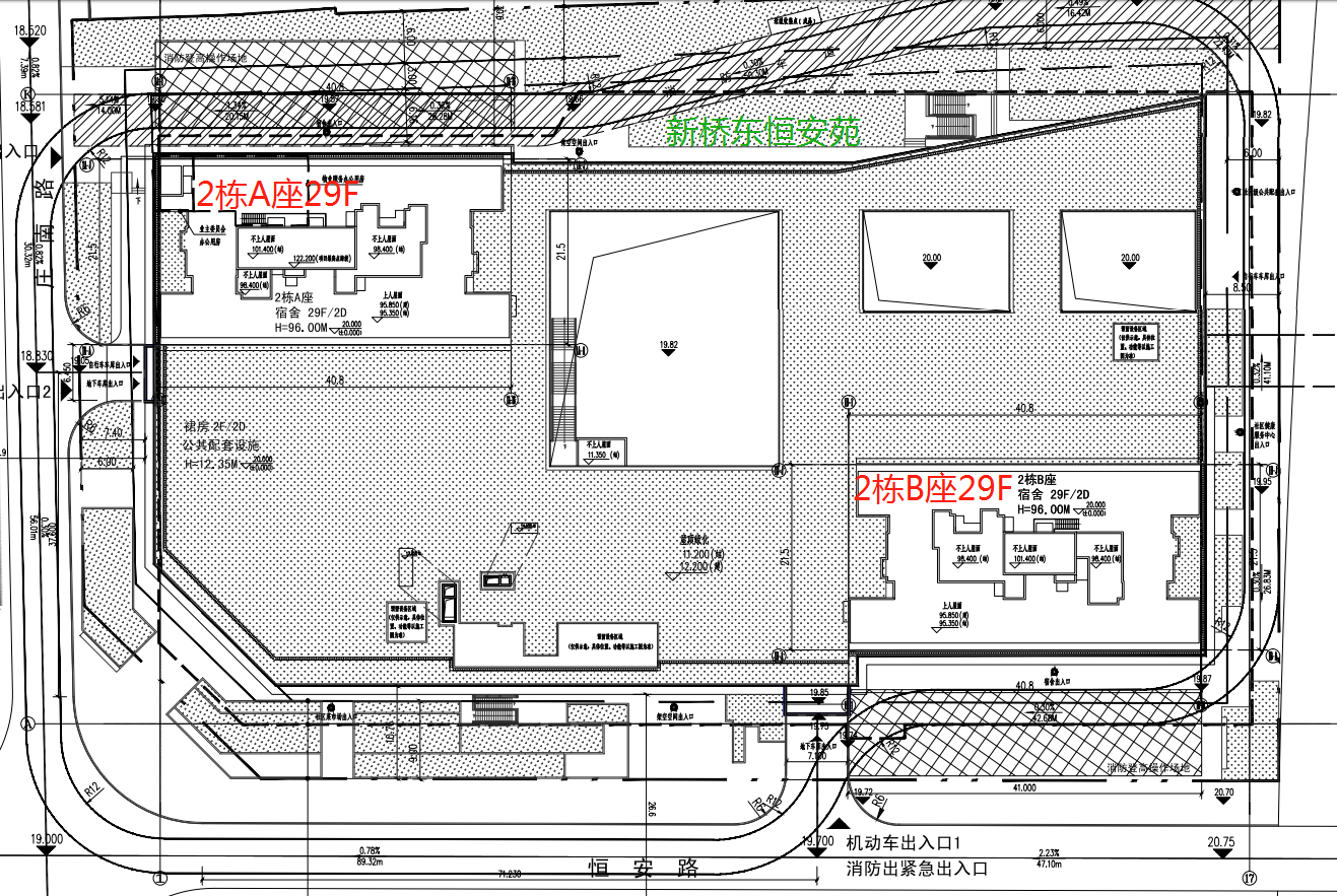
新桥东恒安苑2栋29层

传信息
传信息

积分:-

注册时间:-

主楼
2023-07-03 09:34:38
标签: 点击标签查看相关内容

新桥东恒安苑2栋29层

工程名称:新桥东恒安苑(A325-0228)(桩基础工程)

建设单位:深圳市宝实置业有限公司

建设规模:72719.21平方米

建设地址:深圳市宝安区新桥街道新桥东片区

合同价格:933.792255万元

设计单位:奥意建筑工程设计有限公司

施工单位:深圳市湛联基础建筑工程有限公司

监理单位:深圳市合创建设工程顾问有限公司合同

开工日期:2023-02-01合同竣工日期:2023-08-29

分享
0
传信息
传信息

积分:-

注册时间:-

沙发
2023-07-03 09:39:27
平面图

传信息
传信息

积分:-

注册时间:-

板凳
2023-07-03 09:39:38
参数

传信息
传信息

积分:-

注册时间:-

地板
2023-07-03 09:40:00
许可证

传信息
传信息

积分:-

注册时间:-

4楼
2023-07-03 09:43:45
位置

  • 插入图片

    支持一次选择9张图片上传(使用Ctrl、Shift选中);

    支持jpg、png、gif,单张图片不超过10M,png不超过1M,gif不超过300K。

    • 继续添加

  • 提到好友

3(16px)

楼主最近发表

相关帖子

    大家都在看

    下载家在深圳APP

    关注家在公众号