家在深圳,真实业主生活圈_房网论坛

0

|

8

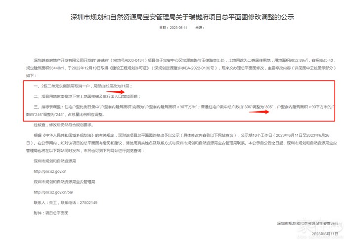
瑞樾府305套,改为31层(10月开?)

宝隔中
宝隔中

积分:-

注册时间:-

主楼
2023-06-13 16:53:25
标签: 点击标签查看相关内容

瑞樾府305套,改为31层(10月开?)

2栋二单元东侧顶层取消一户,局部由32层改为31层;


普通住宅户数中总户数由“306”调整为“305


分享
0
宝隔中
宝隔中

积分:-

注册时间:-

沙发
2023-06-13 16:54:49
305套住宅,给上面56套,自持226套


宝隔中
宝隔中

积分:-

注册时间:-

板凳
2023-06-13 16:55:03
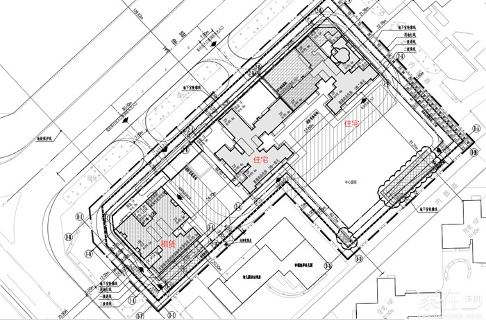
平面图

Jonasjiao
Jonasjiao

积分:-

注册时间:-

地板
2023-06-13 17:03:11
太少了,不够抢
福田的天空很蓝
福田的天空很蓝

积分:-

注册时间:-

4楼
2023-06-14 10:45:18 来自Android手机客户端
谁抢?傻子抢吗?大多交给上面的都半价卖,人家不去买半价的人才房,抢你的高价商品房?
旗开得胜168
旗开得胜168

积分:-

注册时间:-

5楼
2023-06-14 12:42:05
越秀碧海的那个项目就被抢了,事实证明,价格还行地段还行,深圳买的人不缺
引用4楼福田的天空很蓝的发言:
谁抢?傻子抢吗?大多交给上面的都半价卖,人家不去买半价的人才房,抢你的高价商品房?
梧桐细雨还在下雨
梧桐细雨还在下雨

积分:-

注册时间:-

6楼
2023-06-14 16:50:42
用户被禁言
张益民
张益民

积分:-

注册时间:-

7楼
2023-06-14 18:48:00 来自iPhone客户端
这盘唯一的亮点就是有110平4房户型吧(据传),人才房最高只有3房。1000万内宝中新房4房还是值得考虑一下,如果价格还有优惠应该能卖完,毕竟也没几套
引用4楼福田的天空很蓝的发言:
谁抢?傻子抢吗?大多交给上面的都半价卖,人家不去买半价的人才房,抢你的高价商品房?
markfang
markfang

积分:-

注册时间:-

8楼
2023-06-16 07:57:07
说好的公共车位还有么?
  • 插入图片

    支持一次选择9张图片上传(使用Ctrl、Shift选中);

    支持jpg、png、gif,单张图片不超过10M,png不超过1M,gif不超过300K。

    • 继续添加

  • 提到好友

3(16px)

楼主最近发表

相关帖子

    大家都在看

    下载家在深圳APP

    关注家在公众号