家在深圳,真实业主生活圈_房网论坛

0

|

4

宝中心区N10区幼儿园许可证(旁写子楼地块央企进入)

BF香
BF香

积分:-

注册时间:-

主楼
2023-01-11 15:25:02
标签: 点击标签查看相关内容

宝中心区N10区幼儿园许可证(旁写子楼地块央企进入)

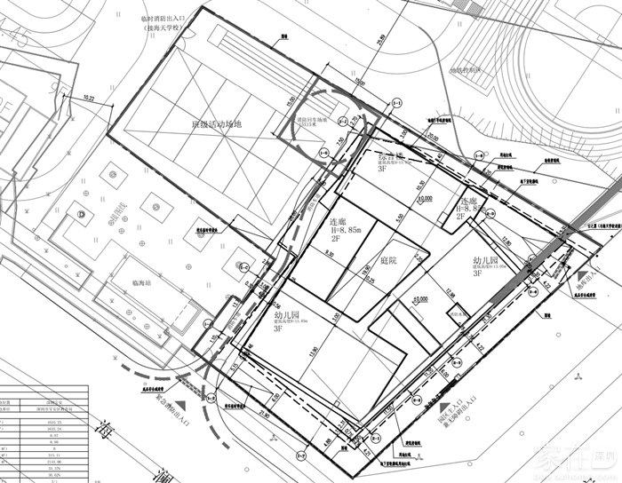
 深圳市宝安区教育局的区中心区N10区幼儿园(暂定名)(宗地号为A004-0177)《建设工程规划许可证》及总平面图





分享
0
BF香
BF香

积分:-

注册时间:-

沙发
2023-01-11 15:27:16
位置与旁边九年制学校进度

BF香
BF香

积分:-

注册时间:-

板凳
2023-01-11 15:29:35
央企拿下,以后景观还不错


竞得人
紫荆文化股份有限公司

成交价
150900 万元



BF香
BF香

积分:-

注册时间:-

地板
2023-01-11 15:31:20
A004-0180宗地出让结果
2023年01月10日,交易结果如下:

宗地号: A004-0180;

竞得人: 紫荆文化股份有限公司;

宗地位置: 宝安区新安街道;

土地用途: 商业用地;

土地面积: 8050.55平方米;

建筑面积: 64400平方米;

起始价: 150900万元;

成交价: 150900万元;

综合楼面单价: 23431.68元/平方米。



BF香
BF香

积分:-

注册时间:-

4楼
2023-01-11 15:33:21
后面楼盘景观就有些看不到海了

  • 插入图片

    支持一次选择9张图片上传(使用Ctrl、Shift选中);

    支持jpg、png、gif,单张图片不超过10M,png不超过1M,gif不超过300K。

    • 继续添加

  • 提到好友

3(16px)

楼主最近发表

相关帖子

    大家都在看

    下载家在深圳APP

    关注家在公众号