《品味》-南山·TCL科学院国际E城,现代简约风
本案位于南山区中山园路TCL科学院国际E城,业主家靠山。业主他们从结婚到现在一直住这里,房屋装修过时显老态,他们决定进行简约高级的升级改造。于是朋友介绍过来乐蜂。现在主要是业主夫妻俩和女儿一起住,父母会偶尔来一下。想换成简约高级一点的,设计师按业主需求设计了一个以原木和白色为主要色系的简约设计。接下来跟着小编一起去揭秘一下设计成啥样了吧!
《品味》
《Pinwei》
项目面积/Area:159.5m²
项目地址/Location:深圳·南山-TCL科学院国际E城
风格/style:现代简约风
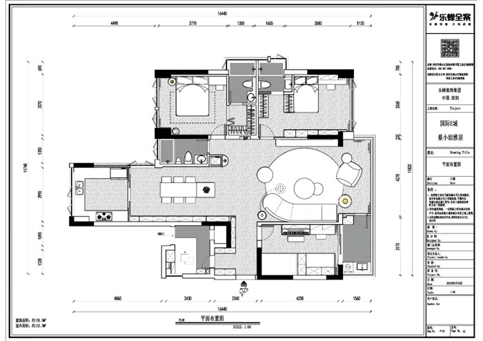
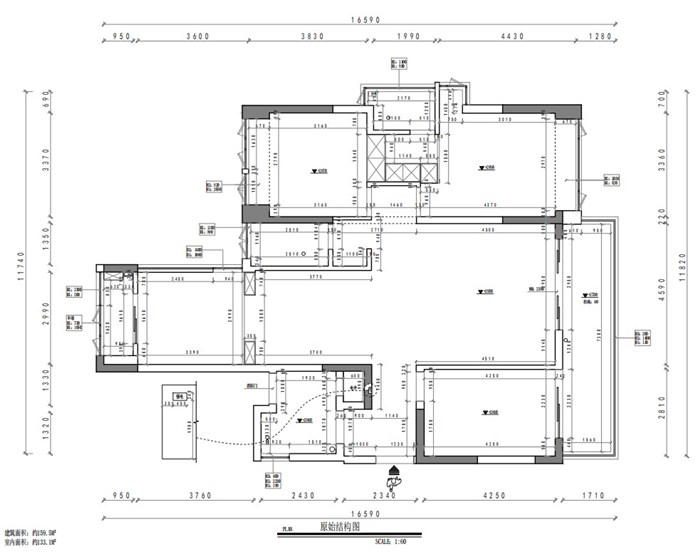
户型分析
改造前:
①房屋装修时间长了比较老旧,需要改造成整体简单高级一点
②阳台影响光线,屋内光线不是很足
③厨房餐厅布局不太好需要调整
改造后:
①阳台打通,客厅更透亮。
②整体设计简约高级
③厨房餐厅调整,厨房变宽敞操作更方便,餐厅变为开放式
玄关
进入居室,首先映入眼帘的是精致的玄关设计。左边悬挂着配有原木质感的鞋柜,两层镂空设计既美观又实用,上层用于装饰,下层则正好放置钥匙和手提包。右边衣帽柜设计大方得体,方便业主挂置外套和帽子,两边底部还设计了黑色板块,可以轻松更换鞋履。
客厅
客厅采用了哑光砖地板,地面通铺至阳台,原木和浅灰暖色系交织,营造出温馨自然的氛围。宽敞的客厅配备了一扇大落地窗,窗帘选用遮光和白纱两种材质,既保护隐私,又充分利用阳光自然光,营造出舒适宜居的环境。
沙发区域采用典雅的浅色半包沙发,在左边位置配搭了一款矮绿色的懒人沙发,两者互相映衬,展现出独具美感的设计。背景墙运用了大理石飘花的背景墙装饰,黑色的钓鱼灯又为空间增添一份独特的格调。
更有趣味性的是,设计师在原木墙上巧妙地隐匿了一组推门即是另一个空间。右边的小熊装饰则为整个房间增添了一份亲切可人的气息。一个不规则造型的原木茶几,更为空间注入了一份自然质朴的气息。
电视背景墙运用了原木和白色乳胶漆的点缀,创造出一份质朴与自然共存的氛围,窗外的山显得非同凡响,让屋内空气也更加清新宜人。
悬浮电视的背景墙采用了嵌入式电视技术,并由浅色原木板做装饰,如此设计充分展现了现代与自然的和谐共处。
墙面旁设计的暖光线灯,瞬间让生活空间温馨起来。而原木背景墙柜则为整个房间提供了额外的储物空间。





粤公网安备 44030402000760号
