家在深圳,真实业主生活圈_房网论坛

0

|

4

盎然 | 以光影为序布置梦想

吉祥斋装饰
吉祥斋装饰

积分:-

注册时间:-

主楼
2023-02-20 09:12:30
标签: 点击标签查看相关内容

盎然 | 以光影为序布置梦想



从圆心中能够画出多少条半径,就有多少道生命的途径


在自由的空间解锁更多生活场景叙事

是自然纯粹的居家空间

    


分享
0
吉祥斋装饰
吉祥斋装饰

积分:-

注册时间:-

沙发
2023-02-20 09:19:08

PART·1

绿意盎然的阳光之厅


家是生活的落脚点,它应该是舒适、悠闲的。以光影为序,每个空间只布置基本家具,设计的元素简化到最少。









空间的留白,用光线填满。原木和白色相映趣,以最简单的方式创造出温暖与舒适,烘托出空间的质感。




入户玄关与厨房餐厅联通,穿过玄关,是开放的餐厨区域,通透的空间被温柔静谧的木色包裹,自然、清新、有生机。




吉祥斋装饰
吉祥斋装饰

积分:-

注册时间:-

板凳
2023-02-20 09:21:30

PART·2

开放式的自由空间


厨房打开后,视觉上空间大了不少。定制橱柜和餐边柜满足了收纳上的需求,让空间更加规整、干净。




吉祥斋装饰
吉祥斋装饰

积分:-

注册时间:-

地板
2023-02-20 09:25:17

PART·3

隐秘的角落


主卧依旧是简约的基调,两个窗户给室内带来明亮光线,架子床、床头柜、投影架有序排列,细品之下,有一种安静的美感。









次卧简单舒适,木质背景墙更有温馨氛围,描绘温暖的生活场景。





吉祥斋装饰
吉祥斋装饰

积分:-

注册时间:-

4楼
2023-02-20 09:29:44

PART·4

项目信息 改造亮点


项目名称 | 海纳公馆室内空间改造项目地点 | 深圳·宝安项目面积 | 89㎡
竣工时间 | 2022年12月
设计机构 | 禾颖室内空间设计

主要选材 | 木地板、乳胶漆、布艺




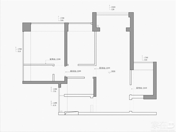
原始结构图

平面布置图

打开餐厨区域的空间,形成流畅的空间动线。同时每个空间定制储物柜,把杂物收纳起来,让空间规整、干净。厨房原来窗边位置是个飘窗,设计师把它包进橱柜抬高,增加厨房的操作台面,打造统一和谐的空间视觉。





  • 插入图片

    支持一次选择9张图片上传(使用Ctrl、Shift选中);

    支持jpg、png、gif,单张图片不超过10M,png不超过1M,gif不超过300K。

    • 继续添加

  • 提到好友

3(16px)

楼主最近发表

相关帖子

    大家都在看

    下载家在深圳APP

    关注家在公众号