家在深圳,真实业主生活圈_房网论坛

0

|

36

复古混搭风装修日记,福田105㎡,设计师+自有施工+第三方监理+我

禧棠
禧棠

积分:-

注册时间:-

主楼
2024-10-17 15:29:54
标签: 点击标签查看相关内容

复古混搭风装修日记,福田105㎡,设计师+自有施工+第三方监理+我

房网老人了,注册个新号来记录装修过程

八月过户,就兴冲冲的到处找装修公司。同事介绍、某红书、某音、房网看了一大圈,看得头大,先后见了3个设计公司和3家装修公司,最后选了我的设计师,其他几家也还行,不过总觉得他们的设计有点套模板,且很遵从风格化,我不太喜欢

我家的设计算是去风格化吧,我自己定义是复古混搭风,哈哈哈
怕设计和施工中途有扯皮,用设计师自有的施工队,加上第三方监理,再加上本仙,四个臭皮匠看看能不能做出我想要的样子,国庆前设计师选了日子和时辰就开工了





分享
0
禧棠
禧棠

积分:-

注册时间:-

沙发
2024-10-17 15:48:19
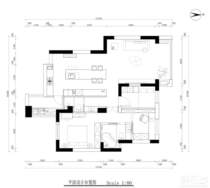
先上户型图很少在家做饭,就用开放式厨房,大长桌加岛台很是喜欢
给老公安排了一个小书房,打游戏、工作,他就在他的小天地折腾吧,别来烦我
主卫不大,力排众议还是坚持要个浴缸






禧棠
禧棠

积分:-

注册时间:-

板凳
2024-10-17 16:42:14
总预算60w,只给设计师说有50,留了一手怕花超了
目前设计费花了3.7W,施工17W,监理0.6W
马上就是橱柜啊窗户啊一堆等着付钱的

厨房选了一版南洋风厨房的设计
最喜欢的还是主卧的双开门,1米2左右,进门满满仪式感心情大好,但是一点不影响吵个架

这是效果图,期待1:1落地




禧棠
禧棠

积分:-

注册时间:-

地板
2024-10-17 16:56:37
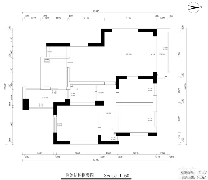
好吧,国庆节开始拆了个面目全非


禧棠
禧棠

积分:-

注册时间:-

4楼
2024-10-17 17:03:02
这题我会,我在某红书上做过攻略
砌墙要挂网,最上面一层斜着放,墙体更牢固
还不错,都挺标准




禧棠
禧棠

积分:-

注册时间:-

5楼
2024-10-17 17:04:34
朋友送了个过滤器,又省了


禧棠
禧棠

积分:-

注册时间:-

6楼
2024-10-17 17:22:22
项目经理每天都去,晚上都会拍照片在群里说说情况,现场也收拾得挺干净,比我刚开始设想的要省心,这几张是最近拍的,等有空再来更新




禧棠
禧棠

积分:-

注册时间:-

7楼
2024-10-17 17:24:48

橱柜厂家出了几张图,感觉不咋地
等设计师看了要不要修改,帮我加点收纳设计进去,这个柜子看着有点普通



日暮银河0
日暮银河0

积分:-

注册时间:-

8楼
2024-10-17 18:50:14
大门在哪里?
引用1楼楼主的发言:
先上户型图很少在家做饭,就用开放式厨房,大长桌加岛台很是喜欢
给老公安排了一个小书房,打游戏、工作,他就在他的小天地折腾吧,别来烦我
主卫不大,力排众议还是坚持要个浴缸


melodyhank
melodyhank

积分:-

注册时间:-

9楼
2024-10-18 13:01:13 来自iPhone客户端
监理是哪个?
幸福家装饰队
幸福家装饰队

积分:-

注册时间:-

10楼
2024-10-19 19:05:21 来自Android手机客户端
除了装某蜜还有牛某尖,还有啥
引用melodyhank的发言:
监理是哪个?
幸福家装饰队
幸福家装饰队

积分:-

注册时间:-

11楼
2024-10-19 19:07:33 来自Android手机客户端
左上角的那个应该是入户门
引用日暮银河0的发言:
大门在哪里?
引用1楼楼主的发言:
先上户型图很少在家做饭,就用开放式厨房,大长桌加岛台很是喜欢
给老公安排了一个小书房,打游戏、工作,他就在他的小天地折腾吧,别来烦我
主卫不大,力排众议还是坚持要个浴缸


禧棠
禧棠

积分:-

注册时间:-

12楼
2024-10-21 15:01:50
左上角,一进门就是我那心心念念的3.7米大餐桌
引用8楼日暮银河0的发言:
大门在哪里?
引用1楼楼主的发言:
先上户型图很少在家做饭,就用开放式厨房,大长桌加岛台很是喜欢
给老公安排了一个小书房,打游戏、工作,他就在他的小天地折腾吧,别来烦我
主卫不大,力排众议还是坚持要个浴缸


禧棠
禧棠

积分:-

注册时间:-

13楼
2024-10-21 15:04:01
不是,我没找大公司的监理,是装修群姐妹推荐的私人监理。没有贬低大公司监理的意思,只是觉得不知道交了钱之后派过来的监理靠不靠谱,不可控,私人监理反正我就认准这个人,他靠谱就行
引用10楼幸福家装饰队的发言:
除了装某蜜还有牛某尖,还有啥
引用melodyhank的发言:
监理是哪个?
禧棠
禧棠

积分:-

注册时间:-

14楼
2024-10-21 15:09:02
今早水电定位,前天把橱柜的图纸催出来了。
我家是风管机+挂机,水电定位风管机的人也到了,项目经理、设计师、监理还有我家俩搞了两个多小时,现场临时增加了几个插座
风管机的老板本来派个小弟过来,被设计师一顿电话吼,最后老板也过来了,我家就这么点金额搞得我都有点不好意思
崖雷
崖雷

积分:-

注册时间:-

15楼
2024-10-21 18:07:15
来过
强烈支持

崖雷
五铭
五铭

积分:-

注册时间:-

16楼
2024-10-22 11:46:39
烤紅薯
烤紅薯

积分:-

注册时间:-

17楼
2024-10-22 12:46:17 来自Android手机客户端
装修不容易,学习
513950795
513950795

积分:-

注册时间:-

18楼
2024-10-23 10:06:40

禧棠
禧棠

积分:-

注册时间:-

19楼
2024-10-23 15:15:52
商量以后,插座图和开关图都改动了
最麻烦的就是水电,能想到哪里要装开关插座,尽量多装一些,家里电器越来越多好了,交给他们去弄吧,过几天再去看看









禧棠
禧棠

积分:-

注册时间:-

20楼
2024-10-24 19:07:33
我105的房子,刷墙的面积有280多


  • 插入图片

    支持一次选择9张图片上传(使用Ctrl、Shift选中);

    支持jpg、png、gif,单张图片不超过10M,png不超过1M,gif不超过300K。

    • 继续添加

  • 提到好友

3(16px)

楼主最近发表

相关帖子

    大家都在看

    下载家在深圳APP

    关注家在公众号