家在深圳,真实业主生活圈_房网论坛

0

|

2

龙华红山地铁口安宏基天曜57-97-112-116-135平 耀世发售!

张东新x
张东新x

积分:-

注册时间:-

主楼
2023-07-18 18:15:22 来自Android手机客户端
标签: 点击标签查看相关内容

龙华红山地铁口安宏基天曜57-97-112-116-135平 耀世发售!

龙华红山地铁口安宏基天曜57-97-116-135平 耀世发售!
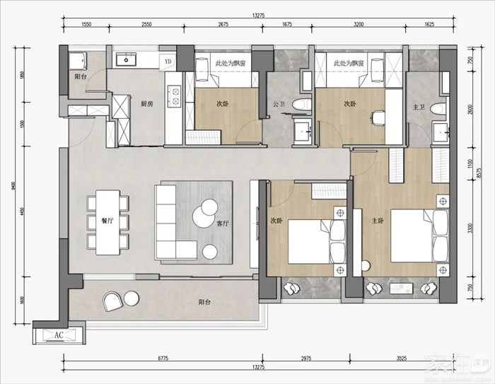
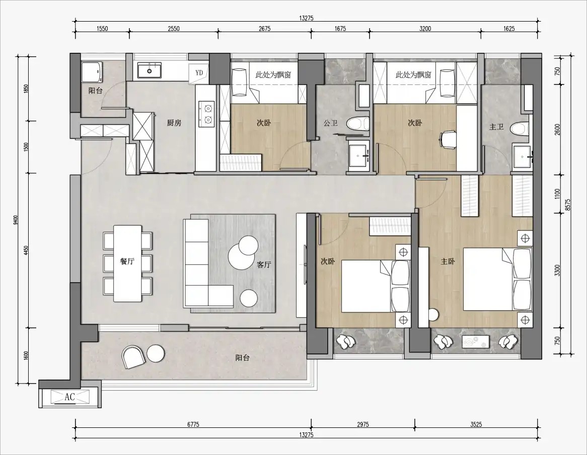
主力户型:
56㎡  两房户型,422-437万
112㎡ 四房户型,823-837万
114㎡ 四房户型,827-840万
116㎡ 四房户型,848-903万
135㎡ 四房户型,1056-1118万
97㎡  三房户型,679-736万
看房联系:15899890379张先生













分享
0
张东新x
张东新x

积分:-

注册时间:-

沙发
2023-07-18 23:59:51 来自Android手机客户端
张东新x
张东新x

积分:-

注册时间:-

板凳
2023-07-23 21:44:45 来自Android手机客户端
  • 插入图片

    支持一次选择9张图片上传(使用Ctrl、Shift选中);

    支持jpg、png、gif,单张图片不超过10M,png不超过1M,gif不超过300K。

    • 继续添加

  • 提到好友

3(16px)

楼主最近发表

相关帖子

    大家都在看

    下载家在深圳APP

    关注家在公众号