家在深圳,真实业主生活圈_房网论坛

0

|

2

深圳北站中洲迎玺三期已取证,全国人民都可以买的新房?

天下小卫士
天下小卫士

积分:-

注册时间:-

主楼
2025-02-16 08:52:38 来自iPhone客户端
标签: 点击标签查看相关内容

深圳北站中洲迎玺三期已取证,全国人民都可以买的新房?





分享
0
天下小卫士
天下小卫士

积分:-

注册时间:-

沙发
2025-02-16 10:36:55 来自iPhone客户端
这价格香不香?

天下小卫士
天下小卫士

积分:-

注册时间:-

板凳
2025-02-16 14:35:32 来自iPhone客户端
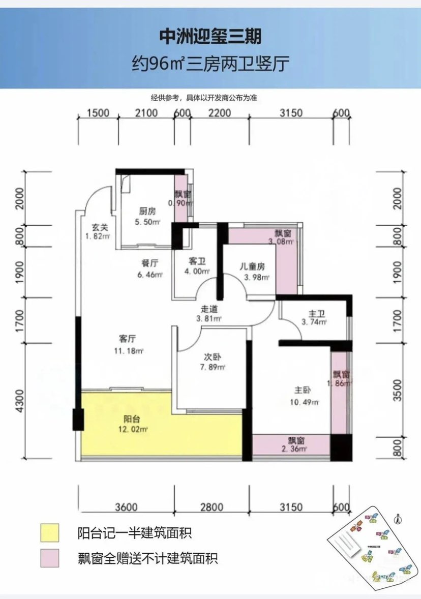
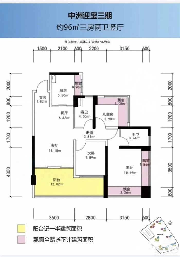
户型图鉴赏,感兴趣来👀👀







  • 插入图片

    支持一次选择9张图片上传(使用Ctrl、Shift选中);

    支持jpg、png、gif,单张图片不超过10M,png不超过1M,gif不超过300K。

    • 继续添加

  • 提到好友

3(16px)

楼主最近发表

相关帖子

    大家都在看

    下载家在深圳APP

    关注家在公众号