坂田五和枢纽旧改!!直接跟招商蛇口签合同,单价3.X万, 13686434714
坂田五和枢纽片区重点城市更新,五和长坑小区正在拆迁中,现有资源出售,能开发商登记确权,价格超低!城际轨道大亚湾城际,深圳机场到大亚湾
咨询服务:13686434714
项目名称:坂田五和枢纽片区重点城市更新单元,回迁房指标
面积:73——125平方
价格:3.X万/平
户型:暂未出
装修补偿:800元每平方
目前进度:签约中拆迁中
中标公司: 招商蛇口集团
开 发 商:招商蛇口集团
交房日期:取得施工许可证36个月
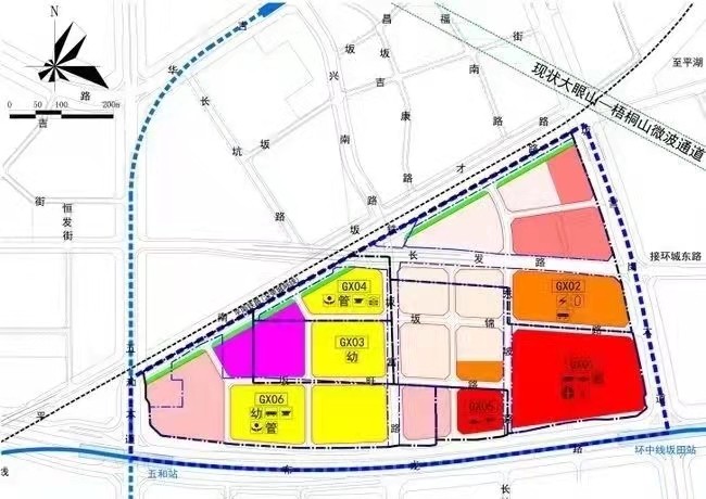
项目位置:坂田五和长坑小区
名额条件:不用社保,不用名额,不限购,直接签约!
项目简介:
1主导用地功能:商业、居住2建设规模:
1、造用地规模约27.2公顷,其中建设用地约16公顷(不计公共绿地、独立占地的配套设施、
市政道路用地和现状保留用地),公共绿地不小于1.3公顷。
2、改造范围内建筑面积上限为90万平方米(不
包括公共设施、市政设施及现状保留建设面积),其中二类居住建筇面积上限为32万平方米,商业与服务
业(C1+C3)建筑面积下限为15万平方米,商业性办公建的面积下限为30万平方米。
3配套设施:
1处200床综合医院(〔现状扩建或调整诜址新建)、
1处公交首末站(5000平方米,可晽设1处邮政所、1处公共厕所。
项目拆迁标地物
项目拆迁范围图
三地铁口物业(五和站/坂田站/坂田北-见图)
5号地铁线五和站O距离,
租金收益非常丰厚
一类管理区,列入近期发展单元
政府主导的重要公共功能区,
重点为主导规划编制上,
开发主体引入,拆迁谈判监管
4·城市设计:
1、调用地公共性和功能混合度,鼓励髙强度开发,局部引导超髙层建筑建设,起标志性
和门户节点的作用。
2、地铁站点景观界面必须充分展示现代化城市的景观风貌,慎重处理建筑红线退让以
及建筑造型、风格、色彩和平面布置形式等,结合绿化景观带,充分展示本片区的良好形象




粤公网安备 44030402000760号
