标签: 点击标签查看相关内容

【个人】松茂御龙湾一手新房,保留单位,楼王栋,详情可咨询

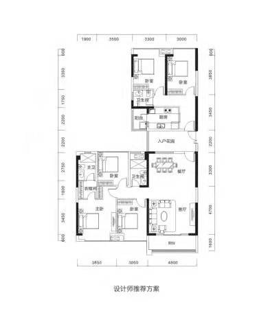
交易类型:出售发布人:个人区域:宝安区 西乡片区小区名称:松茂御龙湾详细地址:宝安区碧海片区银田路与宝怡路交汇处(恒生医院公交总站对面)户型:四房以上面积:168m²总价:--楼层:第26层 共31层朝向:联系人:柳总联系电话:18165213279



松茂御龙湾168、272户型,楼王栋,高楼层,有需要的朋友可以私聊

分享
0