标签: 点击标签查看相关内容

【中介】宝安御景华府返佣二至五万

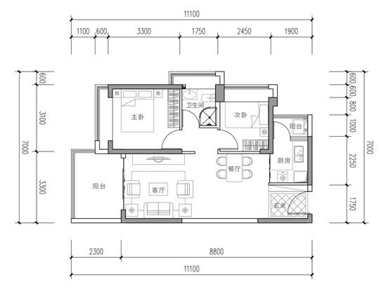
交易类型:出售发布人:经纪人区域:宝安区 观澜片区小区名称:御景华府户型:三房面积:89m²总价:--楼层:第20层 共33层朝向:东南联系人:李有联系电话:15817227022



把阳台封起来相当于320左右就能买个68小三房,厨房那边生活阳台还可以用来晾衣服,而且几个房间次卧都有7平以上都能摆床加上衣柜,主卧十二平面,旁边万科启程80平的最小一个房间才五个平方左右,这个性价比真的很高了,坪山三房都到350以上了,龙华外国语学校也好,区政府也会搬过来,还有鸿荣源运营的商业,还有四馆在附近。







分享
0