标签:
点击标签查看相关内容
【中介】鹭湖御景华府返佣二至五万
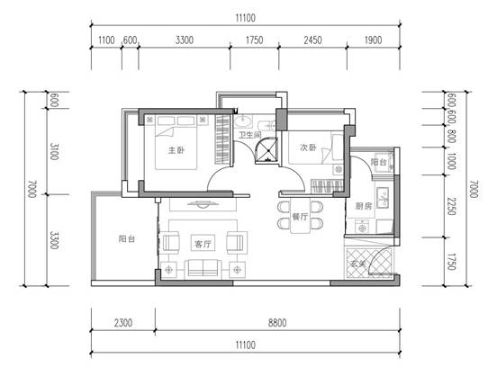
交易类型:出售发布人:经纪人区域:宝安区 观澜片区小区名称:御景华府户型:三房面积:73m²总价:--楼层:第10层 共33层朝向:东南联系人:李有联系电话:15817227022
目前来说客户总资金300多万的可以考虑他的俩房小三房,大一点户型的等到鹏瑞颐璟府清盘了他就比较好卖
目前来说客户总资金300多万的可以考虑他的俩房小三房,大一点户型的等到鹏瑞颐璟府清盘了他就比较好卖





粤公网安备 44030402000760号
