标签:
点击标签查看相关内容
翰熙典居PK云启源境,选哪?(850万预算)
南山最近新盘层出不穷,又到了选房困难的时候了。
最近群里问的最多的两个新盘一个是南头片区的中海云启源境,一个是科技园片区翰熙典居。
论坛高手多,850万预算的话,大家看好哪个楼盘?
楼盘地图
![]()
先来说说翰熙典居(桂庙新村旧改)
地址:南山区粤海街道,白石路与学府路交叉口西北侧。
开发商:3家公司控股(枫叶集团75%、阳光华艺15%、宇泽投资10%)
占地面积:约41660平方米。
总建筑面积:约50.57万平方米。
容积率:约8.62。
绿化率:35%。
产权年限:70年(2023年-2093年)。
总户数:3030户,其中可售商品房714套,保障房791套,回迁房1525套
车位数:2600个,车位占比约1:0.86。
交楼时间:预计2027年。
交楼标准:精装修。
交通配套:距离9号线深大南站200米左右,15号线(在建)也在此交汇
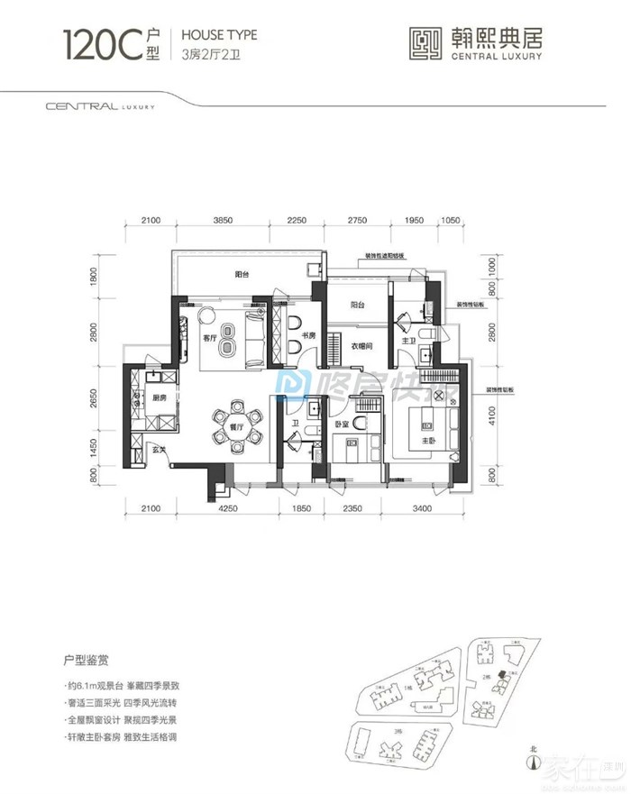
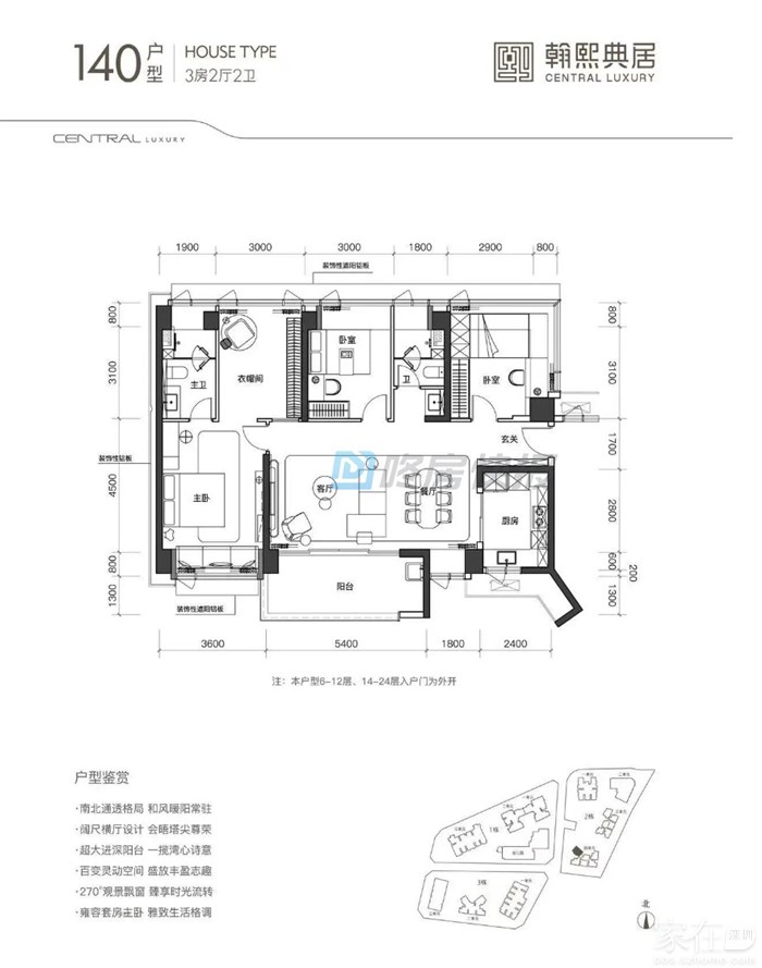
户型面积:建面约105-120-135-140-155平方米的3-4房。
教育配套:第二外国语学校(集团)学府一小和学府中学。
商业配套:距离海岸城、茂业百货、海雅百货等大型商超2公里内。
休闲配套:临近文心公园、科技公园、粤海街道文体中心、深圳湾公园、人才公园等。
优点:生活配套齐全,深圳核心地段,附近大厂云集
缺点:车位不足、小区密度较高缺少舒适感、回迁户、保障房都超过商品房数量,人员较杂。
三家开发商后期管理可能会出现混乱,都是非国企、央企开发商。
![]()
![]()
![]()
![]()
最近群里问的最多的两个新盘一个是南头片区的中海云启源境,一个是科技园片区翰熙典居。
论坛高手多,850万预算的话,大家看好哪个楼盘?
楼盘地图
先来说说翰熙典居(桂庙新村旧改)
地址:南山区粤海街道,白石路与学府路交叉口西北侧。
开发商:3家公司控股(枫叶集团75%、阳光华艺15%、宇泽投资10%)
占地面积:约41660平方米。
总建筑面积:约50.57万平方米。
容积率:约8.62。
绿化率:35%。
产权年限:70年(2023年-2093年)。
总户数:3030户,其中可售商品房714套,保障房791套,回迁房1525套
车位数:2600个,车位占比约1:0.86。
交楼时间:预计2027年。
交楼标准:精装修。
交通配套:距离9号线深大南站200米左右,15号线(在建)也在此交汇
户型面积:建面约105-120-135-140-155平方米的3-4房。
教育配套:第二外国语学校(集团)学府一小和学府中学。
商业配套:距离海岸城、茂业百货、海雅百货等大型商超2公里内。
休闲配套:临近文心公园、科技公园、粤海街道文体中心、深圳湾公园、人才公园等。
优点:生活配套齐全,深圳核心地段,附近大厂云集
缺点:车位不足、小区密度较高缺少舒适感、回迁户、保障房都超过商品房数量,人员较杂。
三家开发商后期管理可能会出现混乱,都是非国企、央企开发商。
本帖于2025-06-04 17:56 被楼主编辑过





粤公网安备 44030402000760号
