家在深圳,真实业主生活圈_房网论坛

0

|

7

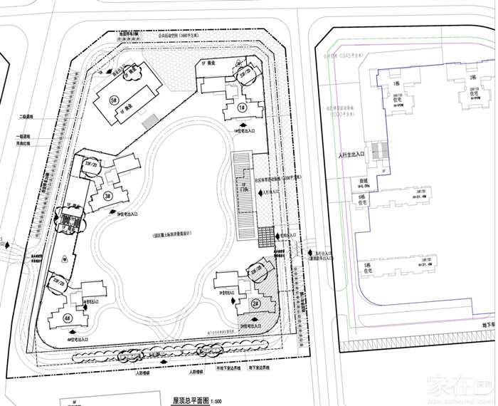
新霖臻邑花园平面图,512套住宅

平地小小乖
平地小小乖

积分:-

注册时间:-

主楼
2024-07-26 10:00:45
标签: 点击标签查看相关内容

新霖臻邑花园平面图,512套住宅

近期要入市了,512套住宅 



分享
0
星世纪
星世纪

积分:-

注册时间:-

沙发
2024-07-26 11:46:53
4万贵了

看下那厮
看下那厮

积分:-

注册时间:-

板凳
2024-07-27 14:23:04

lucky001huang
lucky001huang

积分:-

注册时间:-

地板
2024-07-29 20:49:53
这个不就是新霖荟景(邑)三期么?都停工半年了啦!还入市,入个毛哦
我爱我家GT
我爱我家GT

积分:-

注册时间:-

4楼
2024-08-02 18:51:33 来自Android手机客户端
老猫66
老猫66

积分:-

注册时间:-

5楼
2024-08-03 11:52:44 来自m.szhome.com
这盘卖好几年啦,名字也怪怪的一眼都记不住。
lucky001huang
lucky001huang

积分:-

注册时间:-

6楼
2024-08-05 16:21:52
这里有三期,其中一期叫新霖会邑,已经去年还是千年就入住了,二期叫新霖荟景花园,去年开始卖,今年年底12月份交楼,毛坯房的交楼标准,三期就是楼主发的这个地块,三期是介于一期和二期之间的。这个项目几个月前就已经停工了,因为开发商资金紧张,加上这样的经济形势,懂的都懂了。
引用6楼老猫66的发言:
这盘卖好几年啦,名字也怪怪的一眼都记不住。
  • 插入图片

    支持一次选择9张图片上传(使用Ctrl、Shift选中);

    支持jpg、png、gif,单张图片不超过10M,png不超过1M,gif不超过300K。

    • 继续添加

  • 提到好友

3(16px)

楼主最近发表

相关帖子

    大家都在看

    下载家在深圳APP

    关注家在公众号