家在深圳,真实业主生活圈_房网论坛

0

|

8

小梅沙湾畔家园385套住宅,小梅沙站盘

盐盐好风光
盐盐好风光

积分:-

注册时间:-

主楼
2023-09-11 15:50:40
标签: 点击标签查看相关内容

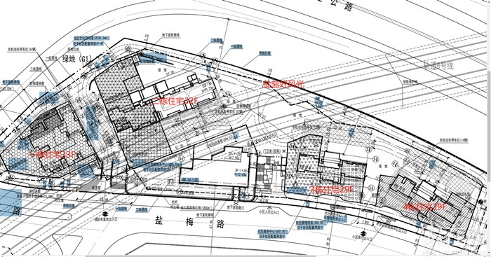
小梅沙湾畔家园385套住宅,小梅沙站盘

工程名称:小梅沙湾畔家园工程

建设单位:深圳市特发小梅沙投资发展有限公司

建设规模:104307.73平方米

建设地址:小梅沙片区城市更新单元03-02地块

合同价格:34820.906291万元

设计单位:深圳市清华苑建筑与规划设计研究有限公司

施工单位:深圳市建安(集团)股份有限公司

监理单位:深圳市特发工程管理有限责任公司

合同开工日期:2023-04-30合同竣工日期:2024-11-17

分享
0
盐盐好风光
盐盐好风光

积分:-

注册时间:-

沙发
2023-09-11 15:52:57
总量742 户(其中保障性住房 357 户),户型套内建筑而积<90m167户


盐盐好风光
盐盐好风光

积分:-

注册时间:-

板凳
2023-09-11 15:56:07

目前看车位有点少啊,总742套,车辆550
盐盐好风光
盐盐好风光

积分:-

注册时间:-

地板
2023-09-11 16:08:40

位置

盐盐好风光
盐盐好风光

积分:-

注册时间:-

4楼
2023-09-11 16:09:29
1-5栋,1-4栋住宅,5栋幼儿园



盐盐好风光
盐盐好风光

积分:-

注册时间:-

5楼
2023-09-11 16:13:39
优点:新的旅游中心,地铁,看山

缺点:车位不足,近高速有些噪音,楼下地铁过会有噪音吗?
轻风拂面gary
轻风拂面gary

积分:-

注册时间:-

6楼
2023-09-12 07:33:00 来自Android手机客户端
哪来的高铁
Haroque
Haroque

积分:-

注册时间:-

7楼
2023-09-12 18:28:08 来自iPhone客户端
近高速吧,哪有高铁?
lookbook
lookbook

积分:-

注册时间:-

8楼
2023-09-12 22:23:06 来自Android手机客户端
牛牛牛
  • 插入图片

    支持一次选择9张图片上传(使用Ctrl、Shift选中);

    支持jpg、png、gif,单张图片不超过10M,png不超过1M,gif不超过300K。

    • 继续添加

  • 提到好友

3(16px)

楼主最近发表

相关帖子

    大家都在看

    下载家在深圳APP

    关注家在公众号