家在深圳,真实业主生活圈_房网论坛

0

|

2

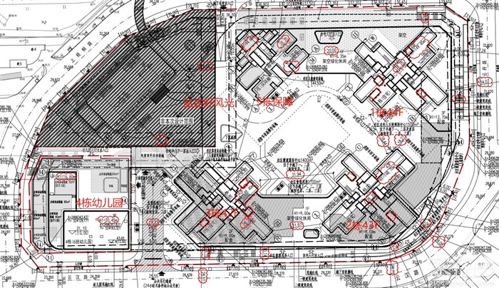
观山海云府780个车位

盐盐好风光
盐盐好风光

积分:-

注册时间:-

主楼
2025-05-21 16:02:47
标签: 点击标签查看相关内容

观山海云府780个车位

目前看平面图有5栋,3栋住宅,一栋保障和一栋幼儿园,780个车位,1:1的话,估计也是约780套住宅


分享
0
盐盐好风光
盐盐好风光

积分:-

注册时间:-

沙发
2025-05-21 16:03:07
780个车位



盐盐好风光
盐盐好风光

积分:-

注册时间:-

板凳
2025-05-21 16:03:16
平面图

  • 插入图片

    支持一次选择9张图片上传(使用Ctrl、Shift选中);

    支持jpg、png、gif,单张图片不超过10M,png不超过1M,gif不超过300K。

    • 继续添加

  • 提到好友

3(16px)

楼主最近发表

相关帖子

    大家都在看

    下载家在深圳APP

    关注家在公众号