家在深圳,真实业主生活圈_房网论坛

0

|

5

前海时代最后一期256套住宅(总还有766套未售)

传信息
传信息

积分:-

注册时间:-

主楼
2024-04-30 09:27:32
标签: 点击标签查看相关内容

前海时代最后一期256套住宅(总还有766套未售)

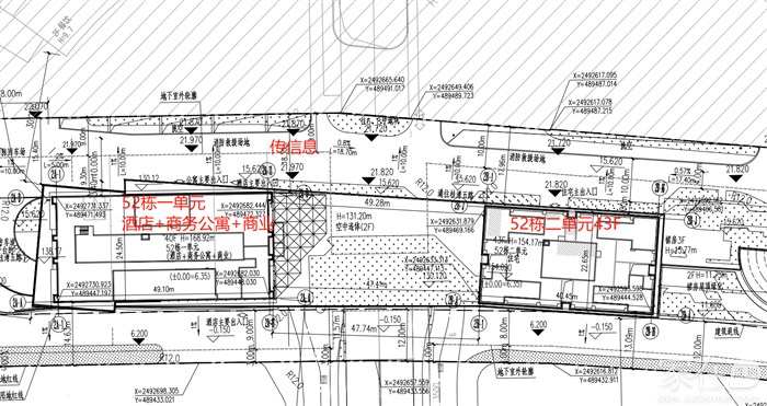
前海时代5-1地块,总占地面积约1.27万㎡,总建筑面积约12.08万㎡,计容建筑面积约9.7万㎡,容积率7.64,绿化率29.1%,共由2栋,其中一栋40层高的酒店与商务公寓和一栋43住宅组成

总规划256户,停车位151个,车位比1:0.58。






分享
0
传信息
传信息

积分:-

注册时间:-

沙发
2024-04-30 09:30:46
前海时代5-1地块
256户住宅



传信息
传信息

积分:-

注册时间:-

板凳
2024-04-30 09:42:02
5-2地块尊府2:共三栋住宅,516套房源,第二批销售344套,剩余172套(其中159套89平,13套189平)53-3单元栋等2026年现楼销售。均价9.9万。





传信息
传信息

积分:-

注册时间:-

地板
2024-04-30 09:42:29
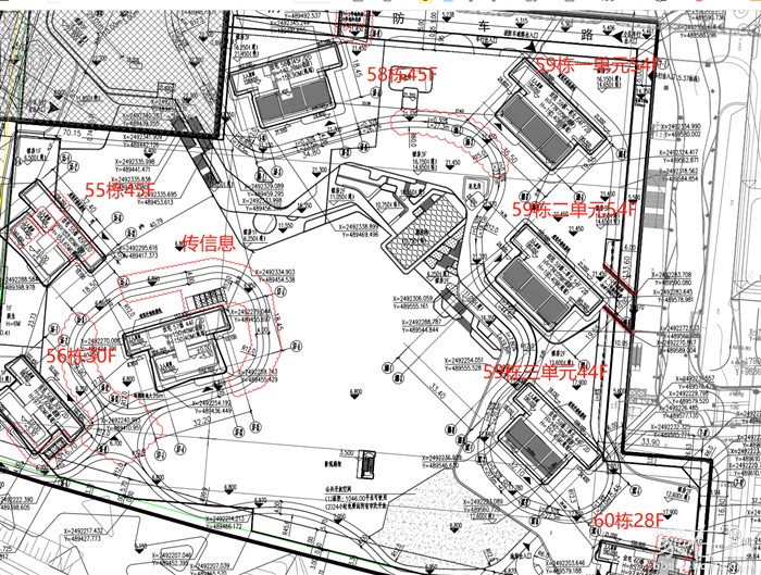
7-2地块,共八栋楼约608套,第一批卖了270套,还有338套,剩余房源在58栋以及59栋的1-3单元,包括约210㎡四房三卫C户型,约240-250㎡四房三卫B户型,还有更大的约280-292㎡4+1房四卫A户型





传信息
传信息

积分:-

注册时间:-

4楼
2024-04-30 09:45:53
总共货量

5-1地块256套

5-2地块172套

7-2地块338套

尊府总还有766套未售,9.9万均价,比之前卖的量还多,还会有奇迹吗?
传信息
传信息

积分:-

注册时间:-

5楼
2024-04-30 09:47:46
该项目位于前海桂湾片区五单元01街坊,宗地号T201-0071。根据《建设用地规划许可证》(深前海许QH-2019-0001号),该宗地总用地面积120108.09㎡,用地性质为二类居住用地、商业用地,建筑容积率≤4.528,建筑覆盖率≤50%,建筑高度≤200米,规定建筑面积543858㎡,主要包括住宅、办公、商业、商务公寓、酒店、45班九年一贯制学校、社区健康服务中心、文化活动室、社区居委会、社区服务中心、社区警务室、邮政所、垃圾收集站、再生资源回收站、公共厕所、环卫工人作息房、公交首末站。机动车泊位数3250辆、自行车泊位数1450辆。


车位最后不知道够不够?
  • 插入图片

    支持一次选择9张图片上传(使用Ctrl、Shift选中);

    支持jpg、png、gif,单张图片不超过10M,png不超过1M,gif不超过300K。

    • 继续添加

  • 提到好友

3(16px)

楼主最近发表

相关帖子

    大家都在看

    下载家在深圳APP

    关注家在公众号