家在深圳,真实业主生活圈_房网论坛

0

|

15

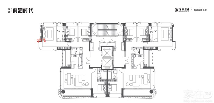
前海时代三期定名为御海府(192-247平户型图)

qh飞
qh飞

积分:-

注册时间:-

主楼
2023-10-30 10:55:43
标签: 点击标签查看相关内容

前海时代三期定名为御海府(192-247平户型图)

看到定名字了,御海府也不知道谁投的?

户型图也看到了,270套户型192-247平,说下个月要开样板了,年底开盘,11万你会出手吗?















分享
0
qh飞
qh飞

积分:-

注册时间:-

沙发
2023-10-30 10:56:50
192平



qh飞
qh飞

积分:-

注册时间:-

板凳
2023-10-30 10:57:38
209平


qh飞
qh飞

积分:-

注册时间:-

地板
2023-10-30 10:58:23
247平



qh飞
qh飞

积分:-

注册时间:-

4楼
2023-10-30 10:58:50
看到不少人说这户型设计的一般,你觉得呢?
千里匆匆
千里匆匆

积分:-

注册时间:-

5楼
2023-10-30 11:24:37
想到富人,住这种辣鸡户型


我就想笑
引用4楼楼主的发言:
看到不少人说这户型设计的一般,你觉得呢?
客家大少
客家大少

积分:-

注册时间:-

6楼
2023-10-30 13:16:28 来自Android手机客户端
又看不到海,应该叫御河府
路人球迷甲
路人球迷甲

积分:-

注册时间:-

7楼
2023-10-31 15:50:16 来自Android手机客户端
取消了。遇害府叫了一天。
nileflood
nileflood

积分:-

注册时间:-

8楼
2023-10-31 17:34:20
火烧心格局
客家大少
客家大少

积分:-

注册时间:-

9楼
2023-10-31 19:26:38 来自Android手机客户端
哈哈,确实
引用路人球迷甲的发言:
取消了。遇害府叫了一天。
老农民回来了
老农民回来了

积分:-

注册时间:-

10楼
2023-10-31 20:58:45
臻TM的户型
在水一方好好好
在水一方好好好

积分:-

注册时间:-

11楼
2023-11-07 21:06:56
确实户型火烧心
引用8楼nileflood的发言:
火烧心格局
客家大少
客家大少

积分:-

注册时间:-

12楼
2023-11-08 13:33:31 来自Android手机客户端
火烧心什么意思
随遇而安76
随遇而安76

积分:-

注册时间:-

13楼
2023-11-08 13:52:05
应该是厨房设在屋子中间的意思吧,说实话,这户型我也不喜欢,喜欢也买不起

引用12楼客家大少的发言:
火烧心什么意思
Ran2469
Ran2469

积分:-

注册时间:-

14楼
2023-11-15 10:36:53 来自iPhone客户端
这都是些什么葩户型啊,设计成方方正正的户型很难吗?
Sunny1234567
Sunny1234567

积分:-

注册时间:-

15楼
2023-11-15 14:30:36 来自Android手机客户端
两代人住的吧!
  • 插入图片

    支持一次选择9张图片上传(使用Ctrl、Shift选中);

    支持jpg、png、gif,单张图片不超过10M,png不超过1M,gif不超过300K。

    • 继续添加

  • 提到好友

3(16px)

楼主最近发表

相关帖子

    大家都在看

    下载家在深圳APP

    关注家在公众号