家在深圳,真实业主生活圈_房网论坛

0

|

23

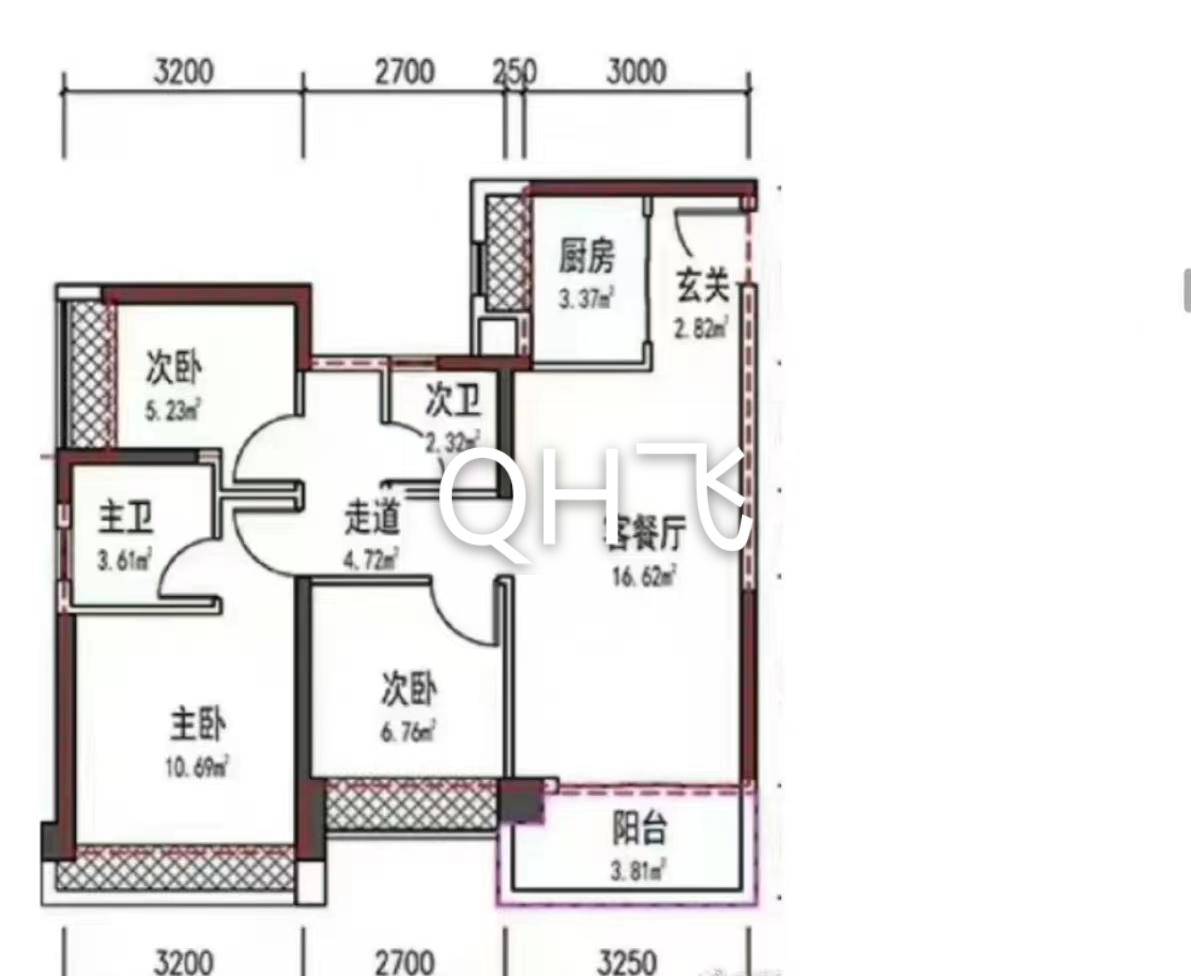
前海时代三期89平户型图?

qh飞
qh飞

积分:-

注册时间:-

主楼
2023-02-28 16:51:49
标签: 点击标签查看相关内容

前海时代三期89平户型图?

目前看到小面积89平的户型图,这OK不?


分享
0
qh飞
qh飞

积分:-

注册时间:-

沙发
2023-02-28 16:52:22
目前看使用率不怎么高的样子呢!

3房89平户型,套内59.86,使用率才67%吗?
二十余年来
二十余年来

积分:-

注册时间:-

板凳
2023-02-28 20:45:00
这房间也 太小了吧

客家大少
客家大少

积分:-

注册时间:-

地板
2023-02-28 20:48:14 来自Android手机客户端
前三还有89的吗?以为120平起
Arthurdonger
Arthurdonger

积分:-

注册时间:-

4楼
2023-03-01 10:20:26 来自iPhone客户端
这超级低
Bluefakshark
Bluefakshark

积分:-

注册时间:-

5楼
2023-03-01 11:06:18 来自Android手机客户端
这个,非常之不OK。霍比特人都住不下,太TM小了
装修分期666
装修分期666

积分:-

注册时间:-

6楼
2023-03-01 11:15:41 来自Android手机客户端
装修分期666
装修分期666

积分:-

注册时间:-

7楼
2023-03-01 11:16:12 来自Android手机客户端
使用率这么低吗
我自己哪里才好
我自己哪里才好

积分:-

注册时间:-

8楼
2023-03-01 11:26:43 来自Android手机客户端
套内也太小了吧
张益民
张益民

积分:-

注册时间:-

9楼
2023-03-01 11:43:29 来自iPhone客户端
侏儒看了表示very good
伊欧利亚
伊欧利亚

积分:-

注册时间:-

10楼
2023-03-01 20:53:02
现在的新房客厅超级小,摆套贵妃椅沙发都跟电视柜连在一起了,零几年盖的二手房80平三房客厅都有25平以上了

梦中的木棉花
梦中的木棉花

积分:-

注册时间:-

11楼
2023-03-01 22:59:42 来自iPhone客户端
浪费了这么好的位置
魁哥_Christian
魁哥_Christian

积分:-

注册时间:-

12楼
2023-03-02 23:04:44 来自iPhone客户端
money0219
money0219

积分:-

注册时间:-

13楼
2023-03-03 08:51:51
你这个图上尺寸应该是包括了墙体的尺寸,实际可实用的面积要更小
引用1楼楼主的发言:
目前看使用率不怎么高的样子呢!

3房89平户型,套内59.86,使用率才67%吗?
准备投资第二套
准备投资第二套

积分:-

注册时间:-

14楼
2023-03-03 08:56:16
阳台只能算一半,更低
引用1楼楼主的发言:
目前看使用率不怎么高的样子呢!

3房89平户型,套内59.86,使用率才67%吗?
咩都无
咩都无

积分:-

注册时间:-

15楼
2023-03-03 12:14:42 来自Android手机客户端
宝中不香吗,前海时代1,2,3全是冤种户型
风吹不走的云
风吹不走的云

积分:-

注册时间:-

16楼
2023-03-03 14:28:07
笑死了

这户型图让我想到了某音上面那些用微型厨具做饭的人
引用5楼Bluefakshark的发言:
这个,非常之不OK。霍比特人都住不下,太TM小了
Ran2469
Ran2469

积分:-

注册时间:-

17楼
2023-03-03 15:51:16 来自iPhone客户端
除去墙体面积,没一个房能放下一张一米五的床
路人球迷甲
路人球迷甲

积分:-

注册时间:-

18楼
2023-03-06 15:58:23 来自Android手机客户端
给你弄两个坑,海德园89一个坑,还要啥自行车。
龙妈加虎爸
龙妈加虎爸

积分:-

注册时间:-

19楼
2023-03-06 17:07:18 来自Android手机客户端
到时每块墙能削薄的就削
超时空兵
超时空兵

积分:-

注册时间:-

20楼
2023-03-09 12:39:18
看着可以,其实超级小,使用率不到70%吧
  • 插入图片

    支持一次选择9张图片上传(使用Ctrl、Shift选中);

    支持jpg、png、gif,单张图片不超过10M,png不超过1M,gif不超过300K。

    • 继续添加

  • 提到好友

3(16px)

楼主最近发表

相关帖子

    大家都在看

    下载家在深圳APP

    关注家在公众号