家在深圳,真实业主生活圈_房网论坛

0

|

3

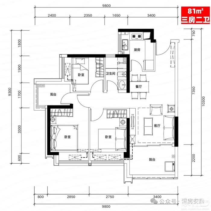
光明神户型它来了,实用率超过100%,81能做四房

天下小卫士
天下小卫士

积分:-

注册时间:-

主楼
2025-08-29 20:56:54 来自iPhone客户端
标签: 点击标签查看相关内容

光明神户型它来了,实用率超过100%,81能做四房

深圳光明不用睡飘窗的房子!81m²做 4 房仅 280 万起!7 号开盘!






















分享
0
天下小卫士
天下小卫士

积分:-

注册时间:-

沙发
2025-08-29 20:59:43 来自iPhone客户端
在建的13号地铁线“月亮路站”约400米,3站到光明城站,5站到石岩上屋站,计划在2025年通车运营。





桃白白
桃白白

积分:-

注册时间:-

板凳
2025-08-30 16:55:55 来自iPhone客户端
惊不惊喜意不意外
惊不惊喜意不意外

积分:-

注册时间:-

地板
2025-09-02 22:43:58 来自iPhone客户端
81平三房还有吗?都有什么楼层,总价多少钱呢?
  • 插入图片

    支持一次选择9张图片上传(使用Ctrl、Shift选中);

    支持jpg、png、gif,单张图片不超过10M,png不超过1M,gif不超过300K。

    • 继续添加

  • 提到好友

3(16px)

楼主最近发表

相关帖子

    大家都在看

    下载家在深圳APP

    关注家在公众号