家在深圳,真实业主生活圈_房网论坛

0

|

38

令人着迷的轻法式,慵懒松弛的家

gexiaozhou
gexiaozhou

积分:-

注册时间:-

主楼
2025-06-03 08:58:15 来自Android手机客户端
标签: 点击标签查看相关内容

令人着迷的轻法式,慵懒松弛的家

从去年10月到今年五月,完成轻法式大平层装修。母亲节入伙。
120平带30平小院,3+1房两卫改一室两厅一卫。
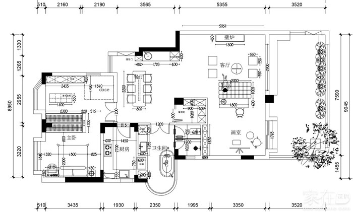
原始户型图及装修平面图。



分享
0
gexiaozhou
gexiaozhou

积分:-

注册时间:-

沙发
2025-06-03 09:08:36 来自Android手机客户端
先上毕业照

















gexiaozhou
gexiaozhou

积分:-

注册时间:-

板凳
2025-06-03 09:10:36 来自Android手机客户端
再来一组

















gexiaozhou
gexiaozhou

积分:-

注册时间:-

地板
2025-06-03 09:17:07 来自Android手机客户端
户外庭院

















ddyear
ddyear

积分:-

注册时间:-

4楼
2025-06-03 09:34:32

最爱我的儿子
最爱我的儿子

积分:-

注册时间:-

5楼
2025-06-03 09:40:18
深圳的一楼,那个白地毯,非累死不可,
gexiaozhou
gexiaozhou

积分:-

注册时间:-

6楼
2025-06-03 10:06:28 来自Android手机客户端
哈,小姑娘喜欢
引用最爱我的儿子的发言:
深圳的一楼,那个白地毯,非累死不可,
随遇而安76
随遇而安76

积分:-

注册时间:-

7楼
2025-06-03 10:25:19
漂亮,要是不用自己搞卫生,简直就是梦中的家

爱在西元前1972
爱在西元前1972

积分:-

注册时间:-

8楼
2025-06-03 10:28:55
我就特别喜欢这个30平米的小院,可以随意种花种草,养小猫小狗了
加加家家
加加家家

积分:-

注册时间:-

9楼
2025-06-03 10:35:01
石头可以搞定它
引用5楼最爱我的儿子的发言:
深圳的一楼,那个白地毯,非累死不可,
无言不由衷
无言不由衷

积分:-

注册时间:-

10楼
2025-06-03 10:42:20 来自m.szhome.com
哇,这是我的梦中情房!大大的活动空间,只要一室一卫(打消他人留宿的念头),有庭院。
大多数的人会想法设法多弄一个房间,即使家里没那么多人,也要多弄一个,以备不时之需,却忘了买房的初衷是为了增加一家人的幸福感和舒适度。楼主做到了大多数人都做不到的事
桃白白
桃白白

积分:-

注册时间:-

11楼
2025-06-03 11:51:29 来自iPhone客户端
就是维持起来花精力,所以需要有工人每天打扫,不停的这里擦擦那里抹抹的
最爱我的儿子
最爱我的儿子

积分:-

注册时间:-

12楼
2025-06-03 12:59:17
.吾儿小时候,为了让孩子能在地上爬着玩,我过两天就用食用碱拖地,恨不得把地板消消毒,想干净,很不容易,

gexiaozhou
gexiaozhou

积分:-

注册时间:-

13楼
2025-06-03 15:50:37 来自Android手机客户端
原始户型图放错了

gexiaozhou
gexiaozhou

积分:-

注册时间:-

14楼
2025-06-03 15:53:31 来自Android手机客户端
房屋原有的样子

















欣欣向荣QQ
欣欣向荣QQ

积分:-

注册时间:-

15楼
2025-06-03 16:25:32

宁静致远2000
宁静致远2000

积分:-

注册时间:-

16楼
2025-06-10 12:41:06
学习
gexiaozhou
gexiaozhou

积分:-

注册时间:-

17楼
2025-06-10 14:12:18 来自Android手机客户端
引用宁静致远2000的发言:
学习
成立88
成立88

积分:-

注册时间:-

18楼
2025-06-10 16:37:27
豪华大宅,爽死了!!
穿过思念的箭
穿过思念的箭

积分:-

注册时间:-

19楼
2025-06-11 11:32:25
色调很喜欢
感觉有样板房的味道
做为过来人,觉得家里那么多的小装饰以后都会成为鸡肋

Finn_fw
Finn_fw

积分:-

注册时间:-

20楼
2025-06-20 12:52:29 来自Android手机客户端
请教楼主,全部搞完预算需要多少?
  • 插入图片

    支持一次选择9张图片上传(使用Ctrl、Shift选中);

    支持jpg、png、gif,单张图片不超过10M,png不超过1M,gif不超过300K。

    • 继续添加

  • 提到好友

3(16px)

楼主最近发表

相关帖子

    大家都在看

    下载家在深圳APP

    关注家在公众号