家在深圳,真实业主生活圈_房网论坛

0

|

12

中海深湾胤府190-330平户型图?

后海迷局
后海迷局

积分:-

注册时间:-

主楼
2024-01-10 11:02:21
标签: 点击标签查看相关内容

中海深湾胤府190-330平户型图?

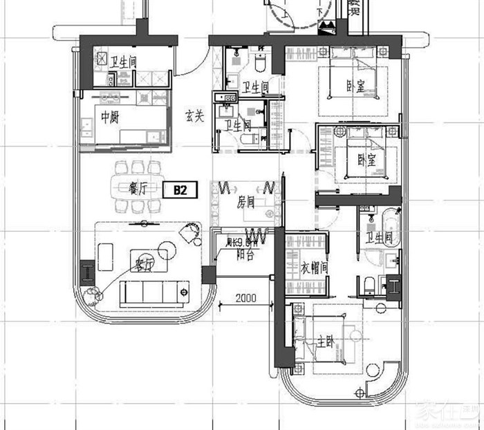
目前看到传说190-330平户型图,看内阳台是一种什么体验?

190㎡ 3房3厅2卫,128套;

分享
0
传信息
传信息

积分:-

注册时间:-

沙发
2024-01-10 11:06:14
少了点意思,看这阳台,以后会流行?
后海迷局
后海迷局

积分:-

注册时间:-

板凳
2024-01-10 11:07:08
250㎡ 4房3厅2卫,237套


后海迷局
后海迷局

积分:-

注册时间:-

地板
2024-01-10 11:08:07
330㎡ 4房3厅4卫,142套;

后海迷局
后海迷局

积分:-

注册时间:-

4楼
2024-01-10 11:08:47
500㎡的顶复为4+1房3厅4卫,有5套,还没看到户型
幸福美丽猪
幸福美丽猪

积分:-

注册时间:-

5楼
2024-01-10 16:39:42 来自iPhone客户端
只有一个阳台还这么小吗?
杨过QoQ
杨过QoQ

积分:-

注册时间:-

6楼
2024-01-11 00:31:28 来自Android手机客户端
感觉户型不是太好,哎呀
凶猛的大海水
凶猛的大海水

积分:-

注册时间:-

7楼
2024-01-11 11:06:49
都是大户型啊
aazz26
aazz26

积分:-

注册时间:-

8楼
2024-01-11 11:16:23
感觉不可能是深湾胤府的户型图,定位是豪宅,190和250的大门太小,都是单扇的,190的一进门3卫生间一厨房环绕,花几千万买房的不介意吗?

LPXTONY
LPXTONY

积分:-

注册时间:-

9楼
2024-01-11 18:41:38 来自Android手机客户端
看设计图明显就是
引用aazz26的发言:
感觉不可能是深湾胤府的户型图,定位是豪宅,190和250的大门太小,都是单扇的,190的一进门3卫生间一厨房环绕,花几千万买房的不介意吗?

LPXTONY
LPXTONY

积分:-

注册时间:-

10楼
2024-01-11 18:42:07 来自Android手机客户端
居然还是暗卫,绝了
疯狂的石头2020
疯狂的石头2020

积分:-

注册时间:-

11楼
2024-01-15 11:34:23 来自iPhone客户端
设计师都是吃屎的
深圳大路
深圳大路

积分:-

注册时间:-

12楼
2024-05-21 17:14:07
190平的户型差成这样?

  • 插入图片

    支持一次选择9张图片上传(使用Ctrl、Shift选中);

    支持jpg、png、gif,单张图片不超过10M,png不超过1M,gif不超过300K。

    • 继续添加

  • 提到好友

3(16px)

楼主最近发表

相关帖子

    大家都在看

    下载家在深圳APP

    关注家在公众号