家在深圳,真实业主生活圈_房网论坛

0

|

7

东山海滨名苑一期平面图许可证

鹏飞大
鹏飞大

积分:-

注册时间:-

主楼
2023-11-15 14:58:10
标签: 点击标签查看相关内容

东山海滨名苑一期平面图许可证

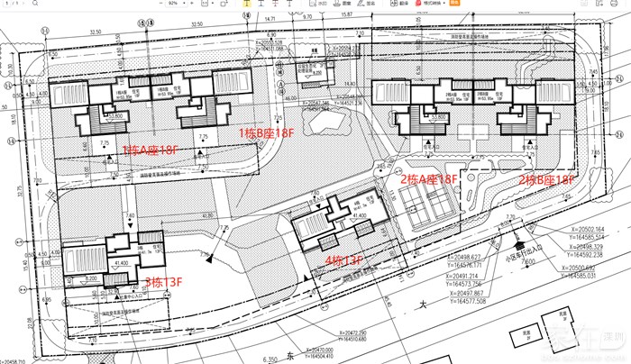
圳市大鹏新区南澳办事处东山社区居民委员会开发建设的东山海滨名苑一期项目位于大鹏新区南澳办事处东大路北侧G17301-8325号宗地,用地面积15854.03平方米,该项目于2023年11月14日重新取得《深圳市建设工程规划许可证》[建字第4403072023GG0101386(改1)号]。该项目允许建设计规定建筑面积36330平方米,其中住宅35280平方米,物管用房100平方米,社区健康服务中心800平方米,垃圾生态化处理设施150平方米。

分享
0
鹏飞大
鹏飞大

积分:-

注册时间:-

沙发
2023-11-15 14:58:38
许可证


鹏飞大
鹏飞大

积分:-

注册时间:-

板凳
2023-11-15 14:58:51
平面图

鹏飞大
鹏飞大

积分:-

注册时间:-

地板
2023-11-15 15:01:15
总套数,328套,1栋AB座136套,2栋AB座136套,3栋32套,4栋24套


鹏飞大
鹏飞大

积分:-

注册时间:-

4楼
2023-11-15 15:02:42
主要景观不错,主要是海景与游艇出海
雪圭海
雪圭海

积分:-

注册时间:-

5楼
2023-11-15 17:49:32 来自Android手机客户端
大鹏街道感觉房地产爆发
AJ678
AJ678

积分:-

注册时间:-

6楼
2023-11-16 00:26:50 来自Android手机客户端
我虽然也是当地人,但实话实说,我有钱我也不投资大鹏。几十年了,发展的一拓翔
引用雪圭海的发言:
大鹏街道感觉房地产爆发
pu7ok
pu7ok

积分:-

注册时间:-

7楼
2023-11-16 07:20:47 来自iPhone客户端
南澳确实几十年如一日
  • 插入图片

    支持一次选择9张图片上传(使用Ctrl、Shift选中);

    支持jpg、png、gif,单张图片不超过10M,png不超过1M,gif不超过300K。

    • 继续添加

  • 提到好友

3(16px)

楼主最近发表

相关帖子

    大家都在看

    下载家在深圳APP

    关注家在公众号