标签:
点击标签查看相关内容
总价2486万起,后海招商玺取证(仅42套)
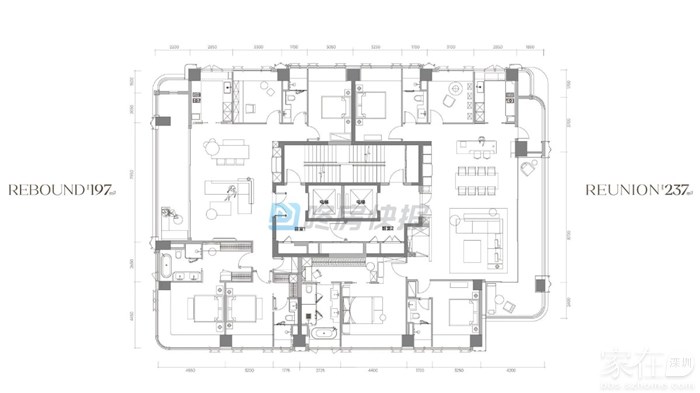
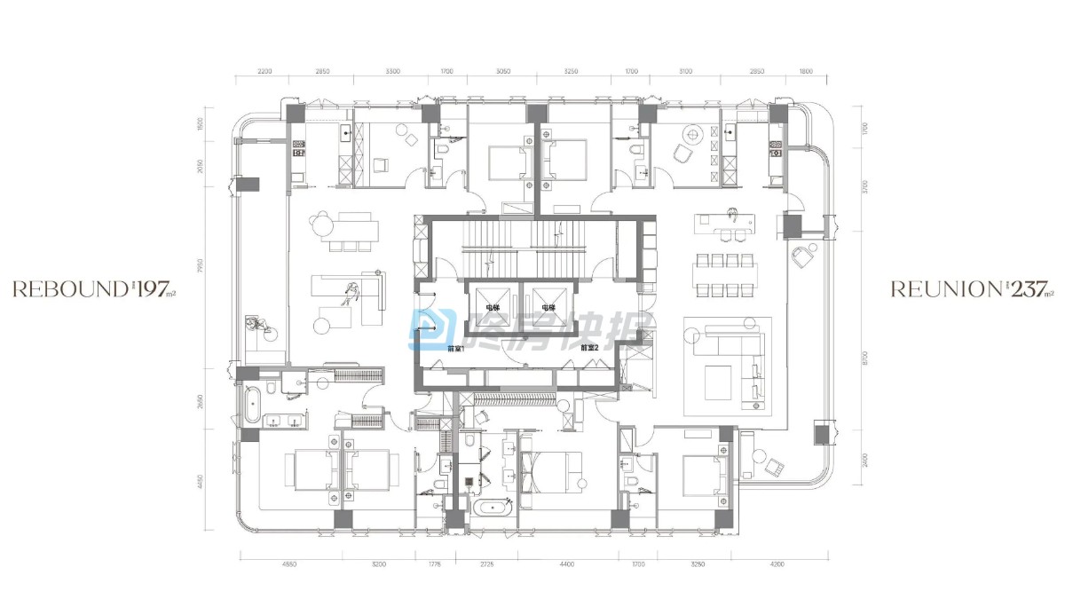
今天后海招商玺也拿证了,首推1栋小高层住宅,共42套197-237㎡四房大平层。
备案单价12.7-15.9万/㎡,总价2486-3750万。另有两套432㎡大平层,总价6842-6867万。
折扣待定!实体展厅跟样板房已开放,参观需验资1000万,已开始冻资(100万),月底开盘。
豪宅区的麻将桌不够坐了
土豪也会有选择困难症吗?
![]()
备案价格表:
![]()
户型图
![]()
![]()
![]()
项目位于深圳市南山区招商街道工业七路与后海大道交汇处
小区布:3 栋 48F 超高层 + 1 栋 25F 高层
主力户型 :186/197/235/247 ㎡ 四-五房,2T2/2T3,得房率 72-75%,高区 34F 以上可看深圳湾海景
价格预计:12-13万/平米
优点:
1、距离地铁2号、8号线海月站、湾厦站500多米
2、周边500米范围内育才二小、二中、育才三中、育才四小
3、周边500米范围内四海公园、蛇口文体公园、蛇口湾厦公园等
4、距离宝能all city购物中心、恒裕香悦里600米
缺点:
1、地块小、容积率偏高(占地1.5 万㎡ ,容积率6.5,48F 超高层 )
2、低楼层存在被周边楼盘遮挡景观及对视
3、周边成熟但城市界面略旧,北侧工业七路早晚高峰易堵。
![]()
![]()
备案单价12.7-15.9万/㎡,总价2486-3750万。另有两套432㎡大平层,总价6842-6867万。
折扣待定!实体展厅跟样板房已开放,参观需验资1000万,已开始冻资(100万),月底开盘。
豪宅区的麻将桌不够坐了
土豪也会有选择困难症吗?
备案价格表:
户型图
项目位于深圳市南山区招商街道工业七路与后海大道交汇处
小区布:3 栋 48F 超高层 + 1 栋 25F 高层
主力户型 :186/197/235/247 ㎡ 四-五房,2T2/2T3,得房率 72-75%,高区 34F 以上可看深圳湾海景
价格预计:12-13万/平米
优点:
1、距离地铁2号、8号线海月站、湾厦站500多米
2、周边500米范围内育才二小、二中、育才三中、育才四小
3、周边500米范围内四海公园、蛇口文体公园、蛇口湾厦公园等
4、距离宝能all city购物中心、恒裕香悦里600米
缺点:
1、地块小、容积率偏高(占地1.5 万㎡ ,容积率6.5,48F 超高层 )
2、低楼层存在被周边楼盘遮挡景观及对视
3、周边成熟但城市界面略旧,北侧工业七路早晚高峰易堵。





粤公网安备 44030402000760号
