家在深圳,真实业主生活圈_房网论坛

0

|

3

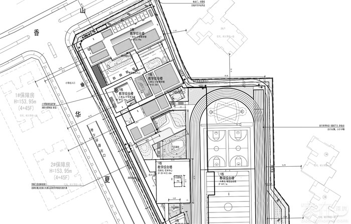
绿景沙河学校平面图,保障房193.3米高

NN湾
NN湾

积分:-

注册时间:-

主楼
2025-06-18 15:49:41
标签: 点击标签查看相关内容

绿景沙河学校平面图,保障房193.3米高

绿景沙河学校项目位于南山区沙河街道。我局于2025年5月核发该项目的《深圳市建设工程规划许可证》。






分享
0
NN湾
NN湾

积分:-

注册时间:-

沙发
2025-06-18 15:50:39
平面图



NN湾
NN湾

积分:-

注册时间:-

板凳
2025-06-18 15:54:26
保障153-193.9米高

桃白白
桃白白

积分:-

注册时间:-

地板
2025-06-19 12:22:10 来自iPhone客户端
  • 插入图片

    支持一次选择9张图片上传(使用Ctrl、Shift选中);

    支持jpg、png、gif,单张图片不超过10M,png不超过1M,gif不超过300K。

    • 继续添加

  • 提到好友

3(16px)

楼主最近发表

相关帖子

    大家都在看

    下载家在深圳APP

    关注家在公众号