家在深圳,真实业主生活圈_房网论坛

0

|

5

中海云启源境家园298套住宅

传信息
传信息

积分:-

注册时间:-

主楼
2024-12-12 10:19:49
标签: 点击标签查看相关内容

中海云启源境家园298套住宅

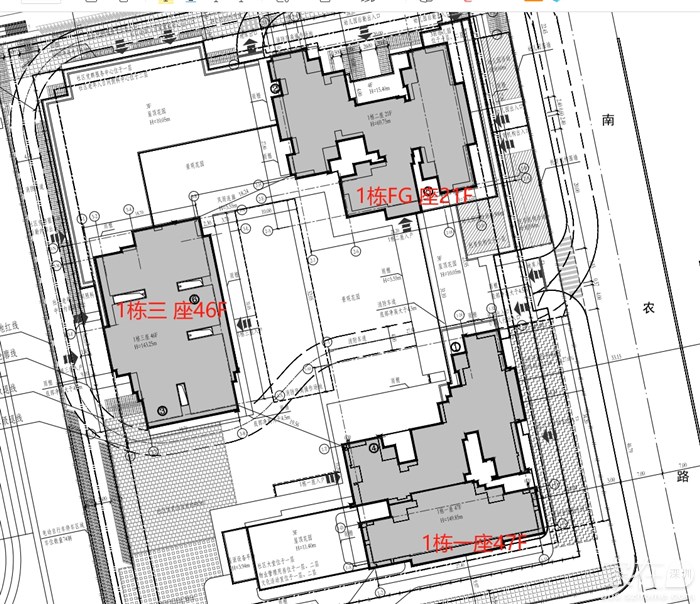
润亚奕拓城市更新案名为:中海·云启源境家园


项目距离12号线同乐南站直线约300米,共规划3栋,2栋41-46层商品房住宅、1栋47层保障房,容积率6.4。

总有708套,商品房298套,保障410套。


分享
0
传信息
传信息

积分:-

注册时间:-

沙发
2024-12-12 10:23:43
许可证

传信息
传信息

积分:-

注册时间:-

板凳
2024-12-12 10:29:36

总三栋21-47层


传信息
传信息

积分:-

注册时间:-

地板
2024-12-12 10:30:49
效果图

传信息
传信息

积分:-

注册时间:-

4楼
2024-12-12 10:31:52
优点:书包家门口,购物方便旁边就是农批

缺点:楼盘有点小,保障有点多,车位不足
vISvLee
vISvLee

积分:-

注册时间:-

5楼
2024-12-12 12:08:54
超高层 PASS
  • 插入图片

    支持一次选择9张图片上传(使用Ctrl、Shift选中);

    支持jpg、png、gif,单张图片不超过10M,png不超过1M,gif不超过300K。

    • 继续添加

  • 提到好友

3(16px)

楼主最近发表

相关帖子

    大家都在看

    下载家在深圳APP

    关注家在公众号