家在深圳,真实业主生活圈_房网论坛

0

|

6

前海小盘~~湾涛世纪公馆196套住宅

传信息
传信息

积分:-

注册时间:-

主楼
2024-05-30 10:26:49
标签: 点击标签查看相关内容

前海小盘~~湾涛世纪公馆196套住宅

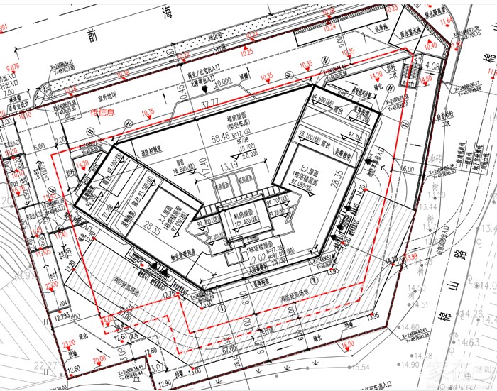
湾涛世纪公馆规划建设用地面积4067.83㎡,总建面约3.4万㎡,计容建面约2.3万㎡。其中,住宅约1.34万㎡,商业约3500㎡。
 
主要由一栋地面27层,地下3层停车库,总高约百米的住宅楼组成,规划196户。

容积率5.7,车位地上/下69/87辆


分享
0
传信息
传信息

积分:-

注册时间:-

沙发
2024-05-30 10:27:50
平面图


传信息
传信息

积分:-

注册时间:-

板凳
2024-05-30 10:28:14
层高27/3


传信息
传信息

积分:-

注册时间:-

地板
2024-05-30 10:28:22
效果图

传信息
传信息

积分:-

注册时间:-

4楼
2024-05-30 10:28:59
近期进度


传信息
传信息

积分:-

注册时间:-

5楼
2024-05-30 10:31:29
感觉还没那么快想入市,小面积产比较多


传信息
传信息

积分:-

注册时间:-

6楼
2024-05-30 10:33:40
优点:出行方便,小面积容积上车总价便宜

缺点:项目比较小,车位不足,近路有噪音


  • 插入图片

    支持一次选择9张图片上传(使用Ctrl、Shift选中);

    支持jpg、png、gif,单张图片不超过10M,png不超过1M,gif不超过300K。

    • 继续添加

  • 提到好友

3(16px)

楼主最近发表

相关帖子

    大家都在看

    下载家在深圳APP

    关注家在公众号