家在深圳,真实业主生活圈_房网论坛

0

|

10

深大后花园桂庙楼盘出地面(翰熙典居首推328套)

航拍未来
航拍未来

积分:-

注册时间:-

主楼
2024-04-01 10:18:47
标签: 点击标签查看相关内容

深大后花园桂庙楼盘出地面(翰熙典居首推328套)

桂庙新村城市更新单元位于南山区粤海街道白石路与学府路交叉口西北侧,东临白石路,西近南海大道,南临学府路,北面与深圳大学毗邻。


项目总用地面积41660平方米,总建筑面积369100平方米,其中住宅249950㎡(含人才住房和保障性住房32500㎡),商业、办公及旅馆业建筑106530㎡(含商业文化设施不低于5330㎡)。


项目总投资83.56亿元,目前看已在出地面,看样子三季度就要出售了,这里9字头?


分享
0
航拍未来
航拍未来

积分:-

注册时间:-

沙发
2024-04-01 10:21:00
"翰熙典居"原为桂庙新村旧改,改建后将成为融合住宅、商业、办公及酒店的大型综合体,预计提供近25万㎡住宅面积,含保障房供应。

航拍未来
航拍未来

积分:-

注册时间:-

板凳
2024-04-01 10:23:33
桂庙新村因其紧邻深圳大学,被誉为深大学子的“第二校园”和美食天堂,以其清新的城中村特色闻名,作为深圳历史悠久的城中村之一,见证了无数学子的成长历程和城市变迁,正如大冲村、白石洲一样,将深深镌刻在一代人的集体记忆中。

航拍未来
航拍未来

积分:-

注册时间:-

地板
2024-04-01 10:25:45
首批推328套
航拍未来
航拍未来

积分:-

注册时间:-

4楼
2024-04-01 10:30:15
总数872套,可售714套

可售714套
01地块247套
02地块328套
03地块139套



航拍未来
航拍未来

积分:-

注册时间:-

5楼
2024-04-01 10:34:44
各注:根据《建设用地规划许可证》要家,更新单元内01-01地块、01-02地块、01-03地块共配建停车位2600辆,不同地块之间可统筹利用,共享停车位及车辆出入口等设端。

现设计中01-01地块。01-02块01-03地的停车位数量分别为834辆747新1019辆,总数为2600辆浦足总停车位标要求。

其中01-02地块的充电车位为374新,占比为该块的50%其余车位均预窗了充电桩车位建设安装条件。

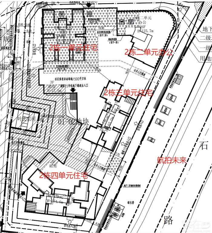
叶氏宗祠

首推平面图

航拍未来
航拍未来

积分:-

注册时间:-

6楼
2024-04-01 10:36:46
近白石路,2栋一三四单元住宅,328套,价格参考10万

位于南山中心区的正东名苑获批现售许可证,并在住建局官网公示,本次可售房源172套,位于项目的A座1、2单元,B座。
本次推售78-102㎡平层单元63套,129-143㎡复式单位109套,共计172套准现房,单价区间约9.5-11万/㎡,备案均价10万/㎡。

航拍未来
航拍未来

积分:-

注册时间:-

7楼
2024-04-01 11:07:58
9这样,55层



引用7楼huaze555的发言:
9.12的容积率,人才!!!
航拍未来
航拍未来

积分:-

注册时间:-

8楼
2024-04-01 11:10:54
01地块247套可售

有1038套,可售247套,保障房612套,约179套回迁

859户(保障房612套)


航拍未来
航拍未来

积分:-

注册时间:-

9楼
2024-04-01 11:13:13
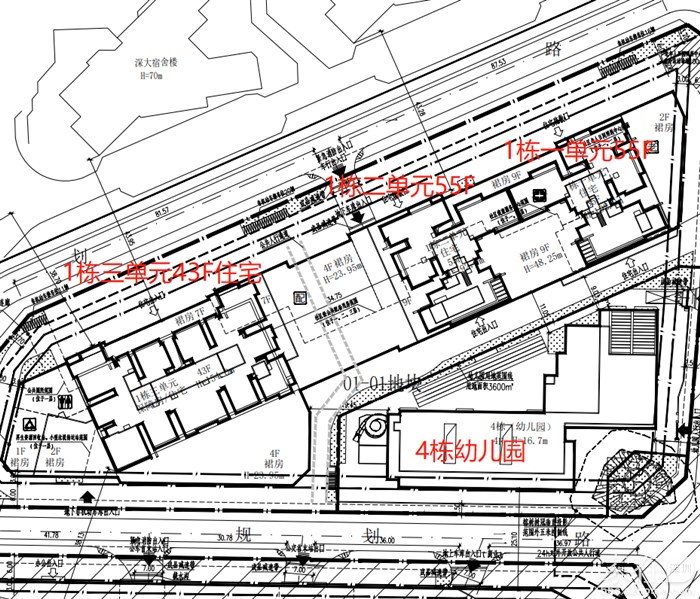
01-01地块平面图


航拍未来
航拍未来

积分:-

注册时间:-

10楼
2024-04-01 11:17:50
03地块可售139套

1120套,981套回迁,可售139套





  • 插入图片

    支持一次选择9张图片上传(使用Ctrl、Shift选中);

    支持jpg、png、gif,单张图片不超过10M,png不超过1M,gif不超过300K。

    • 继续添加

  • 提到好友

3(16px)

楼主最近发表

相关帖子

    大家都在看

    下载家在深圳APP

    关注家在公众号