家在深圳,真实业主生活圈_房网论坛

0

|

72

绿景白石洲璟庭74层244.4米高

小洲洲
小洲洲

积分:-

注册时间:-

主楼
2023-08-15 10:35:17
标签: 点击标签查看相关内容

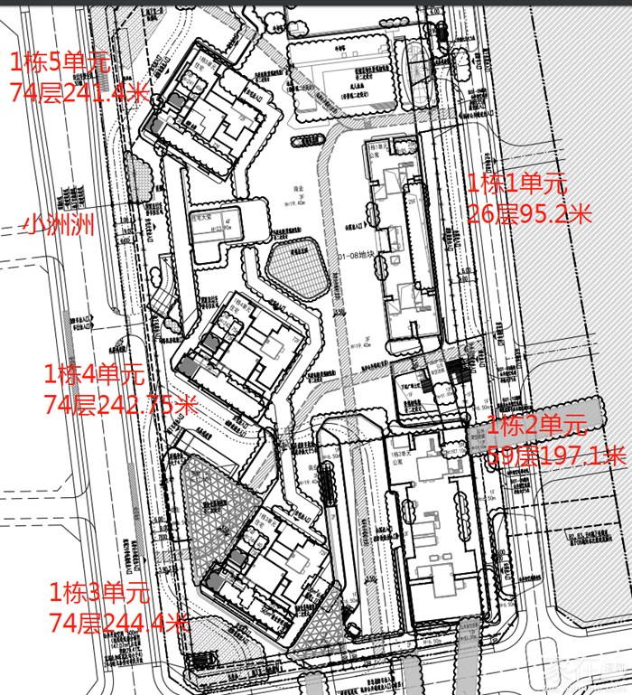
绿景白石洲璟庭74层244.4米高

现将绿景白石洲璟庭项目的《建设工程规划许可证》及总平面图予以公告

绿景白石洲璟庭74层244.4米高,住宅1257套,公寓1489套,车位1983个


分享
0
小洲洲
小洲洲

积分:-

注册时间:-

沙发
2023-08-15 10:35:43
公布

小洲洲
小洲洲

积分:-

注册时间:-

板凳
2023-08-15 10:37:01
商业3.8万平,容积率11.1


surechen
surechen

积分:-

注册时间:-

地板
2023-08-15 10:37:15 来自m.szhome.com
车位比不足的豪宅,244米分高低区的豪宅,富人喜不喜欢不知道,反正普通人肯定不喜欢
房事我知道
房事我知道

积分:-

注册时间:-

4楼
2023-08-15 10:41:54 来自Android手机客户端
这是旧改的吗?
surechen
surechen

积分:-

注册时间:-

5楼
2023-08-15 10:44:52 来自m.szhome.com
必须的,听说景观好的都给了回迁房
引用4楼房事我知道的发言:
这是旧改的吗?
小洲洲
小洲洲

积分:-

注册时间:-

6楼
2023-08-15 10:45:02
平面图

住宅:72-74层,1257套,分高低区,低区5-48层4梯7户,48-74层高区3梯6户(相当7梯),使用约70%

公寓:25-59层,1489套

房事我知道
房事我知道

积分:-

注册时间:-

7楼
2023-08-15 10:48:29 来自Android手机客户端
这么好,我同学买了260平。
引用surechen的发言:
必须的,听说景观好的都给了回迁房
引用4楼房事我知道的发言:
这是旧改的吗?
小洲洲
小洲洲

积分:-

注册时间:-

8楼
2023-08-15 10:53:18
1257套住宅,推售建面约110-118-125-187平3-4房户型,公寓1489套,物业管理费:8.8元/㎡/月,交房25年底,说一期二期要一起交房,价格?


surechen
surechen

积分:-

注册时间:-

9楼
2023-08-15 10:54:51 来自m.szhome.com
巨富,厉害
引用7楼房事我知道的发言:
这么好,我同学买了260平。
引用surechen的发言:
必须的,听说景观好的都给了回迁房
引用4楼房事我知道的发言:
这是旧改的吗?
房事我知道
房事我知道

积分:-

注册时间:-

10楼
2023-08-15 11:11:54 来自Android手机客户端
买的回迁房。原来好像是3万多还是4万买的。持有到现在不知道亏没亏。
引用surechen的发言:
巨富,厉害
引用7楼房事我知道的发言:
这么好,我同学买了260平。
引用surechen的发言:
必须的,听说景观好的都给了回迁房
引用4楼房事我知道的发言:
这是旧改的吗?
小洲洲
小洲洲

积分:-

注册时间:-

11楼
2023-08-15 11:14:45
你应该问买到11万的,现在心情怎么样了
引用10楼房事我知道的发言:
买的回迁房。原来好像是3万多还是4万买的。持有到现在不知道亏没亏。
引用surechen的发言:
巨富,厉害
引用7楼房事我知道的发言:
这么好,我同学买了260平。
引用surechen的发言:
必须的,听说景观好的都给了回迁房
引用4楼房事我知道的发言:
这是旧改的吗?
房事我知道
房事我知道

积分:-

注册时间:-

12楼
2023-08-15 11:18:36 来自Android手机客户端
还有买11万的?回迁房吗?
引用楼主的发言:
你应该问买到11万的,现在心情怎么样了
引用10楼房事我知道的发言:
买的回迁房。原来好像是3万多还是4万买的。持有到现在不知道亏没亏。
引用surechen的发言:
巨富,厉害
引用7楼房事我知道的发言:
这么好,我同学买了260平。
引用surechen的发言:
必须的,听说景观好的都给了回迁房
引用4楼房事我知道的发言:
这是旧改的吗?
小洲洲
小洲洲

积分:-

注册时间:-

13楼
2023-08-15 11:20:24
11.本项目用地进入29号线新塘站规划控制区,地下室退地铁中心线15米 地铁口部与主体合并设计,地铁指标与设计详专业单位二次设计与报建,不在本次报建范围内。


12.本项目公共开放空间共1050m分为两部分设置: 24小时无条件对市民开放。



小洲洲
小洲洲

积分:-

注册时间:-

14楼
2023-08-15 11:21:23
应该回迁有不少8-11万买了的,心情就不知道了,买了看到的可以说说
引用12楼房事我知道的发言:
还有买11万的?回迁房吗?
引用楼主的发言:
你应该问买到11万的,现在心情怎么样了
引用10楼房事我知道的发言:
买的回迁房。原来好像是3万多还是4万买的。持有到现在不知道亏没亏。
引用surechen的发言:
巨富,厉害
引用7楼房事我知道的发言:
这么好,我同学买了260平。
引用surechen的发言:
必须的,听说景观好的都给了回迁房
引用4楼房事我知道的发言:
这是旧改的吗?
老抹布
老抹布

积分:-

注册时间:-

15楼
2023-08-15 14:25:56
超高层住宅弊端好多!尤其是海滨城市的超高层。。。。。。在金融属性渐渐褪去后,只有回迁一条路可以解决这么高容积率问题,散户切莫一手或二手进场。防水都是大问题
尕哲呀
尕哲呀

积分:-

注册时间:-

16楼
2023-08-15 14:31:27 来自m.szhome.com
98%的人都认为房价还会跌,但是国家大大大部分财富掌握在小小小部分人手里,所以那98%的人看法未必正确,如果他们看准确了,就不会是98%里面的穷人
随遇而安76
随遇而安76

积分:-

注册时间:-

17楼
2023-08-15 14:33:49
74层,太太太高

景翠苑
景翠苑

积分:-

注册时间:-

18楼
2023-08-21 17:07:08 来自m.szhome.com
3期墙隔壁,占地10000平米的商品楼要搞拆迁,有没开发商有兴趣
景翠苑
景翠苑

积分:-

注册时间:-

19楼
2023-08-23 08:09:07 来自m.szhome.com
东华楼、联发大楼、景翠苑、碧茵苑,名商高尔夫对面
引用18楼景翠苑的发言:
3期墙隔壁,占地10000平米的商品楼要搞拆迁,有没开发商有兴趣
伊欧利亚
伊欧利亚

积分:-

注册时间:-

20楼
2023-08-23 16:32:59 来自iPhone客户端
主要是公摊太高了,实用率只有60%,现在开发商新房卖8万,回迁房应该大概卖6万这里
引用10楼房事我知道的发言:
买的回迁房。原来好像是3万多还是4万买的。持有到现在不知道亏没亏。
引用surechen的发言:
巨富,厉害
引用7楼房事我知道的发言:
这么好,我同学买了260平。
引用surechen的发言:
必须的,听说景观好的都给了回迁房
引用4楼房事我知道的发言:
这是旧改的吗?
  • 插入图片

    支持一次选择9张图片上传(使用Ctrl、Shift选中);

    支持jpg、png、gif,单张图片不超过10M,png不超过1M,gif不超过300K。

    • 继续添加

  • 提到好友

3(16px)

楼主最近发表

相关帖子

    大家都在看

    下载家在深圳APP

    关注家在公众号